Bildegalleri

Aktiv Grønland/Bjørvika ved Tam Le har gleden av å presentere Rostockgata 7!
BARCODE- Drømmeleilighet i 14 etg. med fantastisk panoramautsikt. Eksklusiv leilighet med 42 kvm terrasse med gode solfo
Nøkkelinfo
- Boligtype
- Leilighet
- Eieform
- Eier (Selveier)
- Soverom
- 1
- Primærrom
- 60 m²
- Bruksareal
- 60 m²
- Etasje
- 14
- Byggeår
- 2013
- Energimerking
- C - Lysegrønn
- Tomteareal
- 2 599 m² (eiet)
- Bruttoareal
- 67 m²
Fasiliteter
Eksklusiv leilighet med 42 kvm privat takterrasse
Vi har gleden av å presentere en meget eksklusiv leilighet på fantastiske Barcode. Denne herligheten av en leilighet ligger i bygget The Carve, og har en enorm terrasse på hele 42 kvm med gode solforhold og en fantastisk utsikt mot Oslo by. Her føler du med en gang den høye standarden og eksklusive kvaliteten.
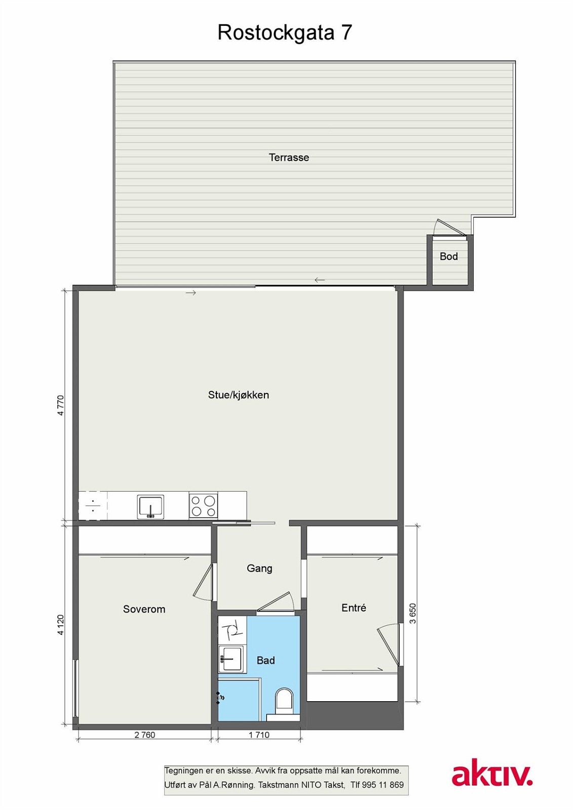
Leiligheten består av soverom, bad og en terrasse som grenser til kjøkkenet/stue. Dersom du er glad i en åpen løsning mellom kjøkken og stue, der du har en terrasse med fantastisk utsikt, vil du føle deg hjemme her på et øyeblikk. Det går heis direkte ned til felles garasje der garasjeplass kan kjøpes. Denne boligen må du rett og slett ikke gå glipp av!
Kort oppsummert
Entré:
Du ønskes velkommen av et innbydende inngangsparti. Førsteinntrykket preges av en god takhøyde kombinert med naturlig lys som smyger inn fra stuen/kjøkkenet. Her føler man med en gang at man kommer inn i ett eksklusivt hjem. Man legger raskt merke til det nye parkettgulvet som er gjennomgående i hele leiligheten. Det finnes to innbygde skyvedorsgarderober ved entréen der det kan oppbevares både sko og yttertøy.
Stue:
Det er naturlig å bevege seg videre til stuen som er selve hjertet i denne leiligheten. Det første man legger merke til er det flotte lyset som flommer inn fra terrassens store vindusflater og den fantastiske utsikten. Stuen er et herlig, sosialt rom med en god takhøyde som fyller de flestes ønsker og behov. Gjennom å åpne opp skyvedørene til terrassen forlenger du stuen med 42 kvm. Dette gir deg mulighetene at ha større selskap og med det åpne kjøkkenet får du en sosial og trivelig planløsning.
Terrasse:
Takterrassen er på hele 42 kvm med treplatting og utelys. Her går sol allerede opp 04.00 og forsvinner rundt 19.00 på sommeren. Midt på dagen fylles hver eneste centimeter av terrassen med sol. På terrassen har du god plass til utemøbler, bord, grill og det som hører grillsesongen til. Terrassen har en plassbygd bar/utekjøkken som blir brukt under sosiale sammenkomster på sommer, vår og høsten. Den gode internbeliggenheten i bygget gir deg en særdeles god utsikt og solforhold. Forestill deg nyttårsfeiring, 17 mai, eller late sommerdager her.
Kjøkken:
Funksjonelt kjøkken med åpen løsning med god skap- og benkeplass. Den åpne løsningen gir den gode romfølelsen og mulighet til å være sosial når maten tilberedes. Her er det plass til ett stort middagsbord der det er godt med plass til gjester. Kjøkkenet har integrert hvitevarer som medfølger leiligheten. Det er tidsmessig kjøkkeninnredning med glatte skapfronter fra Sigdal med benkeplate i eik.
Bad:
Badet er som resten av leiligheten - moderne og delikat med tidløst fargevalg og god standard. Her er det fliser på gulv og veggflater, det er og opplegg for vaskemaskin.
Soverom:
Stort og romslig soverom med garderobeplass, samt plass til både dobbeltseng, nattbord og øvrig møblement.
Standard
Vaskemaskin medfølger ikke.
Beliggenhet
Velkommen til Barcode der det har skapes en helt ny, fantastisk bydel. Med en beliggenhet alle kan se vil være en av Oslos absolutt beste, med fjorden rett foran og sentrum en kort spasertur unna, snakker folk allerede om Sørenga og Bjørvika som Oslos nye sentrum. Barcode ligger i den nye bydelen Bjørvika med alt av kultur- og servicetilbud i umiddelbar nærhet.
Får du noen gang lyst til og bade så er det noen få minutters gange av stand til Sørenga. Der det har blitt anlagt badefasiliteter på enden av kaia sammen med spisesteder og rekreasjonsmuligheter. Barnehager er på plass og skole skal bygges. Coop-prix er åpen alle dager. Har du lyst på en skikkelig god hamburger får du tak i dette på Bun's Burger Bar. Andre restauranter og cafeer som er verdt å nevne er Vaaghals, Stock eller nabolagsbaren Vesper. I tillegg er Nodee Barcode en sikker vinner om du vil nyte en helaften med god asiatisk mat. Nærmeste matbutikk Kiwibarcode finner du cirka 50 meter fra inngangspartiet til leiligheten.
Havnepromenade:
En 9 kilometer lang promenade knytter Oslo sammen langs sjøkanten. Den går fra Frognerstranda i vest, via Aker brygge, Akershus festning og Operaen, før den fortsetter forbi Sørengstranda, og helt til Kongshavn i øst.
Sjøbadet:
Byens flotteste sjøbad åpnet juni 2015 og er et meget populært tilskudd. Sjøbadet er en flytende park på rundt fem dekar og er en forlengelse av parken på land ytterst på Sørengutstikkeren. Det 190 meter lange sjøbadet har et 50 meter langt åpent basseng, et 200 kvadratmeter stort sjøbad, rekreasjonsområde med sitteplasser og trapper ned mot sjøen. Eget barnebasseng er bygget inn i anlegget og anlegget har som resten av Sørenga ha universell tilgjengelighet. Det betyr blant annet at det er godt tilrettelagt for handicappede (kilde sorenga.no)
Deichmanske hovedbibliotek:
I 2014 var det byggestart på nye Deichmanske hovedbibliotek i Bjørvika. Dette blir Oslos nye storstue for formidling av kunnskap og kultur. Åpner for publikum i 2018.
Turmuligheter på Ekeberg:
Visste du at turområdene på Ekeberg er hele 2/3 av størrelsen til storheter som Central Park og Bygdøy. Og fire ganger så stort som Frognerparken?
Kilometerlange turløyper både på sommer- og vinterstid, Ekebergsletta med dyrepark og Norway Cup og Ekebergrestauranten med byens beste utsikt er bare noen av tilbudene! Den er planlagt gondolbane fra Bjørvika til Ekeberg som vil bringe byens innbyggere enda lettere til denne lokale perlen
Operaen:
Operaen flyttet i 2008 inn i nye lokaler i Bjørvika, og fremstår som en hvit perle innerst i Oslofjorden. Bygget er tegnet av de norske arkitektene Snøhetta og har mottatt flere priser for arkitekturen. Operaen vil være kronen på verket i et fremtidig Bjørvika som vil være blant Europas mest moderne og attraktive hovedstadsområder. Operaen har forestillinger nesten hver dag.
Maaemo:
Sitat fra DN.no: På bare 14 måneder har de entusiastiske personene bak Maaemo flyttet fjell i restaurant-Oslo. Med lokale råvarer, hel-økologisk meny og nordisk minimalisme i Schweigaards gate på Oslo Øst brøt Maaemo alle uskrevne regler, og ble tildelt 3 stjerner i Guide Michelin (DN.no). Maaemo henter sine råvarer fra bl.a. Wyllerløypa og Ekebergskogen! Denne restauranten ligger rett ved Teaterplassen på Grønland.
Oslo S:
Det er bare noen få minutters gange til Oslo S og bussterminalen med tilknytning til hele landet. Ikke la reiselysten gå fra deg selv om du bor som plomma i egget!
Trening:
Treningsmulighetene er mange i bydelen. Rett utenfor leiligheten finner du treningssentret Elixia Bjørvika. Nylig åpnet DnT et kontor med aktivitetssenter og kajakk utleie.
The Carve
Navnet The Carve kommer ifra det karakteristiske hullet i midten av bygget. Det er skåret ut en bit på 9. etasjen som er gjennomgående og går på det meste over fire etasjer i høyde. Her har dem bygget en stor felles terrasse på 750 kvm.
Den kjølige, hvite fasaden består av marmorblokker i et forrykket og organisk mønster. Den karakteristiske fasaden gir en visuell utfordring på nært hold og fremstår som en kontrast til bygningens ellers stramme formspråk. De ulike vindustørrelsene er også med på å skape variasjon i fasaden. De indre fasadene, på takterrassene og passasjen på bakkeplan, er i tre og gir et varmt uttrykk. Den bærende konstruksjonen består av stålfagverk. I 2014 under World Architecture Festival mottok bygget prisen Best recidential project.
Video av fremtidens Bjørvika:
http://www.aftenposten.no/webtv/#!/video/18197/video-se-inn-i-fremtidens-bjoervika
Sørenga som helhet vil stå ferdig i 2017. På østsiden kommer det også småbåthavn, så det vil være muligheter for å ha båt.
Byggemåte
Grunnmur.
Betong grunnmur, støpte kjellergulv.
Veggkonstruksjon og utvendige fasader.
Bærekonstruksjon og leilighetsskillere i betong/stålkonstruksjon. Etasjeskillere i armert betong. Utvendig kledning av marmor fasadeplater samt panel.
Areal
Leiligheten ligger i 14. etasje
P-ROM: 60 kvm
BRA: 60 kvm
BTA: 67 kvm
Følgende rom inngår i primærareal:
Entre, bad, mellomgang, stue med åpen kjøkkenløsning og utgang til takterrasse, soverom.
Utstyr
Dørtelefon med åpner og videobilde.
Brannslukkingsapparat.
Sprinkleranlegg med 8 sprinklerhoder i leiligheten.
Felles brannvarslingsanlegg med 1 sensor i leiligheten samt fellesareal.
Brannstige med ryggbøyle mellom takterrasse og 15.etasje.
Skyvedørsgarderobe i entre (2 stk) og i soverom.
Sensorstyrt blendingsgardin, transparent med tanke på gjennomsyn foran skyvedør i stue.
Oppvarming
Sentralvarme tilknyttet fjernvarmeanlegg.
Vannbåren gulvvarme i alle rom bortsett fra bad.
Varmekabler i bad.
2 fjernstyrte, elektriske varmelamper montert på takterrassen.
Tomten
Tomtens areal er på 2 599 kvm.
Parkering
Parkeringsplass kan kjøpes for 750 000,-
Felleskostnader knyttet til garasje er kr. 798,- pr. kvartal.
Vei/vann/avløp
Offentlig. Kopi av tinglyste avtaler vil bli utlevert ved henvendelse til megler.
Forretningsfører
Forretningsførsel utføres av Malling & Co Forvaltning AS i henhold til kontrakt.
Sameiet
Barcode 89 Eierseksjonssameie består av 41 boligseksjoner og 4 næringsseksjoner.
Eierseksjonen hører til boligsameie. Vi oppfordrer alle til å sette seg inn i vedtekter, husordensregler, regnskap, budsjett og årsberetning. Dokumentene vil være tilgjengelig hos meglerforetaket. Det gjøres oppmerksom på at fellesgjeld og felleskostnader kan variere over tid som følge av beslutninger foretatt i sameiets styre og/eller generalforsamling.
Styregodkjennelse
Kjøper skal godkjennes av styret og har selv risikoen for at godkjennelse blir gitt. Styregodkjennelse kan ikke nektes uten saklig grunn.
Dyrehold
Husdyrhold er tillatt så lenge det ikke er til sjenanse eller ulempe for andre beboere. Dyreholdet skal registreres skriftlig til styret.
Forsikring
Tryg Forsikring
Polisenummer: 6260653
Felleskostnader
Totale felleskostnader er kr. 3 301,- pr. mnd.
Inkludert i andel fellesutgifter: Kommunale avgifter, felles forsikring, á-konto varmt vann og fyring, vaktmestertjenester, kabel-tv/fibernett, trappevask.
Andel fellesgjeld/fellesformue
Andel fellesgjeld pr. 08.09.17 er kr. 0,-
Lånevilkår
Sameiet har ingen lån.
Kjøpers ansvar for øvrige sameieres mislighold
For felles ansvar og forpliktelser hefter den enkelte sameier i forhold til sin sameiebrøk, jf eierseksjonsloven § 24.
Offentlige/kommunale avgifter
Kommunale avgifter er inkludert i felleskostnadene.
Faste løpende kostnader
Strøm + felleskostnader.
Eiendomsskatt kan påløpe.
Ferdigattest/midlertidig brukstillatelse
Det er ikke utstedt ferdigattest på eiendommen, men det foreligger midlertidig brukstillatelse.
Utleie
Utleie er tillatt iht. vedtekter og etter godkjenning fra styret.
Utleie av leiligheter kan ikke baseres på kortidsutleie, heller ikke gjennom fremleie, da dette
erfaringsvis medfører betydelig merslitasje på fellesareal og felles tjenestetilbud for
beboerne. Det presiseres at boligseksjonene er regulert til boligformål, og at seksjonene
følgelig ikke kan benyttes til døgnovernatting.
Boligen er per i dag leid ut for kr 22 950,- inkl garasje.
Diverse
Vaskemaskin følger ikke med.
Viken Fiber er leverandør av kabel-tv og bredbåndstjenester.
Reguleringsmessige forhold
Eiendommen er regulert til bolig- og næringsformål.
Eiendommens betegnelse
Gnr. 234 Bnr. 89 Snr. 43 i Oslo kommune
Oppgjør
Med mindre annet er avtalt forutsettes det at kjøpesum inkludert omkostninger er innbetalt og disponibelt på meglerforetakets klientkonto innen overtakelse.
Kjøpekontrakt
Partene skal signere kjøpekontrakt etter aksept av bud.
Eierskifteforsikring
Selger har ikke tegnet eierskifteforsikring på boligen. Selger har likevel utarbeidet en egenerklæring som kjøper bør gjøre seg kjent med før budgivning.
Boligkjøperforsikring
Det gjøres oppmerksom på at kjøper har anledning til å tegne Boligkjøperforsikring. Dette er en rettshjelpsforsikring som gir trygghet og profesjonell juridisk hjelp dersom det oppdages uventede feil eller mangler ved boligen de neste fem årene. Les om denne på www.help.no og ta kontakt med oss for ytterligere informasjon.
Løsøre og tilbehør
Listen over løsøre og tilbehør utarbeidet av Norges Eiendomsmeglerforbund av 1. februar 2012 legges til grunn for salget dersom ikke annet fremkommer av salgsoppgaven. Listen er tilgjengelig hos oppdragsansvarlig samt på www.nef.no. Til orientering er det full avtalefrihet om hva som skal følge med bolig og fritidsbolig ved salg.
Solgt "som den er"
Eiendommen selges "som den er", jf. avhendingsloven (avhl.) § 3-9. Alle interessenter oppfordres til å sette seg godt inn i opplysninger som fremgår av salgsoppgave, egenerklæring fra selger, takst og andre vedlegg, da dette danner grunnlaget for avtalen som inngås med selger. Videre oppfordres det til å undersøke eiendommen nøye, gjerne sammen med fagkyndig.
Eiendommen kan ha mangel i følgende tilfeller:
1) Når kjøper ikke har fått opplysninger om forhold ved eiendommen som selger kjente eller måtte kjenne til, og som kjøper hadde grunn til å regne med å få, jf. avhl § 3-7. Dette gjelder likevel bare dersom man kan gå ut fra at det har virket inn på avtalen at opplysningene ikke ble gitt.
2) Når selger har gitt uriktige opplysninger om eiendommen, jf. avhl § 3-8. Tilsvarende gjelder dersom eiendommen ikke er i samsvar med opplysninger som er gitt i annonse, salgsprospekt eller ved annen markedsføring på vegne av selger. Dette gjelder likevel bare dersom man kan gå ut fra at opplysningene har virket inn på avtalen, og ikke på en tydelig måte er rettet i tide.
3) Når eiendommen er i vesentlig dårligere stand enn kjøper hadde grunn til å regne med ut fra kjøpesummen og forholdene ellers, jf. avhl § 3-9.
Finansiering
Aktiv Eiendomsmegling samarbeider med sparebankene i Eika Gruppen AS og konsernets produktselskaper om formidling av finansielle tjenester. Ta gjerne kontakt med oppdragsansvarlig for et uforpliktende tilbud vedrørende finansiering. Meglerforretningene kan motta provisjon ved formidling av finansielle tjenester.
Ta kontakt med megler for komplett informasjon
Nærområdet
Aktiv Gamle Oslo/Bjørvika
Annonseinformasjon
| FINN-kode | 104174967 |
|---|---|
| Sist endret | 08. okt. 2019 09:34 |
| Referanse | 18170345 |
Annonsene kan være mangelfulle i forhold til lovpålagt opplysningsplikt. Før bindende avtale inngås oppfordres interessenter til å innhente komplett informasjon fra meglerforetaket, selger eller utleier.





































