Bildegalleri

Lun beliggenhet
Inaktiv
Stor tomt selges
Nøkkelinfo
Fasiliteter
Bilvei frem
Bredbåndstilknytning
Offentlig vann/kloakk
Utsikt
Fiskemulighet
Turterreng
Visning
Ta kontakt for å avtale visning.Adkomst
Lett adkomst. Tomten ligger i Lyngstad sentrum.
Beliggenhet
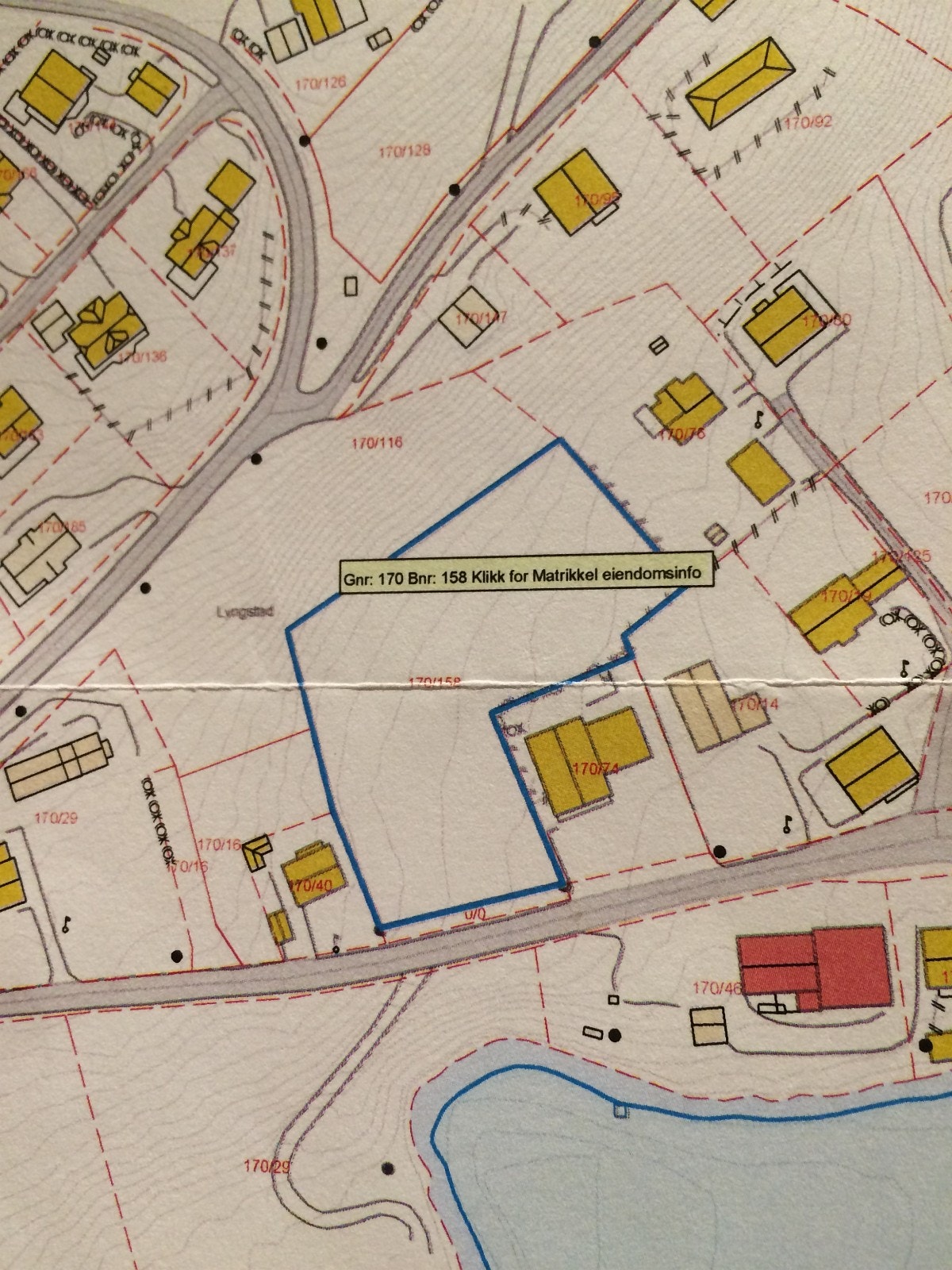
Eiendom på Lyngstad i Hustadvika kommune i Møre og Romsdal.
Beskaffenhet
Tomten er en eiet tomt og har en beliggenhet på relativt flat mark og lunt terreng. Den er regulert som forretnings tomt og er ikke en del av øvrig reguleringsplan i området. Tomtens beliggenhet er i et etablert boligområde, og den egner seg derfor godt til boligformål(opplysninger gitt av tidligere Eide kommune),med lett adkomst og fri sikt. Det er spillvann og kloakk-kum nedgravd på tomten(tilstand ukjent).Kulturminne er ikke registrert. Ingen servitutter er registrert. Det er kort vei til Lyngstad barneskole, og områdene rundt byr på fjord og fjell og et aktivt friluftsliv. I retning Molde, ligger sentrumet Eide og Elnesvågen med ulike fasiliteter. I retning Kristiansund ligger Atlanterhavet med den kjente Atlanterhavsveien.
Det anbefales at interesserte tar kontakt med kommunen for ytterligere informasjon angående dispensasjon/omregulering til boligformål.
Kjøper er ansvarlig for opparbeidelse og tilknytning til offentlig vei, vann og kloakk. Omkostninger som Dokumentavgift , tinglysing og gebyrer kommer i tillegg og betales i sin helhet av kjøper.
Tomten selges slik den fremstår. Ta kontakt med selger for ønsket informasjon.
o-slatl@online.no / 93818186
Advokatkontor vil bistå med kjøpekontrakt, skjøte, tinglysning og oppgjør.
Det anbefales at interesserte tar kontakt med kommunen for ytterligere informasjon angående dispensasjon/omregulering til boligformål.
Kjøper er ansvarlig for opparbeidelse og tilknytning til offentlig vei, vann og kloakk. Omkostninger som Dokumentavgift , tinglysing og gebyrer kommer i tillegg og betales i sin helhet av kjøper.
Tomten selges slik den fremstår. Ta kontakt med selger for ønsket informasjon.
o-slatl@online.no / 93818186
Advokatkontor vil bistå med kjøpekontrakt, skjøte, tinglysning og oppgjør.
Regulering
Forretning/Næring
NB: Knappen for å vise hele beskrivelsen har kun en visuell effekt.
NB: Knappen for å vise hele beskrivelsen har kun en visuell effekt.
Nærområdet
Annonsene kan være mangelfulle i forhold til lovpålagt opplysningsplikt. Før bindende avtale inngås oppfordres interessenter til å innhente komplett informasjon fra meglerforetaket, selger eller utleier.




