Bildegalleri

Spisedel og sittekrok i stua
Leilighet på Byåsen.
- Månedsleie
- 13 000 kr
- Depositum
- 26 000 kr
Nøkkelinfo
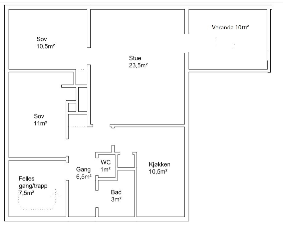
- Primærrom
- 65 m²
- Bruksareal
- 80 m²
- Boligtype
- Leilighet
- Soverom
- 2
- Etasje
- 2.
- Leieperiode
- 01.06.2026
Fasiliteter
Beskrivelse
Leilighet til leie i 2. etasje i enebolig.
Møblene på bildene står i leiligheten, men det er plass til å sette bort møblene på loftet dersom du har egne møbler.
To boder på loftet.
Leiligheten består av to romslige soverom, stue, kjøkken, gang, veranda og separat toalett og dusj. I tillegg er det en balkong på 10kvm.
Kjøkkenet har kjøleskap/frys, komfyr og oppvaskemaskin. Det er vaskerom med egen vaskemaskin i kjelleren.
Det er kort vei å gå til Rognheim trikkestopp, og Prix (200m)
Oppstillingsplass for én bil inkludert.
Ingen røyking inne, på balkong eller på tomten.
Ingen kjæledyr.
Leietaker tegner eget strømabonnement.
Bredbånd er inkludert.
Ta kontakt på 95 97 27 24 eller send melding via Finn for mer informasjon eller ønske om visning.
Visning
Trenger du en kontrakt?
- Utfylt kontrakt med opplysninger fra annonsen
- Digital signering
- Gratis tjeneste
- Godkjent av Forbrukerrådet
Nærområdet
Annonsene kan være mangelfulle i forhold til lovpålagt opplysningsplikt. Før bindende avtale inngås oppfordres interessenter til å innhente komplett informasjon fra meglerforetaket, selger eller utleier.








