Bildegalleri

Illustrasjon av hytta Tinn Tradisjon. Avvik vil forekomme. Pris kr 1.999.000,-
Klassiske hytter bygges for salg på Skykula, Bjerkreim
Nøkkelinfo
- Beliggenhet
- På fjellet
- Boligtype
- Hytte
- Bruksareal
- 48 m²
- Tomt
- Festet
- Festeavgift
- 5 872 kr
- Soverom
- 2
Fasiliteter
Visning
Ta kontakt for å avtale visning.Om eiendommen
Beliggenhet
Drømmer du om hytte på fjellet?
Fantastisk turterreng, ski om vinteren, fiskevann, toppturer, storslått utsikt, frihet, kort reisetid, og alt dette til en overkommelig pris. Vi har hytte til deg som matcher alt dette. På Skykula i Bjerkreim, bare 55 minutts kjøring fra Sandes og Bryne, 40 minutt fra Egersund. For deg som ikke vil gå i kø i Sirdal, men ha fjellet for deg selv er dette plassen. Endeløse muligheter til turer til fots og på ski. På vinteren er det et flott område randoneekjøring og isklatring. Opplev Dalanestien passerer nesten gjennom hyttefeltet. Det er en merket sti på 68 km som går fra Egersund Sentrum til Ørsdalen, der du kan gå videre på DNTs turnett, blant annet til Kvitlen, Hunnedalen og Sirdal. Ønsker man en kortere tur er stien over Trodlarinde å anbefale. Kanskje Sør-Rogalands flotteste fottur der du vandrer over ryggen som danner grense mellom Eigersund og Bjerkreim. Med storslått utsikt og gode stier er denne turen en skikkelig familiefavoritt. Mange gode fiskevann gjør dette området til et eldorado når det gjelder fiske, og en av Norges beste lakseelver ligger bare 15-20 minutters kjøring fra hytta.
Midt i dette området driver vi nå og planlegger og prosjekterer rimelige hytter som folk flest kan ha råd til. Er dette drømmen din og du ønsker mer informasjon eller visning av området, bare ta kontakt med Helge Åse på telefon 97686110 eller e-post helge.ase@norgeshus.no.
Velg mellom modellene Rondane eller Tinn Tradisjon på tomt nr. 14, 15 eller 16.
Generelt
Tinn Tradisjon. Ei hytte i kjent og kjær stil.
Pris: 1.999.000,- + omk.
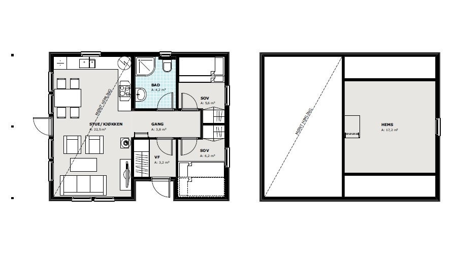
Tinn er ei enkel og hyggelig hytte, og har vært populær i mange år. Planløsningen er praktisk, og hver kvadratmeter er utnyttet maksimalt. Den klassiske hytteformen bringer frem nostalgi.
Hytta inneholder to soverom med plass til familiekøyer, bad, vindfang, åpen stue-/kjøkkenløsning og dessuten en hems. Stua og kjøkkenet har åpen himling, gode vinduer og direkte utgang til en overbygd terrasse. Hytta er har innlagt strøm, men ikke vann og avløp. Moderne forbrenningstoalett.
BYA: 67,1 m2
BRA: 47,6 m2
2 soverom
Hems
Leveranse:
Gulv i tørre rom: Kährs Luxury Tiles vinylparkett
Gulv på bad: Våtromsbelegg
Vegger: Furu Glattpanel
Tak: Furu skyggepanel 15x145
Innvendige dører: Swedoor. Innerdør lett formpresset Style 03 hvit med hvitmalt karm og vrider
Vinduer: Leveres malt fra fabrikk, farge hvit NCS S0502Y.
Kjøkken: Aubo kjøkken https://www.aubo.no/kjoekken/unik-hvit-kjoekken
Hvitevarer er ikke inkl, med unntak av ventilator.
Garderobeskap: Garderobeskap hvit 100x210 (antall: 2 stk)
Ventiler: Veggventil, 4 stk. Baderomsvifte 1 stk
Oppvarming: Varmekabler og Peisovn Duo 5 sort stål med stålpipe og glassplate
Tak: Shingel, skifergrå eller sort.
Ytterdører: Hoveddør er Nordan Favoritt, Laksen 922G farge hvit NCS S0502Y
Kledning: 19 x 148mm dobbelfalset kledning, grunnet, satt stående. Utvendig bør hytta males innen 1 år
Takrenne: Det leveres takrenne i metall.
Terrasse: 2 m2 med terrasse i imp utførelse, terrassebord 29x120 imp.
Parkering: På tomt og/eller på felles parkeringsplass
Utendørs: Høyder og terreng vist på tegninger er illustrasjon og ikke i samsvar med virkelige høyder og terreng. Dette vil bli tilpasset den enkelte hytte.
Betongarbeider: Ringmur oppføres. Betonggulvet utføres med isolasjon/betongstøp og radonsikring.
Elektriker: Det leveres stikkontakter i henhold til Nek 400 i alle rom. Det er tatt med standard belysing. Varmekabler i gang, stue/kjøkken og bad.
Rørlegger:
Bunnleding avløp, dette legges til kjøkken, sluk på bad og vask på bad. Avløp legges ut til grunnmur og tilkobles ikke videre
Kjøkken: Tilkobling av vannlås. Kjøkkenkran er ikke medregnet
Bad: Servant på vegg. Servantbatteri er ikke medregnet. Cinderella forbrenningstoalett.
Rondane. Fin familiehytte
Pris: 2.125.000,- + omk.
Dette er ei praktisk og klassisk familiehytte med gode uteplasser. Inngangspartiet er overbygd og innenfor er det en romslig gang med god plass til ytterklær og sko. Planløsningen er ryddig organisert med soverommene samlet i en egen fløy. Oppholdsrommet er lyst og luftig med utgang til en flott terrasse. Hytta er har innlagt strøm, men ikke vann og avløp. Moderne forbrenningstoalett. Vann hentes i vannpost. Parkering på parkeringsplass eller i umiddelbar nærhet til hytta.
BYA: 84,5 m2
BRA: 69,2 m2
3 soverom
Leveranse:
Gulv i tørre rom: Kährs Luxury Tiles vinylparkett
Gulv på bad: Våtromsbelegg
Vegger: Furu Glattpanel
Tak: Furu skyggepanel 15x145
Innvendige dører: Swedoor. Innerdør lett formpresset Style 03 hvit med hvitmalt karm og vrider
Vinduer: Leveres malt fra fabrikk, farge hvit NCS S0502Y.
Kjøkken: Aubo kjøkken (se vedlegg). https://www.aubo.no/kjoekken/unik-hvit-kjoekken
Hvitevarer er ikke inkl, med unntak av ventilator.
Garderobeskap: Garderobeskap hvit 100x210 (antall: 3 stk)
Ventiler: Veggventil, 4 stk. Baderomsvifte 1 stk
Oppvarming: Varmekabler og Peisovn Duo 5 sort stål med stålpipe og glassplate
Tak: Shingel, skifergrå eller sort.
Ytterdører: Hoveddør er Nordan Favoritt, Laksen 922G farge hvit NCS S0502Y
Kledning: 19 x 148mm dobbelfalset kledning, grunnet. Utvendig bør hytta males innen 1 år
Takrenne: Det leveres takrenne i metall.
Terrasse: 9 m2 med terrasse i imp utførelse, terrassebord 29x120 imp. Rekkverk som vist på tegning.
Parkering: På tomt og/eller på felles parkeringsplass
Utendørs: Høyder og terreng vist på tegninger er illustrasjon og ikke i samsvar med virkelige høyder og terreng. Dette vil bli tilpasset den enkelte hytte.
Betongarbeider: Ringmur oppføres. Betonggulvet utføres med isolasjon/betongstøp og radonsikring.
Elektriker: Det leveres stikkontakter i henhold til Nek 400 i alle rom. Det er tatt med standard belysing. Varmekabler i gang, stue/kjøkken og bad.
Rørlegger:
Bunnleding avløp, dette legges til kjøkken, sluk på bad og vask på bad. Avløp legges ut til grunnmur og tilkobles ikke videre
Kjøkken: Tilkobling av vannlås. Kjøkkenkran er ikke medregnet
Bad: Servant på vegg. Servantbatteri er ikke medregnet. Cinderella forbrenningstoalett.
Adkomst/Tomteforhold
Veibeskrivelse: Ta E39 til Bjerkreim Sentrum. Kjør inn på Fv110, følg skilt Lauperak. Når du nærmer deg Lauperak så er hyttefeltet opp til venstre mot Skykula. Det står et Norgehus-skilt i krysset. Etter noen hundre meter er hyttefeltet på venstre side av veien.
Innhold
ANNET:
Vann hentes i vannpost. Parkering på parkeringsplass eller i umiddelbar nærhet til hytta. Festetomt med årlig festeavgift på kr 5872,-
Hver enkel hytte har ikke godkjent byggemelding, men er i henhold til reguleringsplan og vil bli byggsøkt i hvert enkelt tilfelle. Det tas forbehold om godkjenning fra Bjerkreim Kommune.
Årlig festeavgift på tomtene er kr. 5.872.-
Tre-baserte materialer påvirkes av uttørking og fuktighet. Dette gjør at det kan oppstå sprekker pga bevegelser. Det kan forekomme svinnsprekker etter en tids bruk, skyldes naturlige setninger og er ikke en feil det kan reklameres for. Som utbygger kan vi ikke påta oss reklamasjonsansvaret for dette.
Utbygger forbeholder seg retten til å foreta forandringer i materialvalg og valg av leverandør, forutsatt at opprinnelig funksjon opprettholdes.
OVERTAKELSE:
Ved overtakelse av hytten fra utbygger til tiltakshaver avholdes befaring hvor evt. feil og mangler blir registrert og protokollført. Protokollen skal undertegnes av begge parter og alle fakturaer skal være betalt av tiltakshaver før overtakelse kan skje.
Eventuelle endringer av beskrevne leveransers omfang og kvalitet må avtales ved endringskontrakter mellom partene.
Leveranser som ikke er tatt med:
Elektrisk utstyr så som ovner til oppvarming og hvitevarer.
Det er ikke medtatt utvasking av hytta, men hytta overleves i ryddig tilstand og støvsugd.
Utvendig gartnerarbeid er ikke med.
Stiplede arrangementer på tegninger.
Gardiner/lameller medfølger ikke.
Ting som vises på illustrasjonsbilder er nødvendigvis ikke med i tilbudet, slik som møbler, krukker med planter, biler og lignende.
Særlige bestemmelser:
Garanti frafaller på kledning hvis den ikke er malt innen 1 år fra overtakelsesdato.
Det vil ikke være tilgang til bolig for utførelse av egeninnsats i boligen under byggeperioden pga fremdrift og HMS ansvar.
Kjøper får tilgang til bolig når alle kontraktsforpliktelser er oppfylt og overtakelse er avholdt.
Norgeshus Egersund AS forbeholder seg retten til å forandre priser i prislisten uten varsel. Boligen kan ikke tas i bruk før det er gitt brukstillatelse.
Standard
Ta kontakt med megler for komplett informasjon
Nyttige lenker
Nærområdet
Norgeshus Egersund
Annonseinformasjon
| FINN-kode | 170220575 |
|---|---|
| Sist endret | 05. jan. 2022 09:18 |
| Referanse | xHytter_Skykulax |
Annonsene kan være mangelfulle i forhold til lovpålagt opplysningsplikt. Før bindende avtale inngås oppfordres interessenter til å innhente komplett informasjon fra meglerforetaket, selger eller utleier.




















