Bildegalleri

Nyoppført enebolig/fritidsbolig på Vognill. Klar til innflytting.
Nøkkelinfo
- Beliggenhet
- På fjellet
- Boligtype
- Enebolig
- Eieform
- Eier (Selveier)
- Primærrom
- 89 m²
- Bruksareal
- 115 m²
- Grunnflate
- 129 m²
- Soverom
- 2
Fasiliteter
Om eiendommen
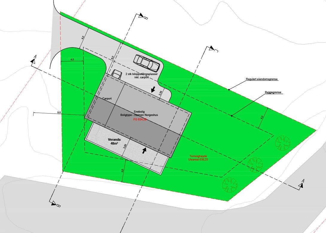
Beliggenhet
Boligen ligger i Myrtrøa boligfelt. Som er et nyetablert og rolig boligområde på Vognill. Boligen er godkjent som fritidsbolig, og ligger midt i et eldorado av fritidsmuligheter. Fjellturer sommer og vinter, sykkelstier, oppkjørte løyper - her er det kort vei til Gevilvassdalen og Skardalen, og til sentrum og alpinanleggene.
Generelt
Boligen oppført etter Teknisk forskrift Tek-17. Innerdører og ytterdører fra Swedoor. 3-lags glass i vindu og balkongdør.
Hvitmalte tak og vinduslister. Platting utenfor inngang med impregnerte terrassebord.
Grunnet utvendig kledning. Ru sort takstein på yttertak. Seriekoblede brannmeldere. Vannstopp. Balansert ventilasjon.
Omkostninger
Boligen er nyoppført og det vil kun påløpe dokumentavgift for tomteverdi, estimert andel av tomteverdi lagt til grunn er kroner 530000. Tinglysningsgebyr for Skjøte kroner 525 er inkludert i estimerte omkostninger.
Adkomst/Tomteforhold
Parkeringsforhold
Parkering i carport. Gjort klart for installasjon av el-billader. Ellers uteparkering foran ytterdør.
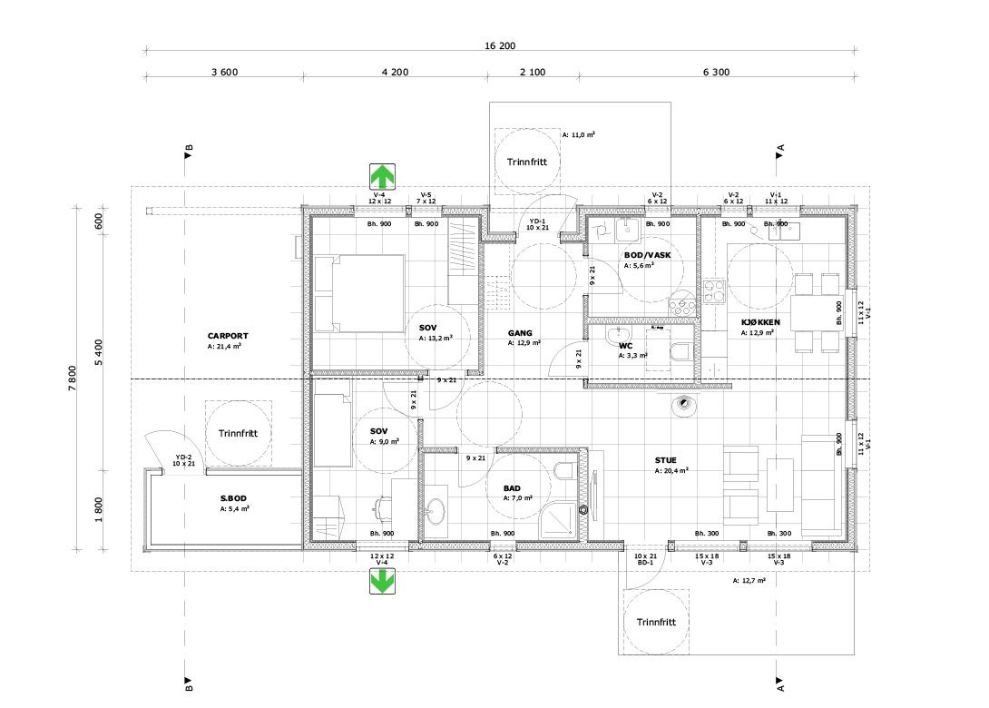
Innhold
En praktisk og lettstelt bolig på et plan. Fra gangen/hall har du inngang til alle rommene, gangen har plass til skyvedørsgarderobe. Den åpne stue og kjøkkenløsninga ligger i vinkel, som i tillegg til skjerming også gir rom for flere vindusflater. Fra stuedelen får du en trinnfri utgang til en terrasse på bakken med gode solforhold. Et perfekt hjem for en liten familie.
Carport med sportsbod på 5,4 m2 innenfor. Uteområdet blir opparbeidet med tilsådd plen og gruslagt gårdsplass ila. våren/forsommeren 2020. Hvitevarer inngår.
Boligen er godt belyst både inne og ute. Med bruk av downlights i himling.
Det er mulighet for bredbåndstilknytning.
Ta kontakt for visning!Standard
Gang:
Flis på gulv i ytre del. 1-stav eikeparkett i indre del. Ferdigmalte panelplater på vegger. Ferdigmalte takbord i himling. Varmekabler med termostat.
Bod/Vaskerom:
Flis på gulv m/sokkelflis. Varmekabel med termostat. Ferdigmalte panelplater på vegger. Ferdigmalte takbord i himling. Vannfordelerskap, ventilasjonsanlegg, varmtvannsbereder og sluk.
Skyllekar og opplegg for vaskemaskin /tørketrommel.
Wc:
Flis på gulv m/sokkelflis. Varmekabel med termostat. Sikringsskap. Vegghengt toalett. Ferdigmalte panelplater på vegger. Ferdigmalte takbord i himling.
1-stavs eikeparkett. Panelovn på vegg. Ferdigmalte panelplater på vegger. Ferdigmalte takbord i himling
Garderobe 2m.
Soverom 9 m2:
1-stavs eikeparkett. Panelovn på vegg. Ferdigmalte panelplater på vegger. Ferdigmalte takbord i himling.
Garderobeskap 1m.
Bad:
Flis på gulv m/sokkelflis. Baderomsplater på vegg. Ferdigmalte takbord i himling. Downlights i tak. Nedsenket dusjsone med dusjvegger i klart glass.
Innredning 120cm m/overskap og speil. Vegghengt toalett.
Sportsbod:
Betonggolv. Uisolerte vegger og himling. Fremlagt tilførsel for elbillader.
Stue/kjøkken:
1- stavs eikeparkett på gulv. Varmekabel med termostat. Ferdigmalte panelplater på vegger. Ferdigmalte takbord i himling. Sigdal kjøkken Uno palett farge grå. Integrert hvitevarer, underlimt vask, LED-lys under overskap.
Downlights i himling. Peisovn fra Nordpeis. TV/Datapunkt.
Terrasse:
Platting på bakken lagt på pukk. Impregnerte terrassebord.
Ta kontakt med megler for komplett informasjon
Nærområdet

Norgeshus Oppdal Bygg
Annonseinformasjon
| FINN-kode | 172033534 |
|---|---|
| Sist endret | 21. juni 2020 09:08 |
| Referanse | xMyrtrøa2_fritidx |
Annonsene kan være mangelfulle i forhold til lovpålagt opplysningsplikt. Før bindende avtale inngås oppfordres interessenter til å innhente komplett informasjon fra meglerforetaket, selger eller utleier.
















