Bildegalleri

Planlagt arealeffektiv hytte med tre soverom og hems sentralt på Skeikampen | God utsikt og fine solforhold.
- Omkostninger
- 36 000 kr
- Totalpris
- 5 496 000 kr
Nøkkelinfo
- Beliggenhet
- På fjellet
- Boligtype
- Hytte
- Eieform
- Eier (Selveier)
- Internt bruksareal
- 82 m² (BRA-i)
- Bruksareal
- 88 m²
- Eksternt bruksareal
- 5 m² (BRA-e)
- Balkong/Terrasse
- 23 m² (TBA)
- Tomt
- Eiet
- Soverom
- 3
- Rom
- 4
- Meter over havet
- 740
Fasiliteter
Visning
Om eiendommen
Beliggenhet
Skeiporten Hyttegrend ligger sentralt på Skeikampen i Gausdal kommune. Dette er et godt utgangspunkt for fritidsopplevelser både sommer og vinter.
Adkomst/Tomteforhold
Følg E6 til Lillehammer og sving av mot Gausdal. Følg veg nr. 255 videre 254 mot Svingvoll og ta Skeisvegen ca. 6 km mot Skeikampen. Sving til Sving til venstre inn ved Skeiporten og etter 500 meter til høyre mot Stavtaket.
Generelt
Skeiporten Hyttegrend - Nytt og spennende hyttefelt sentralt på Skeikampen!
Skeiporten Hyttegrend ligger sentralt på Skeikampen i Gausdal kommune. Dette er et godt utgangspunkt for fritidsopplevelser både sommer og vinter. Langrennsmessig er Skeikampen kanskje Gudbrandsdalens beste destinasjon. Ønsker man en tur i alpinbakkene kan man velge mellom 17 nedfarter og 11 heiser. Tinde leverer nøkkelferdige hytter med gode løsninger. Realiser hyttedrømmen - velg en Tinde hytte! Sommerstid har Skeikampen mye å by på: 18hulls golfbane, perfekt utgangspunkt for sykkelturer, fiske, fotturer i fjellet og mye mer. Skeiporten er sentralt plassert i forhold til butikker, spisested og andre tilbud på Skeikampen.
Hyttefeltet
Skeiporten Hyttegrend består av 31 seksjonerte hytter i sameie. Her vil vi oppføre tre av våre bestselgende modeller, tilpasset til området. Med sin nærhet til Skei sentrum mener vi dette er det beste området som er igjen på Skei. Byggingen av butikksenteret Skeiporten gjorde dette til et fint samlingspunkt på Skei. Området har pen utsikt og gode solforhold. De planlagte hyttene er praktiske og innholdsrike hytter til fornuftig pris. Offentlig vann og avløp. Hyttene er tilknyttet bredbånd.
<i>Skeikampen er også et flott utgangspunkt for stisykling og på sommerstid finnes blåmerka turløyper i alle himmelretninger!</i>
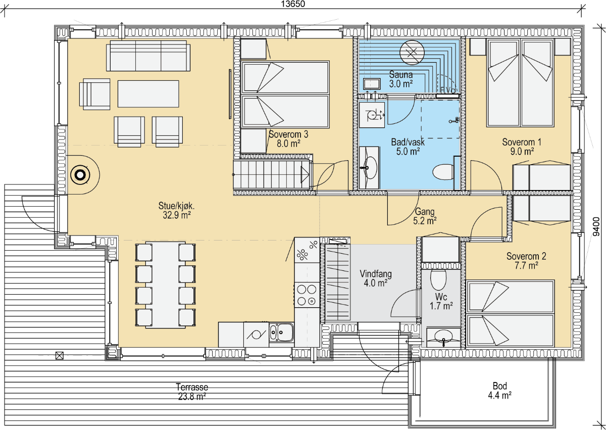
Nøkkelferdig hytte Danebu 90 med hems
Komplett nøkkelferdig hytte inkludert tomt. Utvendig leveres hytta med stående tett låvepanel i mix bredder, ytterkledning leveres grunnet i fargen røykgrå. Taket tekkes med takshingel av typen Valdres. Dører og vinduer er gråmalt.
Utvendig leveranse kort fortalt
• Shingeltak
• Låvepanel mix bredder, grunnet
• Gråmalte vinduer og dører
• Takrenner i sort stål
• Stor terasse på 27 m2
• Utelamper
• Frostfri utekran
• Utvendig uisolert bod
Innvendig benyttes det beiset sprekkpanel fra Moelven i fargen Tindegrå og eikeparkett fra Kährs. I vindfang og på bad leveres det fliser og varmekabel. Peisovn leveres av typen Origo og blir plassert som inntegnet på plantegninger. Origo er en klassisk peisovn med stort innsyn til flammene.
Innvendig leveranse kort fortalt
• Gråmalte 3-speils innerdører
• Eikeparkett Kährs Eik Abetone hvitlasert matt lakkert 3-stavs
• Badstue
• På hems leveres furugulv type børstet kongle
• Innvendig panel beiset i fargen Tindegrå
• Listverk og utforing er beiset i samme farge som vegg
• På bad er det fliser i format 30×60 og grå farge
• Unidrain slukrenne i dusj
• I hall er det fliser i format 30×60 og grå farge
• Varmekabler i vindfang og våtrom
• Taklamper i soverom
• Downlights i vindfang og baderom
• Panelovner på soverom
• Komfyrvakt
• Peisovn type Origo med glassplate foran ovn
• Elko pluss, sort farge
• Lun varme i stue/kjøkken
Se komplett leveransebeskrivelse på side 25 i prospektet.
Det tas forbehold om prisjusteringer.
Tilknytting vann og avløp vil tilkomme.
Med hytte fra Tinde i Skeiporten Hyttegrend får du:
• Langrennsløyper
• Fin utsikt
• Jakt- og fiskemuligheter
• Ubegrenset turterreng
• Flotte sykkelveger
• Bilveg fram til hytta
• Strøm
• Vann/avløp
• Nærhet til alpinbakkene
• Gode solforhold
• Bredbånd Eidsiva
Salgsoppgaven beskriver vesentlig og lovpålagt informasjon om eiendommen
Se komplett salgsoppgaveNærområdet
Tindehytter AS
Annonsene kan være mangelfulle i forhold til lovpålagt opplysningsplikt. Før bindende avtale inngås oppfordres interessenter til å innhente komplett informasjon fra meglerforetaket, selger eller utleier.






















