Bildegalleri

Prosjektert nøkkelferdig hytte med 3 soverom | Hyttemodell Rondane 72
- Omkostninger
- 26 250 kr
- Totalpris
- 3 996 250 kr
Nøkkelinfo
- Beliggenhet
- På fjellet
- Boligtype
- Hytte
- Eieform
- Eier (Selveier)
- Internt bruksareal
- 68 m² (BRA-i)
- Bruksareal
- 72 m²
- Eksternt bruksareal
- 4 m² (BRA-e)
- Balkong/Terrasse
- 4 m² (TBA)
- Tomt
- Eiet
- Soverom
- 3
- Rom
- 4
Fasiliteter
Visning
Ta kontakt for å avtale visning.Om eiendommen
Beliggenhet
Spitalberget er det nye feltet på Mjøsli Hytter og Naturpark som ligger helt på toppen av hyttefeltet med panorama utsikt i flere himmelretninger mot Mjøsa, Skreia fjellet og Hedmarksviddene. Bare 45 minutters kjøring fra Oslo
Adkomst/Tomteforhold
Følg E6 og motorveien til avkjøring 60 mot Strandlykkja. Følg skilting til Mjøsli og fv 228 mot Trautskogen. Etter ca. 3 km er første avkjøring til Mjøsli høyre side, men følg fv 228 i 300 meter til for avkjøring høyre mot nye feltet
på Spitalberget. Følg veien 700 meter så er du fremme på hyttefeltet
Generelt
Feltet Spitalberget er en utvidelse av eksisterende område, men nylig ferdig regulert med 40 nye tomter og klart til utbygging. Hyttene er tilknyttet offentlig vann og avløp. Bredbåndstilknytning. Enkel adkomst fra E6 motorveien til byggefeltet uten bomavgifter inn til hyttefeltet.
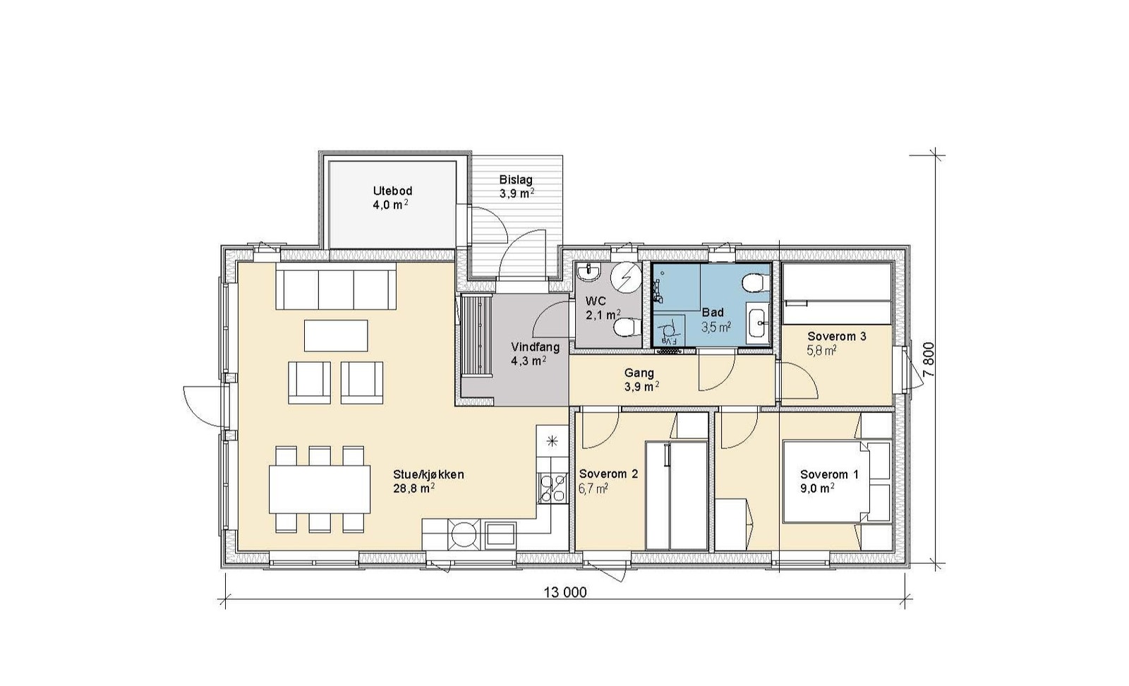
Rondane 72 gir deg tre romslige soverom, bad, gjestetoalett og en felles stue-
/kjøkkendel. Du har en romslig bod for smøring og lagring rett ved inngangsdøra og kort avstand til WC fra ute.
Generell utførelse
• Utvendig stående panel, 22 mm Låvepanel miks bredder, ubehandlet.
• Dråpe takshingel.
• Vinduer iht. tegning. 2-lag energiglass, standard farge hvit inne/ute hvit (NCS S 0502Y). Vinduer med gjennomgående sprosser.
• Takrenner i sort stål.
• Tinde ytterdør m/vindu, malt hvit.
• Tinde boddør u/vindu, malt hvit.
• Isolasjon 25 cm i tak, 20 cm yttervegg og 10 cm i innervegger.
• Flytende gulv: 13 mm eikeparkett 3-stavs, type Kährs.
• Innvendige furupanel fra Moelven: 13 mm Sprekkpanel på vegger og himling, ubehandlet.
• Glatt standard listverk, ubehandlet.
• Furu 3-speils innerdører, ubehandlet.
• Kjøkken fra Aubo Kjøkken av typen Unik NCS S 3502-Y, med laminat benkeplate og Slimline kjøkkenventilator (hvitevarer følger ikke med).
Elektroinstallasjoner og utstyr
Elektrikerarbeid med utstyr iht. standard elektrikeroppsett. I utstyrsoversikt kan nevnes:
• Inntaksskap og kabel mellom inntak og sikringsskap.
• Sikringsskap m/overbelastningsvern, jordfeilautomater og overspenningsvern.
• EL-punkter (iht. NEK 400).
• Varmekabler med termostat og føler i vindfang og våtrom.
• Strømforsyning til seriekoblet røkvarslere m/backup-batteri.
• Astrour-styrte utelamper. Spotter i vindfang, gang, wc og bad. Taklampe i soverom og bod. Panelovner, stikkontakter, komfyrvakt.
Murer, Flis, pipe og ildsted
• Peisovn m/glassplate montert på stålpipe
• Flislagt gulv i vindfang med 30×60 flis
• Flislagt gulv bad og wc med 30×60 flis
• Flislegging på vegg i dusjhjørne med30×60 flis
Rørlegger/innvendig sanitær
Rørleggerarbeid med utstyr iht. standard rørleggeroppsett. I utstyrsoversikt kan nevnes:
• Bunnledninger (rør som ligger i betongplate innenfor ringmur fram til toalett, sluker osv.).
• Rette slagdører i dusjnisje evnt. dusjnisjedør (iht. tegning) med dusjgarnityr.
• Vegghengt toalett med innebygd sisterne.
• Slukrenne på bad.
• Baderomsinnredning m/skuffer, porselensvask og speil.
• Innredning med vask og speilskap på wc
• Varmtvannsbereder 200 liter.
• 1-greps blandebatterier på kjøkken, bad og evnt. andre våtrom.
• Opplegg for tilkobling av kjøkkenbenk m/ 1-greps benkebatteri med høy tut, samt opplegg for tilkobling av oppvaskmaskin.
• Lekkasjesikring/vannstoppeventil
Oppgradering av leveransen
• Tretak
• Torvtak
• Tilfarergulv med 10 cm isolasjon og heltre furugulv 25×135 mm, hardvoksbehandlet, Arctic.
• Innvendig furupanel fra Moelven, 13 mm Sprekkpanel på vegger beiset i en av Tinde sine standard farger.
• Innvendig furupanel fra Moelven, 13 mm Sprekkpanel i himling hvitlasert.
• Listverk og utforinger beiset i en av Tinde sine standard farger.
• Malte innerdører, 3-speils.
• Hvitevarepakke (oppvaskmaskin, platetopp, stekeovn og kjøl/fryseskap).
Ellers samme leveranse som Standard.
Felles for alle leveranser
• Tinde Hytter har ansvar for byggesøknadsprosessen.
• Utførelse og leveranse i henhold til dagens tekniske krav.
• Garanti: 10% av kontraktssum i byggeperioden, 5% i reklamasjonstiden (5 år).
• Kontrakt fra Norsk Standard 3425 (med henvisninger til Bustadoppføringsloven).
• Trykktestet i henhold til Tek 17.
Prisen er for ferdig oppsatt hytte inkl. tomt og grunnarbeid. Tomteverdi fra kr 1 010 000,- Verdi grunnarbeid estimert kr 550 000,-
Det tas forbehold om endelig godkjenning fra kommunen.
Prisene er beregnet med sist kjente indeks fra SSB sin indeks og vil bli justert til enhver tids gjeldende indeks.
Diverse avgifter og kostnader - se https://www.tindehytter.no/hyttefelt/mjosli-hyttefelt
Salgsoppgaven beskriver vesentlig og lovpålagt informasjon om eiendommen
Se komplett salgsoppgaveNærområdet
Tindehytter AS
Annonsene kan være mangelfulle i forhold til lovpålagt opplysningsplikt. Før bindende avtale inngås oppfordres interessenter til å innhente komplett informasjon fra meglerforetaket, selger eller utleier.




























