Bildegalleri

Illustrasjon Vy20ATU. Dette er en illustrasjon og endringer på det endelige produktet må påregnes.
Vy fra Leve Hytter på solrik, stor utsiktstomt på Kvitfjells vestside. Ski inn/ut alpint og langrenn!
- Omkostninger
- 1 342 kr
- Totalpris
- 8 491 342 kr
Nøkkelinfo
- Beliggenhet
- På fjellet
- Boligtype
- Hytte
- Eieform
- Eier (Selveier)
- Primærrom
- 144 m²
- Bruksareal
- 152 m²
- Tomteareal
- 1 900 m²
- Soverom
- 5
- Sengeplasser
- 10
Fasiliteter
Visning
Ta kontakt for å avtale visning.Husk å lese komplett salgsoppgave før visning. Bestill komplett, utskriftsvennlig salgsoppgave.
Om eiendommen
Kort om eiendommen
Velkommen til Kvitfjells vestside!
Vi tilbyr Vy med sokkel beliggende i Svartskardvegen 6. Tomta har optimale solforhold og ski inn/ski ut i Kvitfjell Alpinanlegg. Tomta ligger bare 150 meter fra et fantastisk langrennsterreng og langrennsløypene er en del av et turløypenett som knytter Kvitfjell sammen med Gålå og Skei.
Tomta er lett skrånende og ligger vestvendt med meget gode utsikts- og solforhold. Det er dessuten gangavstand til butikk og restaurant i området.
Tomten er godt merket slik at det er enkelt å finne fram og se på tomten på egen hånd. Ønsker du tomtevisning, ta gjerne kontakt med oss for nærmere avtale.
Beskrivelse
Sammen med arkitektfirmaet Einar Jarmund & Co har Leve Hytter utviklet hytteserien Vy, som kjennetegnes av stilig arkitektur og praktiske planløsninger. Hytteserien tar utgangspunkt i Gudbrandsdalens byggeskikk. Vy har enkle volumer med saltak, store takutstikk med lav gesims og en karakteristisk kledning, som gir tilknytning til tradisjonell stavkonstruksjon. Vinduene er trukket inn i veggen, for å få maksimal skyggevirkning. Store vindusflater gir mye lys og utsikt, og hjørnevinduene gir en helt unik utsikt og kontakt med naturen.
Innhold
Prisen i annonsen inneholder ferdig oppsatt hytte inkl. tomt, graving og grunnmur.
På tomta er det også mulighet for å sette opp anneks og garasje i henhold til reguleringsplanen for området.
I totalprisen inngår ikke:
Byggesaksbehandling kommune: kr 17 648
Tilknytning vann/avløp: kr 44 800
Overflatene i hytta er oppgradert med heltre eikegulv på alle rom med tregulv, og gulvvarme på stue/kjk/TV-stue. Fliser med varmekabler i gang, bad og boder. Trapp med inntrinn i eik. For øvrig er hytta spesialtilpasset tomta og leveres med ca. 15 kvm. utendørs terrasseplass avgrenset av natursteinsmur og skigard som rekkverk.
Standard
Leveransebeskrivelse hytte Vy 20ATU ferdig satt opp i Svartskardvegen 6:
Grunn- og betong
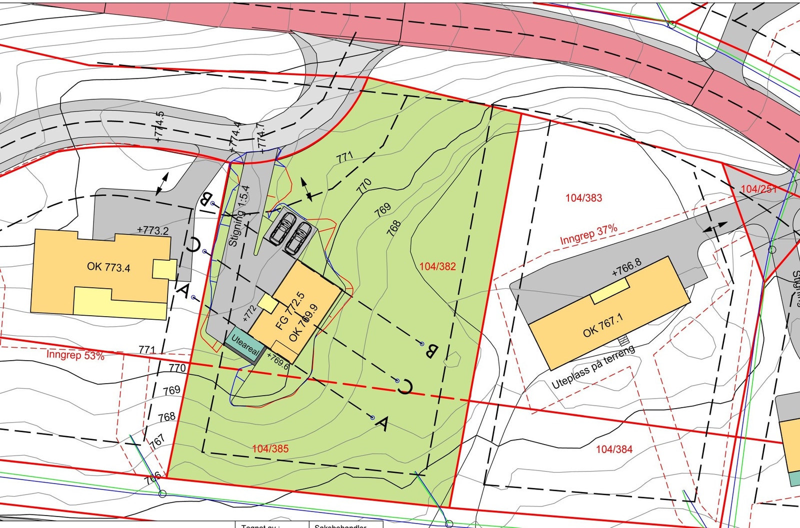
Opparbeidet tomt, isolert grunnmur, strøm, vann og avløp. Utomhus ferdigstilles med tilbake-fylling mot hytte, samt oppfylling og arrondering av utearealer med stedlige masser, med pussing av overflater. Veier leveres med hytteveistandard, og gårdsplasser og gangveier med grus. Utomhus tilpasses i.h.t. området slik det blir etter utbyggingen. Tegningene er ikke nøyaktig målsatt m.h.h.t. utomhus, og det tas forbehold om justering av arrondering utomhus herunder innkjøringer, biloppstillingsplasser, gangveier og nøyaktig plassering av bebyggelse.
Utvendige overflater
Utvendig kledning er grov, stående panel ubehandlet.
Naturtorv på tak. 2 lags energivinduer med herdet glass. Vinduer, ytterdører og innerdører er malt. Terrasse har 28 mm impregnert spaltegulv.
Innvendig overflater
Alle rom har 14 mm beiset furupanel på vegger og i himling. Bad/toalett har fliser på vegger i dusjnisje. Bad/toalett, gang og bod har fliser på gulv. Kjøkken/spisestue/stue og soverom har 20 mm heltre eikegulv.
Trappa har inntrinn av eik, i samme nyanse som eikegulvet.
Elektro
Varmekabler på bad/toalett, gang og bod, samt oppholdsrom som Stue/kjk./spisestue og TV-stue. Faste lamper (ute og inne), stikkontakter, panelovner på oppholdsrom uten gulvvarme. Brytere, regulator for gulvvarme, stikkontakter, baderomsvifte og panelovner leveres i Elko+ design utførelse.
Rørlegger
Alt inntegnet sanitærutstyr.
Kjøkken og bad
Kjøkken- og baderomsinnredning er inkludert.
Pipe og ovn
I denne sokkelmodellen er peisinnsats fra Jøtul inkludert.
Ikke inkludert i leveransen:
Hvitevarer, garderobeskap og lamper i oppholdsrom der det er bryterpunkt og stikkontakter ved taklist samt utvendig beising. Kostnader til dette er avhengig av valgt standard og andel egeninnsats, anslås til å koste mellom 80 000 og 150 000 kr.
Beskaffenhet
Det er helårsvei til området. Tomten leveres med full infrastruktur, som innebærer vei, vann/avløp, strøm og fiber. Det er festetomt.
Det er vintervei helt frem til hytta med to parkeringsplasser.
Tomtekontrakt med oppgjør ivaretas av advokatfirmaet Thallaug ANS på Lillehammer v/ advokat Bergsvein Træthaug.
Beliggenhet
Svartskardvegen 6 ligger rett inntil løypene på Kvitfjells vestside og fra hytta kan du skli rett inn i tilbringerløype til alpinbakken og ned til heisen Vestsiden express. Denne heisen tar deg helt til 1032 moh på toppen av utforløypa. Her finnes det løyper for enhver smak!
Foretrekker du en dag på langrenn er mulighetene mange. Bare 150 meter fra hytta er det et meget godt løypenettverk med ca 350 km velpreparerte langrennsløper mot Fagerhøy, Skeikampen, Gålå og Fefor.
Kvitfjell er meget snøsikkert med skiløyper/alpinløyper som ved normalt vinter er åpent fra november til slutten av april.
Når snøen har smeltet er det mulighet for jakt og fiske, sykling, ridning og en rekke andre aktiviteter som er tilgjengelige i nærområdet. Området er like anvendelig vinter og høst, som vår og sommer. Dette er et område for de gode naturopplevelsene i et av Norges mest populære hytteområde.
Adkomst
Fra E6 tar du av ved Fåvang, og følg skilting til Kvitfjell. Deretter ta av mot Kvitfjell Vest. Etter du har passert skianlegget følger man Svinslåvegen /FV 383 ca. 1 km og tar til høyre inn på Svartskardvegen. Tomta er merket.
Beskrivelse (type bolig)
Vy sokkelmodell er tilrettelagt for skrå tomt. Hyttemodell Vy 20ATU inneholder romslig stue/kjøkkenløsning på hele 42 m2, 5 soverom, 2 bad, TV-stue og 2 boder. Fra hovedplanet er det utgang til stor terrasse på bakkeplan med skigard som avgrensing mot mur. Fra sokkeletasjen er det utgang til overbygd terrasse.
Bildene av hytte på tomt er en illustrasjon og endringer på det endelige produktet må påregnes, herunder utseende på steinmur, skigard, nøyaktig hytteplassering.
Diverse
Kjøpet skjer med tredelt kontrakt, hvor tomten håndteres i egen kontrakt, grunnmur i egen kontrakt, samt hytten i egen kontrakt.
Leve Hytter as står for leveransen av hytte og er alene ansvarlig for forhold som gjelder oppføring av hytta. Leve Hytter as oversender til grunn- og betongentreprenør endelige fundamentplaner så snart arbeidstegninger foreligger. Tomten heftes med dette av byggeklausul med Leve Hytter AS og fortrinnsvis sokkelmodellen Vy 20ATU. Andre sokkelmodeller fra Leve Hytter AS kan også settes opp på tomten. Ta kontakt for mer info.
Kjøpesum for tomten betales i henhold til tomtekjøpskontrakt. 2 % av kontraktssum for hytte betales 14 dager etter underskrift av avtalebekreftelse med Leve Hytter AS. Resterende betales iht. fremdrift i henhold til Byggblankett 3425 og bustadoppføringsloven. Grunn- og betongarbeider betales 50 % ved oppstart av grunnarbeider, 40 % ved ferdig grunnmur og 10 % ved ferdigbefaring av grunn- og betongarbeider.
Oppgitte priser for hyttene er basert på prisindeks 141,2 fra april 2022. Prisen vil indeksreguleres etter Statistisk sentralbyrås indeks for "Enebolig i tre, byggearbeid unntatt stein, jord- og sementarbeid" frem til Leve Hytter påbegynner selve oppføringen av hytta.
Størrelse på hytte og valgt planløsning kan justeres innenfor arkitektens retningslinjer for Vy. Tomten kan videre bebygges innenfor gjeldende reguleringsbestemmelser, men oppgitt pris forutsetter prosjektert hytte og plassering. Det tas fra selgersiden forbehold om justering/tilpasninger av situasjonsplanen i forbindelse med detaljprosjektering av hytteplassering og adkomstveger og at byggesøknad godkjennes i Ringebu kommune.
Kontraktene er først gyldig for selger når den er signert av signaturberettiget i LPT eiendom as, Løype anleggsdrift as og Leve Hytter as.
Hvitevarer / tilbehør
Hvitevarene og brunevarer medfølger ikke i salget.
Ta kontakt med megler for komplett informasjon
Nærområdet
Leve Hytter AS
Annonsene kan være mangelfulle i forhold til lovpålagt opplysningsplikt. Før bindende avtale inngås oppfordres interessenter til å innhente komplett informasjon fra meglerforetaket, selger eller utleier.


































