Bildegalleri

Brokke - Moderne & praktisk eleganse. Fem store familiehytter ved alpintbakken
- Omkostninger
- 113 901 kr
- Totalpris
- 4 103 901 kr
Nøkkelinfo
- Beliggenhet
- På fjellet
- Boligtype
- Hytte
- Eieform
- Eier (Selveier)
- Primærrom
- 106 m²
- Bruksareal
- 106 m²
- Tomt
- Eiet
- Byggeår
- 2023
- Soverom
- 4
Fasiliteter
Visning
Om eiendommen
Om prosjektet
Utvikler og arkitekt har tilstrebet en modernistisk og elegant arkitektonisk uttrykk som med sitt materialvalg blir et naturlig element i omgivelsene samtidig som det gir bruken et storslått oppholdsrom med lys/vindusåpning fra fotlisten i stuen helt til møne. Med åpen himling i oppholdrommet blir romfølelsen og utsikten mektig. Planløsningen er skapt av fjellfolk med årelang erfaring som vet hva storfamilen trenger. To bad, og et stort vaskerom/bod vil falle i smak.
Brokke Alpintsenter ligger rett over veien , og byr på et variert og spennende løypenett for alle aldre. Her er stolheis, t-tallerkentrekk, eget barneband og med sine 5 hovednedfarter, jibbepark og terrengløyper kan du utfolde deg uavhenging av nivå. Flott kafè med fristende retter på påfyll kan du også glede deg til.
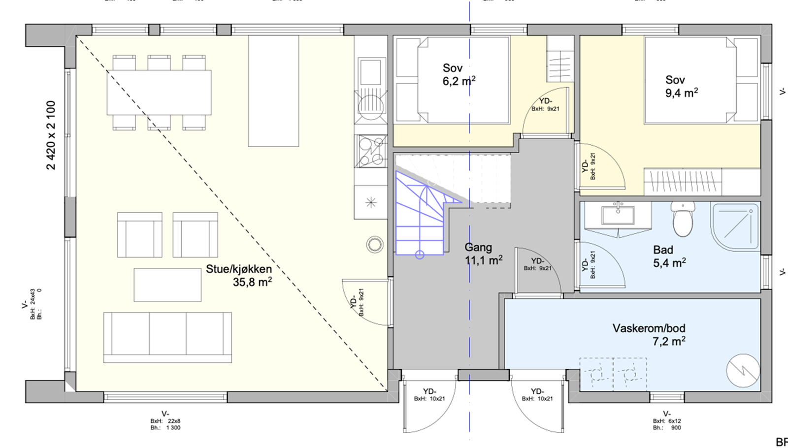
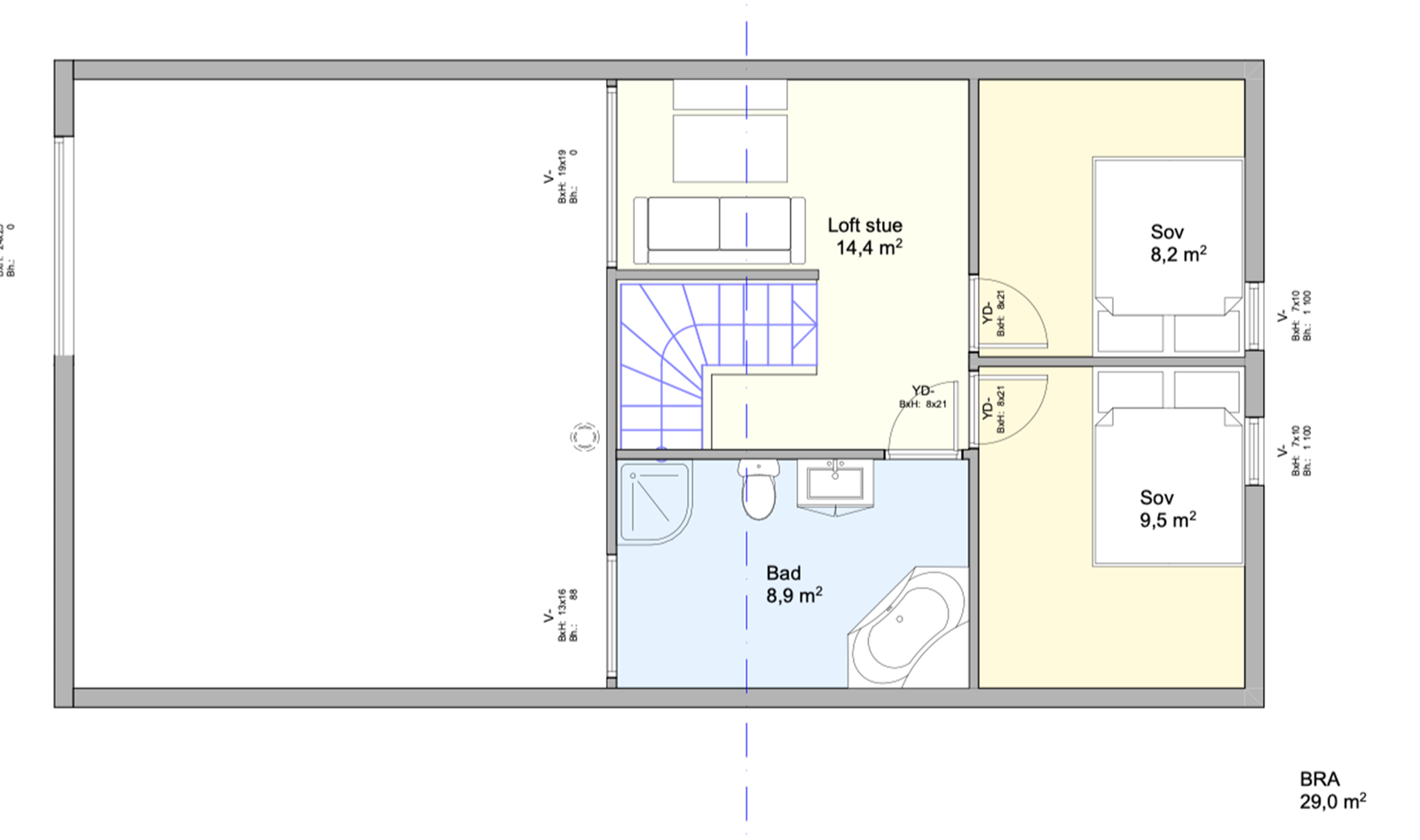
Areal og innhold
Brokke er et natureldorado i hjertet av Setesdal som passer alle som elsker uteliv. Enten du liker krevende alpinbakker, herlige skiturer med appelsin i sekken eller bygge snømann utenfor hytta. Om du elsker høstfarger som sprenger horisonten, eller våren som byr på bading og grilling på terrassen velkommen til Brokke!
BRA: 106,3 m2
P-Rom: 106,3 P-rom er satt til det samme som BRA i dette tilfelle da det ikke er noen egen innvendig bod. Rommet som er betegnet av arkitekten som vaskerom/bod er definert som vaskerom da det tjener det formålet med bl.a sluk og avløp for vaskemaskin
Leveranse andre oppholdsrom
Se vedlagte romskjema for beskrivelse av overflatebehandling som er standard leveranse.
Kjøkkenleveranse
Opplegg kjøkken og montering av utstyr fra utstyrslisten
kjøkkenbatteri SAGA m/avst
Baderomsleveranse
Bad
Gulvtoalett med skjult vannlås PB pro Mykplastsete, avst.ventil og stuss
Line 3.0 60cm innredning. Speil,lys og servantkran / røropplegg og montering
Dusjhjørne 90cm rett, Inkl dusjbatteri og garnityr 1
Gulvsluk (Joti)
Bad
Gulvtoalett med skjult vannlås PB pro Mykplastsete, avst.ventil og stuss
Line 3.0 60cm innredning. Speil,lys og servantkran / røropplegg og montering
Badekar. Viking bad Kvadrat 170X70 med panel. inkl batteri på vegg
Dusjhjørne 90cm rett, Inkl dusjbatteri og garnityr
Gulvsluk (Joti)
Vaskerom / Teknisk:
VV Bereder OSO 200 Ltr Saga inkl eks kar
Høiax inntaksskap m/ vannstoppventil, reduksjonsventil
og vannmålerkonsold
Gulvsluk (Joti)
Lufting
Frostfri utekran
Opplegg til vaskemaskin
Fellesareal i bygg
Se reguleringsplan/reguleringsbestemmelser. Det skal vises til situasjonsplan hvor plassering av biloppstillingsplasser skal være på tomta.
Boder
Bodplass er i kombinasjon med vaskrom og er vist på plantegningen.
Garasje/parkering
Biloppstilling på egen tomt.
Fremdriftsplan og ferdigstillelse
Eiendommen antas å være klar for overtagelse innen syv måneder fra avtaleinngåelsen. Selger skal samtidig med varsel om oppstart også varsle om en bindende tremåneders periode for overtagelse. Nærmere informasjon om endelig ferdigstillelsesdato vil bli opplyst med ca. 10 ukers skriftlig varsel.
Eventuell forsinkelse i forhold til varslet tremåneders periode for overtagelse samt endelig overtagelsesdato vil kunne gi kjøper krav på dagmulkt iht. bustadoppføringslovens regler. Forsinkelse i forhold til antatt overtagelse gir normalt ikke krav på dagmulkt.
Ved overtagelse skal det foreligge ferdigattest eller midlertidig brukstillatelse, se eget punkt om ferdigattest.
Tilvalg og endringer
Iht. bustadoppføringsloven § 9 har kjøper mulighet til å gjøre enkelte tilvalg og endringer avhengig av hvor langt man ha kommet i byggeprosessen. Det er en forutsetning at tilvalget/endringen står i sammenheng med den avtalte leveransen og at den ikke skiller seg vesentlig fra det som opprinnelig er avtalt. Kjøper kan ikke kreve tilvalg og/eller endringer som medfører større ulempe for selger enn den interessen kjøper har av å kreve tilvalget/endringen. Ulempen som tilvalg medfører for selger øker i samsvar med at prosjektet ferdigstilles.
Tilvalg- og endringsbestillinger vil kunne gi selger rett til tilleggsfrist i forbindelse med avtalt overtakelse. I slike tilfeller vil ikke kjøper ha rett til dagmulkt fra opprinnelig avtalt overtakelsetidspunkt.
Det må påregnes ekstra kostnad for tilvalg- og endringsbestillinger.
Selger utarbeider tilvalgs- og endringsliste hvor valgmulighetene for tilvalgsbestillinger og endringer fremkommer. Selger har rett til å ta seg betalt for utarbeidelse av pristilbud, tegninger mv.
Alle tilvalgs- og endringsbestillinger gjøres gjennom skriftlig avtale med selger og må være selger i hende senest innen de tidsfrister som fastsettes av selger.
Det kan maksimalt gjøres tilvalg- og endringsbetillinger for 15 % av kjøpesummen.
Alle tilvalgs- og endringsbestillinger skal gjøres opp til meglers klientkonto i forbindelse med sluttoppgjøret.
Salg av kontraktsposisjoner
Det gjøre spesielt oppmerksom på det ikke er anledning til å erverve mer enn to boligseksjoner i samme sameie jmf. eierseksjoneloven § 23. Bestemmelsen gjelder både fysiske og juridiske personer.
Forbrukerinformasjon om budgivning er beskrevet i vårt budskjema som følger vedlagt i denne salgsoppgaven.
Alle bud og budforhøyelser må inngis skriftlig. I tillegg må budet være signert og legitimasjon må være fremlagt. Eventuelle forhøyelser eller endringer på budet kan skje pr. sms eller på e-post.
For at budene skal kunne bli behandlet og videreformidlet skriftlig til alle involverte parter, må ethvert bud ha en tilstrekkelig lang akseptfrist, jf. eiendomsmeglingsforskriften § 6-3.
Selger av kontraktsposisjonen må skriftlig akseptere budet før budaksept kan formidles til budgiver. Budforhøyelser bør derfor være gyldig i minimum 30 minutter. Vi gjør oppmerksom på at bud uansett ikke kan settes med kortere frist enn kl. 12.00 etter siste annonserte visning.
Etter at eiendommen er solgt vil kjøper og selger av kontraktsposisjonen få tilsendt budjournal. Øvrige budgivere kan få utlevert kopi av budjournalen i anonymisert form.
Kjøper plikter å ha gjort seg kjent med komplett salgsinformasjon før bud inngis. Komplett salgsinformasjon utgjør salgsoppgave del 1 og del 2.
Salgsbetingelser og kjøpetilbud
Eiendommen(e) selges ved ordinær budgivning og evt. budrunde. Selger forbeholder seg retten til fritt å akseptere eller forkaste ethvert bud uten nærmere begrunnelse.
Forbrukerinformasjon om budgivning er beskrevet i vårt budskjema som følger vedlagt i denne salgsoppgaven.
Alle bud og budforhøyelser må inngis skriftlig. I tillegg må budet være signert og legitimasjon må være fremlagt. Eventuelle forhøyelser eller endringer på budet kan skje pr. sms eller på e-post.
For at budene skal kunne bli behandlet og videreformidlet skriftlig til alle involverte parter, må ethvert bud ha en tilstrekkelig lang akseptfrist, jf. eiendomsmeglingsforskriften § 6-3.
Selger må skriftlig akseptere budet før budaksept kan formidles til budgiver. Budforhøyelser bør derfor være gyldig i minimum 30 minutter.
Etter at eiendommen er solgt vil kjøper og selger få tilsendt budjournal. Øvrige budgivere kan få utlevert kopi av budjournalen i anonymisert form.
Kjøper plikter å ha gjort seg kjent med komplett salgsinformasjon før bud inngis. Komplett salgsinformasjon utgjør salgsoppgave del 1 og del 2.
Det gjøre spesielt oppmerksom på at det ikke er anledning til å erverve mer enn to boligseksjoner i samme sameie jmf. eierseksjoneloven § 23. Bestemmelsen gjelder både fysiske og juridiske personer.
Ved kjøp må det fremlegges finansieringsbekreftelse.
Forbehold fra utbygger
Selger forbeholder seg retten til å endre prisene for usolgte enheter uten forutgående varsel. Prislisten kan derfor bli erstattet av en senere utgave.
Hyttene selges på prosjekteringsstadiet og selger forbeholder seg derfor retten til uten forutgående varsel å gjøre mindre endringer som er hensiktsmessige og nødvendige for gjennomføringen av prosjektet.
Det gjøres oppmerksom på at sjakter og føringsveier for VVS installasjoner, ventilasjon og elektro ikke er inntegnet. Påforing/innkassing på vegger/ himlinger må påregnes og rommenes utforming kan bli noe endret som følge av dette.
I nyoppførte hytter forventes i noen grad svinn og krymping av materialer. Selger er ikke ansvarlig for slike forhold.
Det kan forekomme mindre avvik i tomtens størrelse.
Ovennevnte endringer/avvik gir ikke kjøper rett til prisavslag, erstatning eller heving.
Det gjøres oppmerksom på at tegninger, planer, skisser og bilder i salgsoppgaven kun er av illustrativ karakter og kan inneholde innredning og tilbehør mv. som ikke inngår i avtalen. Opplysninger gitt i leveransebeskrivelsen er gjeldende.
Ansvarlig megler
Jøran Flakk
Fagansvarlig/Eiendomsmegler MNEF
Salgsoppgaven beskriver vesentlig og lovpålagt informasjon om eiendommen
Se komplett salgsoppgaveNyttige lenker
Nærområdet
Krogsveen Kristiansand
Annonseinformasjon
| FINN-kode | 251624656 |
|---|---|
| Sist endret | 30. aug. 2023 09:14 |
| Referanse | KR31.2164 |
Annonsene kan være mangelfulle i forhold til lovpålagt opplysningsplikt. Før bindende avtale inngås oppfordres interessenter til å innhente komplett informasjon fra meglerforetaket, selger eller utleier.













