Bildegalleri

Himmelhø 1 vinter (illustrasjon)
Kvitfjell - Store utsiktstomter på Hestknappen
- Omkostninger
- 44 500 kr
- Totalpris
- 5 739 000 kr
Nøkkelinfo
- Beliggenhet
- På fjellet
- Boligtype
- Hytte
- Eieform
- Eier (Selveier)
- Bruksareal
- 111 m²
- Tomteareal
- 1 400 m² (eiet)
- Bruttoareal
- 111 m²
- Soverom
- 4
- Meter over havet
- 900
Fasiliteter
Visning
Ta kontakt for å avtale visning.Om eiendommen
Beliggenhet
Eiendommen ligger i umiddelbar nærhet til Kvitfjell Alpinanlegg og med skiløypene rett utenfor tomtegrensa. Det er fantastisk utsikt mot Rondane og Østerdalen.
Generelt
Adkomst/Tomteforhold
Adkomst fra E6 ved Fåvang via Kvitfjellvegen frem til krysset mot Gammelsætra der vegen tar av til høyre langs Strandsetervegen. Etter ca. 500m deler vegen seg og fortsetter inn til venstre mot Hestknappen.
Innhold
Standard
Himmelhø:
BRA total: 111 kvm
BRA bolig: 111 kvm
P-rom: 108 kvm
Antall soverom: 4
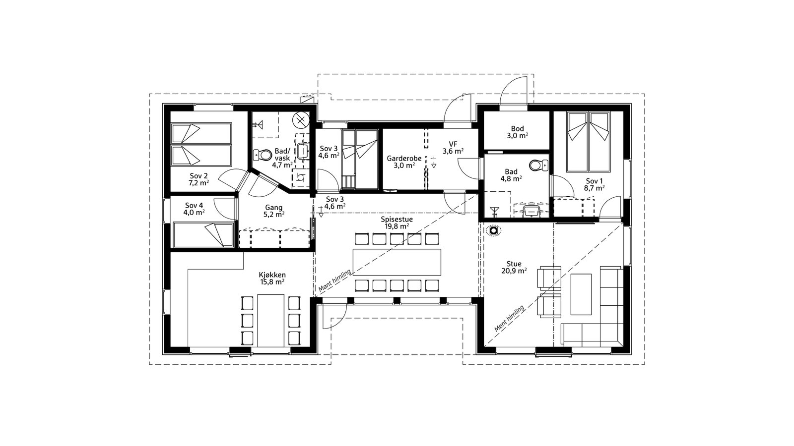
Praktfull hytte med to soner
Om fritidsboligen
Tenk deg å kunne nyte fridagene dine her på denne hytta!
Denne hytta er formet som bokstaven H og består av to hovedsoner som bindes sammen av et lyst og svært luftig spisestueområde på nesten 20 kvadratmeter. Dette er selve hjerte i hytta. Med sin mønet himling og store vindusflater, er dette et perfekt sted å samle familie og venner rundt langbordet. Herfra er det også utgang til en lun og skjermet uteplass. Helt nydelig når vinden blåser rundt hytteveggene.
Legg merke til den smarte garderobeløsningen ved inngangspartiet til hytta. Fra vindfanget er det også dør inn til et av hyttas to bad.
Hytta har fire soverom hvor to av dem finner du i sonen til venstre. I denne delen av hytta er også kjøkkenet på nesten 16 kvadratmeter plassert. I tillegg er det et bad med vaskerom samt gang med garderobeplass i denne hyttedelen.
I den andre hyttedelen til høyre, finner du den herlige stua. Her inne er det også mønet himling og høye vinduer som inviterer naturen utenfor med inn. Takhøyden sikrer samtidig at stua oppleves som meget luftig med god plass til både store og små. I denne delen av hytta er det største soverommet plassert med tilgang til eget bad, mens det siste soverommet finner du i den midterste delen.
Hytta er tenkt plassert på tomt nr 10
Prisene er satt med standardleveranse av Himmelhø, tillegg vil tilkomme.
Ta kontakt med oss for tilbud og en hyggelig dialog. Sammen skal vi oppfylle hyttedrømmen.
Hytteprisen er satt opp av flere faktorer:
Hyttepris: 3.250.000,-
Tomtepris: 1.780.000,-
Grav og betong: 665.000,-
Avgifter kommer i tillegg.
Ta kontakt med megler for komplett informasjon
Nærområdet

BoligPartner - Lillehammer
Annonseinformasjon
| FINN-kode | 252437890 |
|---|---|
| Sist endret | 20. feb. 2023 13:30 |
| Referanse | Hestknappen Himmelhø |
Annonsene kan være mangelfulle i forhold til lovpålagt opplysningsplikt. Før bindende avtale inngås oppfordres interessenter til å innhente komplett informasjon fra meglerforetaket, selger eller utleier.












