Bildegalleri

Velkommen til Breigata 12, presentert av Schala & Partners avd. Bjørvika / Gamle Oslo ved Henrik Stråkander, tlf. 98 30 02 83.
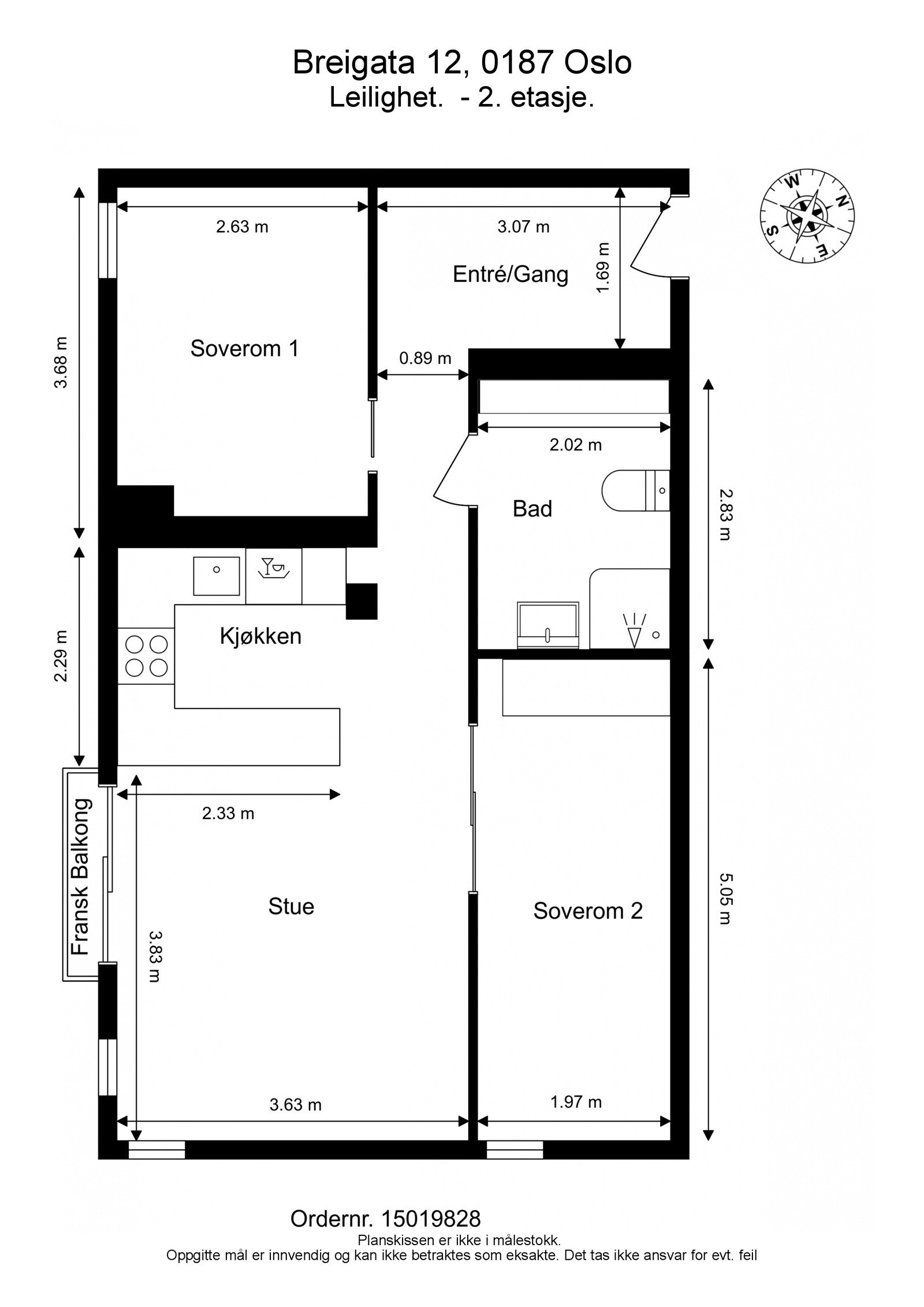
Lys og innbydende 3-roms leilighet! | Kjøkken fra 2019 | IN-ordning felleskostn 4.836,- | Fjernvarme | Felles takterrass
Nøkkelinfo
- Boligtype
- Leilighet
- Eieform
- Andel
- Soverom
- 2
- Primærrom
- 58 m²
- Bruksareal
- 58 m²
- Etasje
- 2
- Byggeår
- 2009
- Energimerking
- D - Mørkegrønn
- Rom
- 3
- Tomteareal
- 288 m² (eiet)
Fasiliteter
Om boligen
Velkommen til en lys og innbydende 3-roms leilighet med super beliggenhet på Grønland! I 2009 ble bygget omgjort til boliger, som gjør at leiligheten holder en god standard. Store vinduer som slipper inn mye lys og gir en god atmosfære.
- IN-ordning: Ved nedbet. av fellesgjeld vil felleskostn. bli på kr. 4.836,-
- Fellesgjeld finansiert m. lån fra Husbanken m. lave renter!
- Delikat og lys stue med fransk balkong
- Laminat på gulv og spolights i stue fra 2020
- Lekkert kjøkken fra 2019
- Flislagt bad fra 2009 med gulvvarme
- Baderomsinnredning fra 2020
- Bad med opplegg for vaskemaskin og tørktetrommel
- To soverom med mulighet for garderobeløsning
- Innbydende entré med dør med Smartlås
- Felles takterrasse med supre solforhold
- Akonto fjernvarme og fiber fra Lynet inkl.
- Mulighet for leie av p-plass (Amino Park)
- Heisadkomst
Salgsoppgaven beskriver vesentlig og lovpålagt informasjon om eiendommen
Se komplett salgsoppgaveNyttige lenker
Nærområdet
Schala & Partners Bjørvika/Gamle Oslo
Prisstatistikk
Breigata 12
på annonsen
prisantydning per kvadratmeter
Prisfordeling
Pris per m² ligger 26 926 kr under snittet for leiligheter i Gamle Oslo.
Grafen viser antall leiligheter solgt i Gamle Oslo siste året fordelt på pris per m² - totalt 2 110 leiligheter
Antall boliger
Kvadratmeterpris tilsvarer prisantydning pluss fellesgjeld per kvadratmeter (p-rom eller BRA-i). Prisene i grafen er avrundet til nærmeste 1000 kr.
Annonseinformasjon
| FINN-kode | 264903503 |
|---|---|
| Sist endret | 31. juli 2022 10:54 |
| Referanse | 55220119 |
Annonsene kan være mangelfulle i forhold til lovpålagt opplysningsplikt. Før bindende avtale inngås oppfordres interessenter til å innhente komplett informasjon fra meglerforetaket, selger eller utleier.

































