Bildegalleri

Velkommen til en knallfin 3-roms beliggende i øverste etasje. Utsikt mot skisenteret.
Solgt
Fjellandsbyen
3-roms beliggende i øverste etasje, Fjellandsbyen! Sørvendt med utsikt mot skisenteret. Midt i opplevelsene!
Prisantydning5 000 000 kr
- Omkostninger
- 7 500 kr
- Totalpris
- 5 007 500 kr
- Felleskost/mnd.
- 2 442 kr
Nøkkelinfo
- Beliggenhet
- På fjellet
- Boligtype
- Leilighet
- Eieform
- Eier (Selveier)
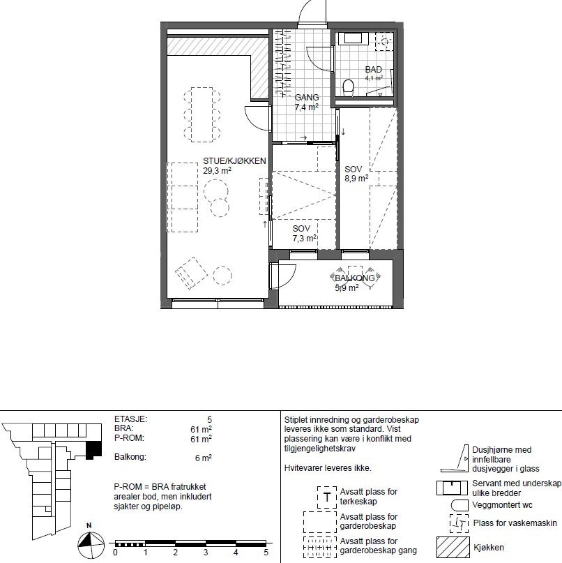
- Primærrom
- 61 m²
- Bruksareal
- 61 m²
- Tomt
- Eiet
- Soverom
- 2
- Rom
- 3
- Overtakelse
- Overtagelse skal skje i perioden 15.02.2024 til 15.06.24. Endelig overtagelsesdato for respektive fritidsbolig skal ligge innenfor overtagelsesperioden nevnt ovenfor og skal varsles cirka 8 uker før iht. bestemmelsene i kjøpekontraktens punkt 11. Det tas sikte på å overlevere boligene i første halvdel av den varslede perioden. Vi understreker at dette er slik det nå ser ut og at man må ta høyde for overlevering i hele den varslede perioden.
Fasiliteter
Innlagt vann
Alpinanlegg
Balkong/Terrasse
Barnevennlig
Bilvei frem
Bredbåndstilknytning
Kabel-TV
Rolig
Utsikt
Vaktmester-/vektertjeneste
Fiskemulighet
Innlagt strøm
Turterreng
Om boligen
Videresalg kontrakt.
Ikke utleieplikt.
3-roms med god beliggenhet i Fjellandsbyen Hemsedal - under oppføring, forventet ferdigstilles 1-2. kvartal 2024!
Fjellandsbyen Hemsedal blir som en liten, hyggelig by på landet med spennende urbane tilbud - samtidig ermulighetene fantastiske natur- og sportsopplevelser står i kø. Bo ved foten av Norges kanskje beste skianlegg ski inn / ski ut dekker hva du enn foretrekker å ha under beina; ski eller brett. 53 bakker med 21 heiser og 48 km med løyper og snowparker.
Leiligheten har innholdsrik og god planløsning: gang, åpen stue- og kjøkkenløsning med utgang til balkong, 2 soverom og bad.
Det medfølger Skiskap og sportsbod.
Rett til leie av parkering i underliggende parkeringsanlegg.
Ski, afterski, restauranter og butikker rett utenfor døren.
Ikke utleieplikt.
3-roms med god beliggenhet i Fjellandsbyen Hemsedal - under oppføring, forventet ferdigstilles 1-2. kvartal 2024!
Fjellandsbyen Hemsedal blir som en liten, hyggelig by på landet med spennende urbane tilbud - samtidig ermulighetene fantastiske natur- og sportsopplevelser står i kø. Bo ved foten av Norges kanskje beste skianlegg ski inn / ski ut dekker hva du enn foretrekker å ha under beina; ski eller brett. 53 bakker med 21 heiser og 48 km med løyper og snowparker.
Leiligheten har innholdsrik og god planløsning: gang, åpen stue- og kjøkkenløsning med utgang til balkong, 2 soverom og bad.
Det medfølger Skiskap og sportsbod.
Rett til leie av parkering i underliggende parkeringsanlegg.
Ski, afterski, restauranter og butikker rett utenfor døren.
NB: Knappen for å vise hele beskrivelsen har kun en visuell effekt.
NB: Knappen for å vise hele beskrivelsen har kun en visuell effekt.
Salgsoppgaven beskriver vesentlig og lovpålagt informasjon om eiendommen
Se komplett salgsoppgaveNyttige lenker
Nærområdet
EIE Fjellmegleren Hemsedal
Annonseinformasjon
| FINN-kode | 271549382 |
|---|---|
| Sist endret | 02. apr. 2023 15:34 |
| Referanse | 1532220201 |
Annonsene kan være mangelfulle i forhold til lovpålagt opplysningsplikt. Før bindende avtale inngås oppfordres interessenter til å innhente komplett informasjon fra meglerforetaket, selger eller utleier.




















