Bildegalleri

Velkommen til Sikkilsgrenda 16!
SKÅBU - Hyttetun med hovedhytte, anneks, 2 uthus og carport - 5 sov - 3 bad, 2 peiser - tomt 2,3 mål!
- Omkostninger
- 141 269 kr
- Totalpris
- 5 341 269 kr
- Kommunale avg.
- 16 917 kr per år
- Formuesverdi
- 35 228 kr
Nøkkelinfo
- Beliggenhet
- På fjellet
- Boligtype
- Hytte
- Eieform
- Eier (Selveier)
- Primærrom
- 129 m²
- Bruksareal
- 129 m²
- Tomteareal
- 2 301 m² (eiet)
- Bruttoareal
- 238 m²
- Byggeår
- 2001
- Soverom
- 5
- Rom
- 5
- Energimerking
- D - Rød
Fasiliteter
Visning
Husk å lese komplett salgsoppgave før visning. Bestill komplett, utskriftsvennlig salgsoppgave.
VisningspåmeldingOm boligen
Drømmer du om et sted du kan trekke deg tilbake i ferier og helger? Velkommen til idylliske Sikkilsgrenda 16!
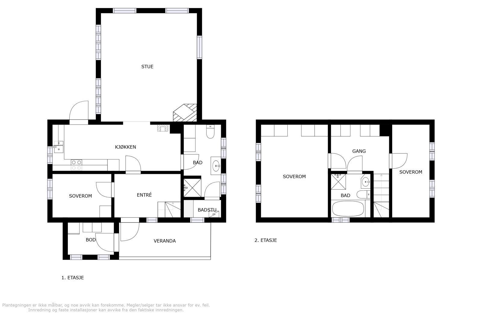
Eiendommen ligger flott til i et fredfullt område. Tomten består av hovedhytte, anneks, uthus, carport og bod. Eiendommen ligger høyt og fint til, i et rolig hytteområde på Skåbu med flotte jakt- og fiskemuligheter. Rett utenfor døra kan du rusle ut i det store omfanget av turområder. Eiendommen har gode solforhold. Hytta har en god og praktisk planløsning og inneholder entré, hyggelig kjøkken med utgang til uteplass, stue/spisestue med peis, soverom, praktisk bod, bad og badstu. I 2. etasje er det ytterligere 2 soverom og bad. Annekset er innredet med åpen stue- og kjøkkenløsning, entrè med utgang til uteplass, 2 soverom og bad.
Velkommen til visning!
Salgsoppgaven beskriver vesentlig og lovpålagt informasjon om eiendommen
Se komplett salgsoppgaveNyttige lenker
Nærområdet
Tinholt eiendomsmegling
Annonseinformasjon
| FINN-kode | 274151989 |
|---|---|
| Sist endret | 10. aug. 2023 06:20 |
| Referanse | 169220011 |
Annonsene kan være mangelfulle i forhold til lovpålagt opplysningsplikt. Før bindende avtale inngås oppfordres interessenter til å innhente komplett informasjon fra meglerforetaket, selger eller utleier.















































