Bildegalleri

Velkommen til Fjellnest - ALL IN - Rett ved alpintanlegget.
Inaktiv
FJELLNEST - All In
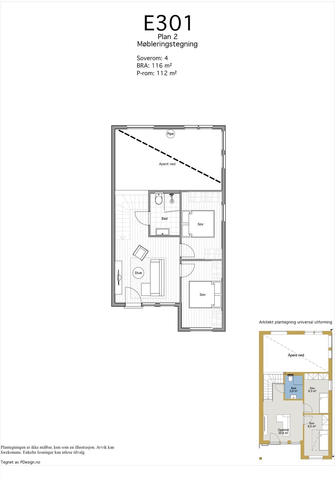
Spektakulær topp-/ hjørneleilighet på 116 kvm. 4 sov og 2 bad. Gasspeis. Heis. Garasje. Balkong. Fantastisk utsikt.
Prisantydning9 000 000 kr
- Omkostninger
- 12 342 kr
- Totalpris
- 9 012 342 kr
Nøkkelinfo
- Beliggenhet
- På fjellet
- Boligtype
- Leilighet
- Eieform
- Eier (Selveier)
- Bruksareal
- 116 m²
- Tomt
- Eiet
- Soverom
- 4
- Rom
- 5
Fasiliteter
Innlagt vann
Alpinanlegg
Balkong/Terrasse
Barnevennlig
Bilvei frem
Bredbåndstilknytning
Garasje/P-plass
Peis/Ildsted
Rolig
Utsikt
Vaktmester-/vektertjeneste
Bademulighet
Fiskemulighet
Innlagt strøm
Offentlig vann/kloakk
Turterreng
Visning
Husk å meld deg på visning i forkant. Kontakt megler privatvisning.
Husk å lese komplett salgsoppgave før visning. Bestill komplett, utskriftsvennlig salgsoppgave.
VisningspåmeldingOm boligen
Spektakulær toppleilighet med hems. Fantastisk takhøyde, store vindusflater og utsikt mot Kyrkjebønnøse. Det er gjennomgående god standard med smakfulle farge- og materialvalg. I denne leiligheten har man blant annet 4 gode soverom, loftstue med mulighet for soverom og 2 baderom. Stor og lys stue med gasspeis og kjøkken/spisestue i åpen løsning med vanvittig takhøyde.
En meget velfungerende planløsning, hvor man har en gjeste-/ barnedel med soverom, stor loftstue og bad på hemsen.
Fantastisk beliggenhet ved foten av alpinanlegget med kort vei til absolutt alle fasiliteter i Hemsedal.
Se mer og last ned prospekt på fjellnest.no
En meget velfungerende planløsning, hvor man har en gjeste-/ barnedel med soverom, stor loftstue og bad på hemsen.
Fantastisk beliggenhet ved foten av alpinanlegget med kort vei til absolutt alle fasiliteter i Hemsedal.
Se mer og last ned prospekt på fjellnest.no
- Ingen utleieplikt
- Antatt ferdigstillelse 2023
- Besøk boligvelger på fjellnest.no
- Velkommen til visning i høstferien
NB: Knappen for å vise hele beskrivelsen har kun en visuell effekt.
NB: Knappen for å vise hele beskrivelsen har kun en visuell effekt.
Salgsoppgaven beskriver vesentlig og lovpålagt informasjon om eiendommen
Se komplett salgsoppgaveNyttige lenker
Nærområdet
Nordvik Frogner
Annonseinformasjon
| FINN-kode | 274939580 |
|---|---|
| Sist endret | 18. nov. 2022 14:26 |
| Referanse | NOP14.22525 |
Annonsene kan være mangelfulle i forhold til lovpålagt opplysningsplikt. Før bindende avtale inngås oppfordres interessenter til å innhente komplett informasjon fra meglerforetaket, selger eller utleier.


















