Bildegalleri

Velkommen til Veslesetervegen 971F!
Tiltalende 4-roms topp- og endeleilighet med solrik balkong. Meget sentral beliggenhet, like ved skiløyper
- Omkostninger
- 80 642 kr
- Totalpris
- 2 872 883 kr
- Kommunale avg.
- 13 606 kr per år
- Fellesgjeld
- 2 241 kr
- Felleskost/mnd.
- 2 058 kr
Nøkkelinfo
- Beliggenhet
- På fjellet
- Boligtype
- Leilighet
- Eieform
- Eier (Selveier)
- Primærrom
- 67 m²
- Bruksareal
- 67 m²
- Tomt
- Eiet
- Byggeår
- 2001
- Soverom
- 2
- Rom
- 3
- Energimerking
- D - Rød
Fasiliteter
Om boligen
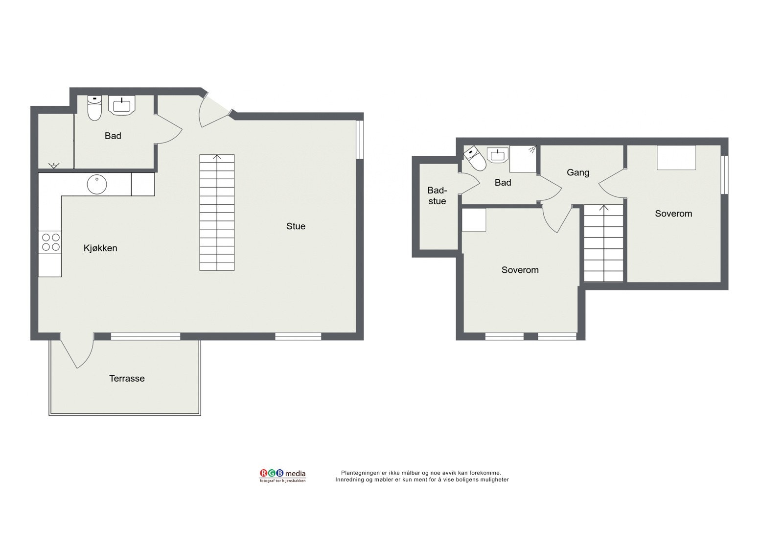
PrivatMegleren Lillehammer har gleden av å presentere denne tiltalende toppleilgheten med fantastiske sol- og utsiktsforhold. Attraktiv og barnevennlig beliggenhet uten gjennomgangstrafikk og med kort avstand til "alt" av fasiliteter. Leiligheten holder gjennomgående god standard med bl.a. gulvvarme på stue, kjøkken og bad. Leiligheten kan i dag skilte med 2 soverom og 2 bad, men det er mulig å etablere et 3. soverom mot øst i hovedetasjen (se alternativ planløsning).
Skeikampen byr på muligheter for utrolige naturopplevelser sommer som vinter. Fra eiendommen er det umiddelbar nærhet til preparerte skiløyper og kort avstand til alpinbakke med 21 nedfarter. Her kan du også spille golf på Nordens høyest beliggende 18-hulls golfbane og nyte unike turmuligheter både til fots og på sykkel.
Salgsoppgaven beskriver vesentlig og lovpålagt informasjon om eiendommen
Se komplett salgsoppgaveNyttige lenker
Nærområdet

PrivatMegleren Lillehammer
Annonseinformasjon
| FINN-kode | 275004329 |
|---|---|
| Sist endret | 13. okt. 2022 13:19 |
| Referanse | 55220381 |
Annonsene kan være mangelfulle i forhold til lovpålagt opplysningsplikt. Før bindende avtale inngås oppfordres interessenter til å innhente komplett informasjon fra meglerforetaket, selger eller utleier.











































