Bildegalleri

Krogsveen v/Markus Alm Thoen ønsker velkommen til Tyttebærveien 11!
Solgt
Konnerud
Stor og flott familiebolig m/ utleieleilighet. Solrik, barnevennlig beliggenhet, grenser til friområde, garasje
Prisantydning6 450 000 kr
Nøkkelinfo
- Boligtype
- Enebolig
- Eieform
- Eier (Selveier)
- Soverom
- 4
- Internt bruksareal
- 242 m² (BRA-i)
- Bruksareal
- 272 m²
- Eksternt bruksareal
- 30 m² (BRA-e)
- Balkong/Terrasse
- 102 m² (TBA)
- Etasje
- 3
- Byggeår
- 1986
- Energimerking
- E - Oransje
- Tomteareal
- 711 m² (eiet)
Fasiliteter
Balkong/Terrasse
Barnevennlig
Bredbåndstilknytning
Garasje/P-plass
Hage
Kjæledyr tillatt
Offentlig vann/kloakk
Parkett
Peis/Ildsted
Rolig
Turterreng
Lademulighet
Balansert ventilasjon
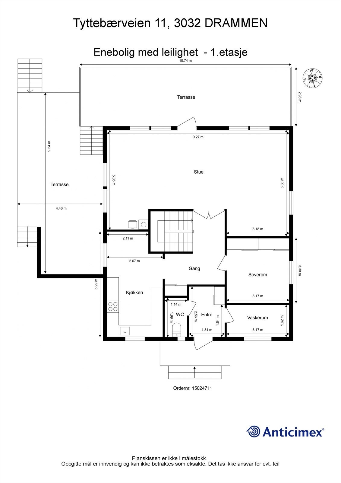
Om boligen
Fin familiebolig med utleiedel, beliggende i et attraktiv og barnevennlig boligområde.
Velkommen til visning!
- Romslig stue med peisovn og varmepumpe
- Profilert kjøkken fra ca. 2012 med integrerte hvitevarer
- Oppgradert bad i u. etg og loftetg. i 2015
- Praktisk wc-rom og separat vaskerom i 1. etg
- 2-roms utleiedel på ca. 44 kvm i u. etg (skattefri leieinntekt 8.700,-)
- Solrike uteplasser som er vestvendt og sørvendt
- Parkering i garasje og på egen gårdsplass
- Eiendommen grenser til kommunalt grøntareal/friareal innerst på en rolig del av feltet
- Umiddelbar nærhet til fotballbaner og felles lekeplass
- Gangavstand til marka/skiløyper og Konnerud sentrum med flere servicetilbud
Velkommen til visning!
NB: Knappen for å vise hele beskrivelsen har kun en visuell effekt.
NB: Knappen for å vise hele beskrivelsen har kun en visuell effekt.
Salgsoppgaven beskriver vesentlig og lovpålagt informasjon om eiendommen
Se komplett salgsoppgaveNyttige lenker
Nærområdet
Krogsveen Drammen
Verdien av en god megler.
Prisstatistikk
Tyttebærveien 11
21 865 klikk
på annonsen
26 652 kr
prisantydning per kvadratmeter
Prisfordeling
Pris per m² ligger 8 348 kr under snittet for eneboliger i Gamle Drammen.
Grafen viser antall eneboliger solgt i Gamle Drammen siste året fordelt på pris per m² - totalt 312 eneboliger
Antall boliger
Kvadratmeterpris tilsvarer prisantydning pluss fellesgjeld per kvadratmeter (p-rom eller BRA-i). Prisene i grafen er avrundet til nærmeste 1000 kr.
Annonseinformasjon
| FINN-kode | 286145897 |
|---|---|
| Sist endret | 04. juli 2025 17:39 |
| Referanse | KR20.22439 |
Annonsene kan være mangelfulle i forhold til lovpålagt opplysningsplikt. Før bindende avtale inngås oppfordres interessenter til å innhente komplett informasjon fra meglerforetaket, selger eller utleier.











































