Bildegalleri

Velkommen til Vestre Gjesåsveg 38 på Kjellmyra!
Solgt
Kjellmyra
Pen og innholdsrik leilighet på Gjesåsen. Leiligheten framstår som godt ivaretatt og arealeffektiv!
Prisantydning1 040 000 kr
Nøkkelinfo
- Boligtype
- Leilighet
- Eieform
- Eier (Selveier)
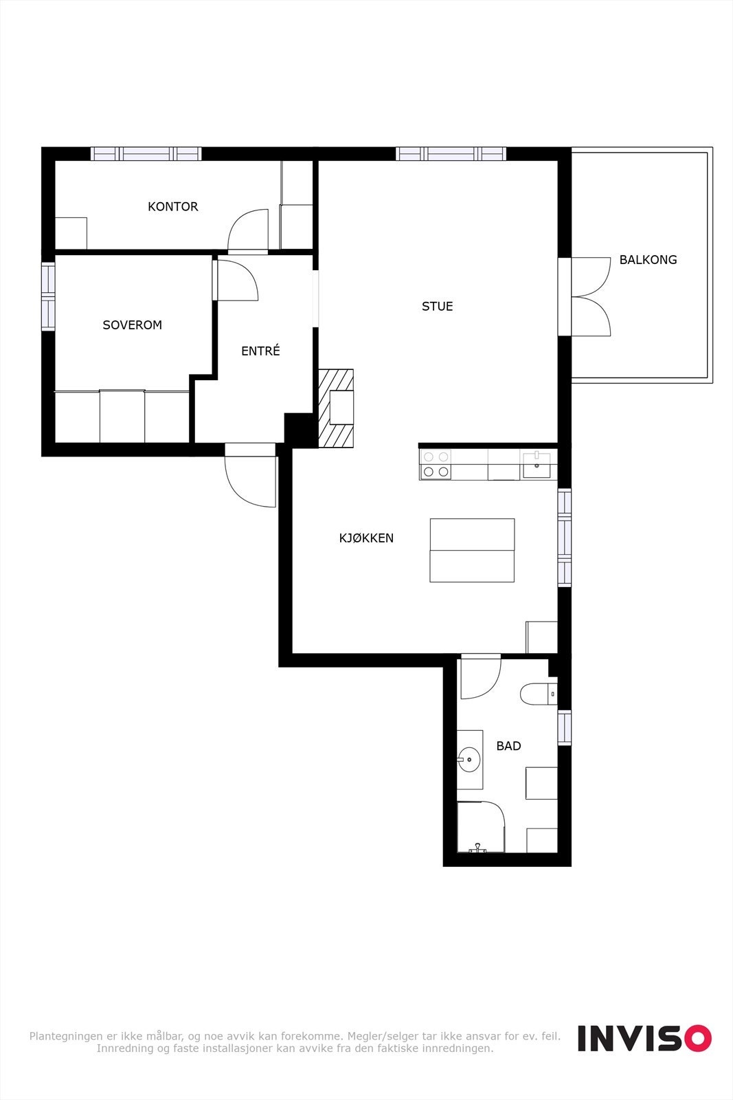
- Soverom
- 2
- Primærrom
- 75 m²
- Bruksareal
- 75 m²
- Etasje
- 2
- Byggeår
- 1912
- Energimerking
- G - Gul
- Rom
- 3
- Renovert år
- 2005
- Tomteareal
- 1 304 m² (eiet)
- Bruttoareal
- 89 m²
Om boligen
- Smart utnyttelse av plass
- Nyere kjøkken
- Fin beliggenhet i bygget
- Romslig stue
- Balkong
- Nyere kjøkken
- Fin beliggenhet i bygget
- Romslig stue
- Balkong
NB: Knappen for å vise hele beskrivelsen har kun en visuell effekt.
NB: Knappen for å vise hele beskrivelsen har kun en visuell effekt.
Salgsoppgaven beskriver vesentlig og lovpålagt informasjon om eiendommen
Se komplett salgsoppgaveNyttige lenker
Nærområdet
EiendomsMegler 1 Elverum
Vi loser deg trygt gjennom hele boligsalget
Prisstatistikk
Vestre Gjesåsveg 38
4 193 klikk
på annonsen
13 866 kr
prisantydning per kvadratmeter
Prisfordeling
Pris per m² ligger 22 134 kr under snittet for leiligheter i Åsnes.
Grafen viser antall leiligheter solgt i Åsnes siste året fordelt på pris per m² - totalt 17 leiligheter
Antall boliger
Kvadratmeterpris tilsvarer prisantydning pluss fellesgjeld per kvadratmeter (p-rom eller BRA-i). Prisene i grafen er avrundet til nærmeste 1000 kr.
Annonseinformasjon
| FINN-kode | 294931924 |
|---|---|
| Sist endret | 12. juli 2023 10:01 |
| Referanse | b42fc2a4-d761-442b-8d8a-11775455939e |
Annonsene kan være mangelfulle i forhold til lovpålagt opplysningsplikt. Før bindende avtale inngås oppfordres interessenter til å innhente komplett informasjon fra meglerforetaket, selger eller utleier.



























