Bildegalleri

Eiendommen ligger sørvendt i ett godt og veletablert, solrikt, rolig og barnevennlig omårde på Strømdal.
10 minutter fra Googletomta på Gromstul - utsiktstomt - i solrikt og rolig boligområde - utsikt til Vealøs
- Totalpris
- 874 850 kr
- Omkostninger
- 34 850 kr
Nøkkelinfo
Fasiliteter
Visning
Om eiendommen
Beskrivelse
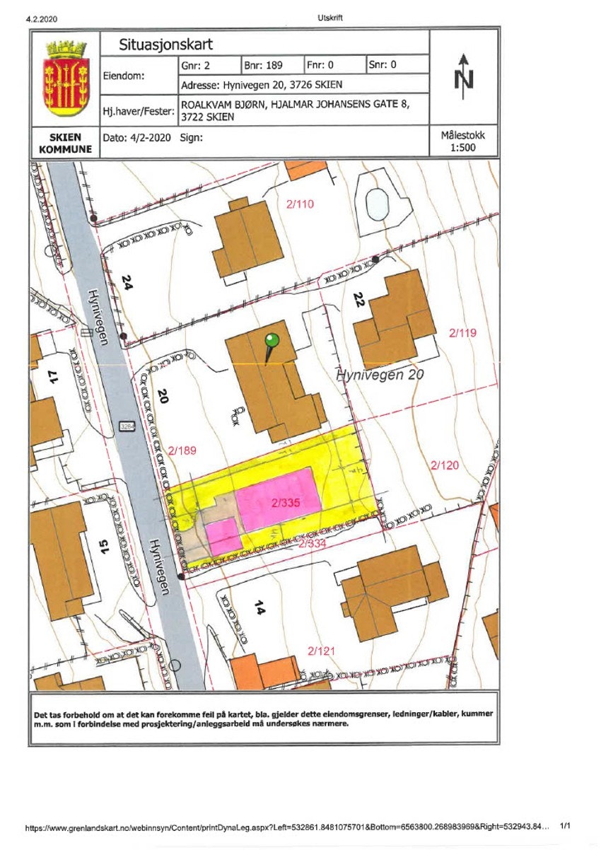
Flott utsiktstomt på 567 kvm i populært boområde som ligger sørvendt. Det foreligger tinglyst avtale fra nabotomten(Gnr. 2, Bnr. 189), som betyr at denne tomten har rett til å bygge boligen 1 meter fra nabogrensen/felles grense inne på denne eiendommen. Denne fine sørvendte tomten ligger i et veletablert, solrikt og barnevennligg område på Strømdal. Det er flott utsikt til Vealøs, Falkum og omegn. Gode bussforbindelser fra Gulsetvegen til Skien sentrum, og gangavstand til Myren handelssenter. Forøvrig kort avstand til idrettsanlegg, treningssenter, svømmehall og lysløype. Flotte turområder, bademulighetre i Åletjern m.m.
Beliggenhet
Tomten ligger flott til, en solrik tomt som ligger i ett godt boligområde med både nye og etablerte boliger. Med kort nærhet til barnehager, og barne- og ungdomsskole på Gulset og privatskole på Strømdal. Tomten har flott utsikt til Vealøs, Falkum og omegn. Populære Myren handelssenter ligger 3 min. med bil fra tomten. Det er gode bussforbindelser fra Gulsetvegen, og kort avstand til idrettsanlegg, treningssenter, svømmehall, lysløype og ungdomsklubb m.m. Det er mange fine turområder, og bademuligheter i Åletjern m.m.
Gå inn på nettsiden:
www.skien.kommune.no
Her finner man totaloversikt over alle aktiviteter, tjenester, kultur- og servicetilbud i Skien kommune.
Adkomst
Det vil bli skiltet med Meglerhuset Telemark sine visningsskilt i forbindelse med fellesvisninger. Se kart på finn.no.
Formuesverdi
Formuesverdi er ikke fastsatt enda. Formuesverdien fastsettes med utgangspunkt i en kvadratmeterpris, som beregnes av Statistisk sentralbyrå (SSB). Kvadratmeterprisen skal gi uttrykk for en estimert markedsverdi pr. kvadratmeter og bygger på statistiske opplysninger om omsatte boliger (boligtype, areal, geografisk beliggenhet og alder).
Ut fra kvadratmeterprisene til SSB fastsetter Skatteetaten årlige kvadratmetersatser. Disse satsene vil utgjøre hhv. 25% av kvadratmeterprisene for primærboliger (der boligeier er folkeregistrert pr. 1. januar) og 90% for sekundærboliger (alle andre boliger).
Regulering
Eiendommen er regulert til boligformål jfr. reguleringsbestemmelser til reguleringsplan for del av Hynivegen datert 25.mai 1998. Revidert ifølge vedtak i bygningsrådet 13. oktober 1988 - sak nr. 3094/88.
For ytterligere opplysninger om regulering, vennligst ta kontakt med megler.
Boligselgerforsikring
Selger har ikke tegnet boligselgerforsikring.
Boligkjøperpakke / Boligkjøperforsikring
Partners har i samarbeid med If lansert et nytt og gunstig forsikringskonsept for deg som kunde. Dette innebærer at du får alle relevante dekninger inkludert til en meget konkurransedyktig pris.
Kjøper (ikke juridiske personer) har anledning til å tegne Boligkjøperpakken. Denne kan inkludere bl.a. Husforsikring, Innboforsikring, Dobbel rente dekning, Flytteforsikring og Boligkjøperforsikring. Boligkjøperpakken må senest tegnes på kontraktsmøte og prisen avhenger av boligtypen. Ta kontakt for ytterligere informasjon.
Budgivning
Vi oppfordrer alle til å lese Forbrukerinformasjon om budgivning før bud inngis. Alle bud og budforhøyelser skal inngis skriftlig til megler. I tillegg er megler pålagt å innhente gyldig legitimasjon og signatur fra budgiver før bud kan formidles til selger.
Kravet til legitimasjon og signatur er oppfylt for budgivere som benytter Bank-ID og vi oppfordrer derfor alle til å gi bud elektronisk ved å benytte GI BUD knappen på eiendommens hjemmeside på Partners.no. Eventuelle forhøyelser kan sendes ved å svare direkte på mottatt sms fra meglers system, til megler per e-post til helland@partners.no eller SMS: 45 23 08 63 . Alle budforhøyelser skal bekreftes av megler.
For at budene skal kunne bli behandlet og videreformidlet skriftlig til alle involverte parter, må alle bud ha en tilstrekkelig lang akseptfrist, jf. eiendomsmeglingsforskriften § 6-3. Selger må også skriftlig akseptere budet før aksept kan formidles til budgiver. Akseptfrist på alle bud skal være minimum 30 minutter, og budforhøyelser må skje i god tid før fristens utløp. Bud som ikke er skriftlig, eller som har kortere akseptfrist enn til kl. 12.00 dagen etter siste annonserte visning, vil ikke bli formidlet til selger. Selger står fritt til å akseptere eller forkaste et hvert bud og er således ikke forpliktet til å akseptere det høyeste budet på eiendommen. Etter at eiendommen er solgt vil kjøper og selger få tilsendt budjournal. Øvrige budgivere kan få utlevert kopi av budjournalen i anonymisert form.
Det gjøres oppmerksom på at budgiver også vil være den som vil stå som kjøper av eiendommen. Dersom man etter at bud er akseptert ønsker å endre hvem som skal stå som eier, forutsetter dette at selger godkjenner en slik endring. Alle involverte parter skal signere kjøpekontrakt og er solidarisk ansvarlig for kjøpet frem til oppgjør er gjennomført.
Lov om hvitvasking
Eiendomsmeglingsforetak plikter etter lov om hvitvasking å gjennomføre kontrollhandlinger knyttet til kjøper og selgers identitet og forhold knyttet til gjennomføringen av handelen. Dette omfatter også opplysninger om kundeforholdets formål og tilsikrede art. For kjøper må kontroll av legitimasjon skje senest ved inngåelse av kontrakt. Signering med bankID er regnet som gyldig legitimasjonskontroll. Ved oppdrag hvor juridiske personer (selskap) er part må eiendomsmegler også gjennomføre kontroll av hvilke fysiske personer som kontrollerer selskapet (reelle rettighetshavere). Dersom megler ikke klarer å gjennomføre pålagte kundetiltak må megler avvise kunden og oppdraget. Megler har også plikt å melde forhold som ikke er avklart og fremstår som mistenkelige til Økokrim. Megler kan også i enkelte tilfeller har plikt til å stanse gjennomføringen av handelen.
Eiendomsmegler plikter å gjennomføre ytterligere undersøkelser knyttet til handelen basert på kjøpers egenkapital eller andre forhold knyttet til kjøper. Kjøper oppfordres til å innbetale den delen av kjøpesummen som er egenkapital i en overføring fra egen bankkonto i norsk bank.
Salgsbetingelser
Eiendommen skal overleveres kjøper i tråd med det som er avtalt. Det er viktig at kjøper setter seg grundig inn i alle salgsdokumentene, herunder salgsoppgave, tilstandsrapport og selgers egenerklæring. Kjøper anses kjent med forhold som er tydelig beskrevet i salgsdokumentene. Forhold som er beskrevet i salgsdokumentene kan ikke påberopes som mangler. Dette gjelder uavhengig av om kjøper har lest dokumentene. Alle interessenter oppfordres til å undersøke eiendommen nøye, gjerne sammen med fagkyndig før bud inngis. Kjøper som velger å kjøpe usett kan ikke gjøre gjeldende som mangel noe han burde blitt kjent med ved undersøkelsen.
Dersom det er behov for avklaringer, anbefaler vi at kjøper rådfører seg med eiendomsmegler eller en bygningssakyndig før det legges inn bud.
Hvis eiendommen ikke er i samsvar med det kjøperen må kunne forvente ut ifra alder, type og synlig tilstand, kan det være en mangel. Det samme gjelder hvis det er holdt tilbake eller gitt uriktige opplysninger om eiendommen og dette har virket inn på avtalen. En bolig som har blitt brukt i en viss tid, har vanligvis blitt utsatt for slitasje og skader kan ha oppstått. Slik bruksslitasje må kjøper regne med, og det kan avdekkes enkelte forhold etter overtakelse som nødvendiggjør utbedringer. Normal slitasje og skader som nødvendiggjør utbedring, er innenfor hva kjøper må forvente og vil ikke utgjøre en mangel.
Boligen kan ha en mangel dersom det er avvik mellom opplyst og faktisk areal, forutsatt at avviket er på 2% eller mer og minimum 1 kvm.
Ved beregning av et eventuelt prisavslag eller erstatning må kjøper selv dekke tap/kostnader opptil et beløp på kr 10 000 (egenandel).
Dersom kjøper ikke er forbruker selges eiendommen som den er , og selgers ansvar er da begrenset jf. avhl. § 3-9, 2. pktm. Informasjon om kjøpers undersøkelsesplikt, herunder oppfordringen om å undersøke eiendommen nøye, gjelder også for kjøpere som ikke anses som forbrukere.
Eiendomsmegler standardkontrakt inneholder bl.a. bestemmelser om at det foreligger vesentlig mislighold som bl.a. gir selger rett til å heve når det er gått 30 dager fra avtalt betalingstid, kjøper aksepterer dette som bindende for seg.
Avhendingsloven
Frivillig salg av fast eiendom reguleres av Lov om avhending av fast eiendom av 3. juli 1992 nr. 93.
Finansiering
Vi har løpende kontakt med finansinstitusjoner som kan tilby lån med konkurransedyktige betingelser. Hvis ønskelig formidler vi gjerne kontakt.
Heftelser
§ 6-1.Lovbestemt pant i fast eiendom.
(1) For skattekrav etter lov av 6. juni 1975 nr. 29 om eigedomsskatt til kommunane har vedkommende kommune panterett foran alle andre heftelser i den eiendom skattekravet gjelder.
(2) Samme panterett har en kommune og kommunale etater for følgende særlige eiendomsavgifter:
a) avfallsgebyr etter lov 13. mars 1981 nr. 6 om vern mot forurensninger og om avfall,
b) feieavgift etter brann- og eksplosjonsvernloven § 28 annet ledd
c) årsgebyr for vann og avløp etter lov 16. mars 2012 nr. 12 om kommunale vass- og avløpsanlegg.
På eiendommen kan det være tinglyst erklæringer/avtaler som for eksempel rett til kommunen til å anlegge vann- og kloakkledninger inkl. reparasjon av disse, bestemmelser om bebyggelsen, gjerder, vei og adkomstrettigheter. Disse erklæringene/avtalene vil følge eiendommen ved salg, og kan ikke slettes. Vennligst ta kontakt med megler for nærmere spesifikasjon av disse.
Adresse og matrikkel
Hynivegen, 3726, Skien, Gnr. 2 bnr. 335 i Skien kommune
Oppdragsnummer
90-23-0035
Meglers vederlag
Fotografering/video (Kr.1 000)
Kommunale opplysninger (Kr.1 346)
Tinglysingsgebyr elektronisk (Kr.200)
Visninger pr. stk. (Kr.2 500)
Provisjon Kr.25 000)
Tilrettelegging (Kr.5 000)
Markedspakke (Kr.9 900)
Oppgjør (Kr.6 950)
Panterett med urådighet - Statens Kartverk (Kr.585)
Spørregebyr elektronisk grunnbok (Kr.172)
Vedlegg til salgsoppgave og kjøpekontrakt
Vedlagt i salgsoppgaven foreligger det reguleringsbestemmelser med kart. Alle interessenter oppfordres til å sette seg inn i fremlagte dokumenter før bud inngis. Ta gjerne kontakt med megler dersom du ønsker utlevert dine egne kopier av dokumentene.
Det gjøres oppmerksom på at Meglerhuset & Partners Telemark sine standard kjøpekontrakter blir benyttet i handelen, dersom det ikke avtales noe annet før handel har kommet i stand.
Behandling av personopplysninger
Det gjøres oppmerksom på at foretaket behandler personopplysninger og all behandling skjer iht. personvernregelverket. Meglerforetaket behandler kun personopplysninger som er nødvendig for å gjennomføre oppdraget. Det gjøres oppmerksom på at vi deler dine personopplysninger med offentlige myndigheter i den utstrekning det er nødvendig og med virksomheter som tilbyr tjenester for gjennomføring av oppdraget. For mer informasjon se personvernerklæring på www.partners.no.
Nyttige lenker
Meglerhuset Telemark As
Nærområdet
Annonseinformasjon
| FINN-kode | 299375878 |
|---|---|
| Sist endret | 27. okt. 2025 13:15 |
| Referanse | 90230035 |
Annonsene kan være mangelfulle i forhold til lovpålagt opplysningsplikt. Før bindende avtale inngås oppfordres interessenter til å innhente komplett informasjon fra meglerforetaket, selger eller utleier.






