Bildegalleri

Velkommen til Gjøkviika - en perle på Søndre Sandøy
Moderne og romslig hytte, nydelig belligende i Gjøkvika på Søndre Sandøy
- Omkostninger
- 197 240 kr
- Totalpris
- 7 647 240 kr
- Kommunale avg.
- 25 870 kr per år
- Formuesverdi
- 665 301 kr
Nøkkelinfo
- Beliggenhet
- Ved sjøen
- Boligtype
- Hytte
- Eieform
- Eier (Selveier)
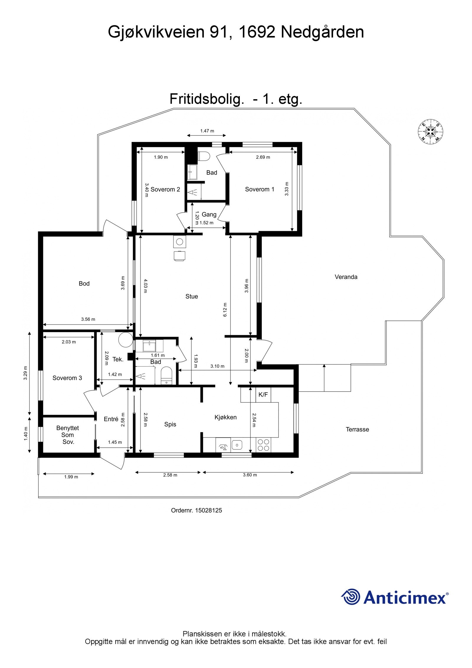
- Internt bruksareal
- 88 m² (BRA-i)
- Bruksareal
- 88 m²
- Balkong/Terrasse
- 105 m² (TBA)
- Tomteareal
- 2 620 m² (eiet)
- Byggeår
- 1960
- Soverom
- 4
- Rom
- 5
- Energimerking
- G - Gul
Fasiliteter
Visning
Husk å lese komplett salgsoppgave før visning. Bestill komplett, utskriftsvennlig salgsoppgave.
VisningspåmeldingOm boligen
Tilbygget og betydelig oppgradert hytteeiendom (2008) beliggende med praktfull utsikt på Søndre Sandøy. Hytta innholder bla 4 soverom, liten hems, 2 bad og store utearealer i form av overbygget veranda og terrasser/plattinger. Stor eiertomt med skjermet gressplen, svaberg, veranda, platting og Boulebane. Fra fergeleie i Gravningssund er det kun 10 minutters gangavstand (vei/sti). Den flotte stranda i Gjøkvika ligger rettt på nedsiden av eiendommen, resten av øya tilbyr diverse strender, Café Oline på Nedgården og et utstrakt sti/veinett. Mulighet for leie av båtplass i Nedgården.
Salgsoppgaven beskriver vesentlig og lovpålagt informasjon om eiendommen
Se komplett salgsoppgaveNyttige lenker
Nærområdet
STAVLUND AS
Annonseinformasjon
| FINN-kode | 301964391 |
|---|---|
| Sist endret | 16. mars 2026 03:15 |
| Referanse | 192230031 |
Annonsene kan være mangelfulle i forhold til lovpålagt opplysningsplikt. Før bindende avtale inngås oppfordres interessenter til å innhente komplett informasjon fra meglerforetaket, selger eller utleier.






































































