Bildegalleri

Velkommen til Odins gate 22 - Presentert av Joakim Steine v/Eiendomsmegler A!
Solgt
Haugesund - Flott, velholdt andelsleilighet - 3 soverom - Ingen dok.avgift!
Prisantydning1 990 000 kr
Nøkkelinfo
- Boligtype
- Rekkehus
- Eieform
- Andel
- Soverom
- 3
- Primærrom
- 78 m²
- Bruksareal
- 78 m²
- Byggeår
- 1953
- Rom
- 4
- Tomteareal
- 4 434 m² (eiet)
Om boligen
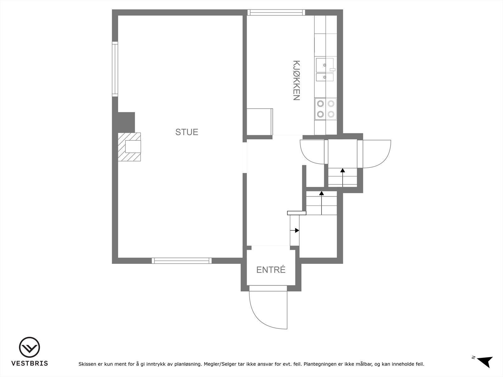
Velkommen til Odins gate 22, en flott, velholdt andelsleilighet innredet over to plan.
Boligens 2.etasje er vesentlig oppgradert i 2015.
Boligen er innredet over 2 plan og inneholder 1.etasje med gang, stue og kjøkken.
2.etasje med gang, bad og 3 stk soverom.
Det er i tillegg kjeller med bod på ca. 4 kvm, fellesarealer og felles vaskerom.
Boligens 2.etasje er vesentlig oppgradert i 2015.
Boligen er innredet over 2 plan og inneholder 1.etasje med gang, stue og kjøkken.
2.etasje med gang, bad og 3 stk soverom.
Det er i tillegg kjeller med bod på ca. 4 kvm, fellesarealer og felles vaskerom.
NB: Knappen for å vise hele beskrivelsen har kun en visuell effekt.
NB: Knappen for å vise hele beskrivelsen har kun en visuell effekt.
Salgsoppgaven beskriver vesentlig og lovpålagt informasjon om eiendommen
Se komplett salgsoppgaveNyttige lenker
Nærområdet
Eiendomsmegler A AS
Annonseinformasjon
| FINN-kode | 305717149 |
|---|---|
| Sist endret | 15. juni 2023 11:49 |
| Referanse | EMA1.23221 |
Annonsene kan være mangelfulle i forhold til lovpålagt opplysningsplikt. Før bindende avtale inngås oppfordres interessenter til å innhente komplett informasjon fra meglerforetaket, selger eller utleier.





























