Bildegalleri

Solgt
Øverbylia trinn 2
Bolig 19 - Enebolig i kjede
Prisantydning7 248 000 kr
Kort om prosjektet
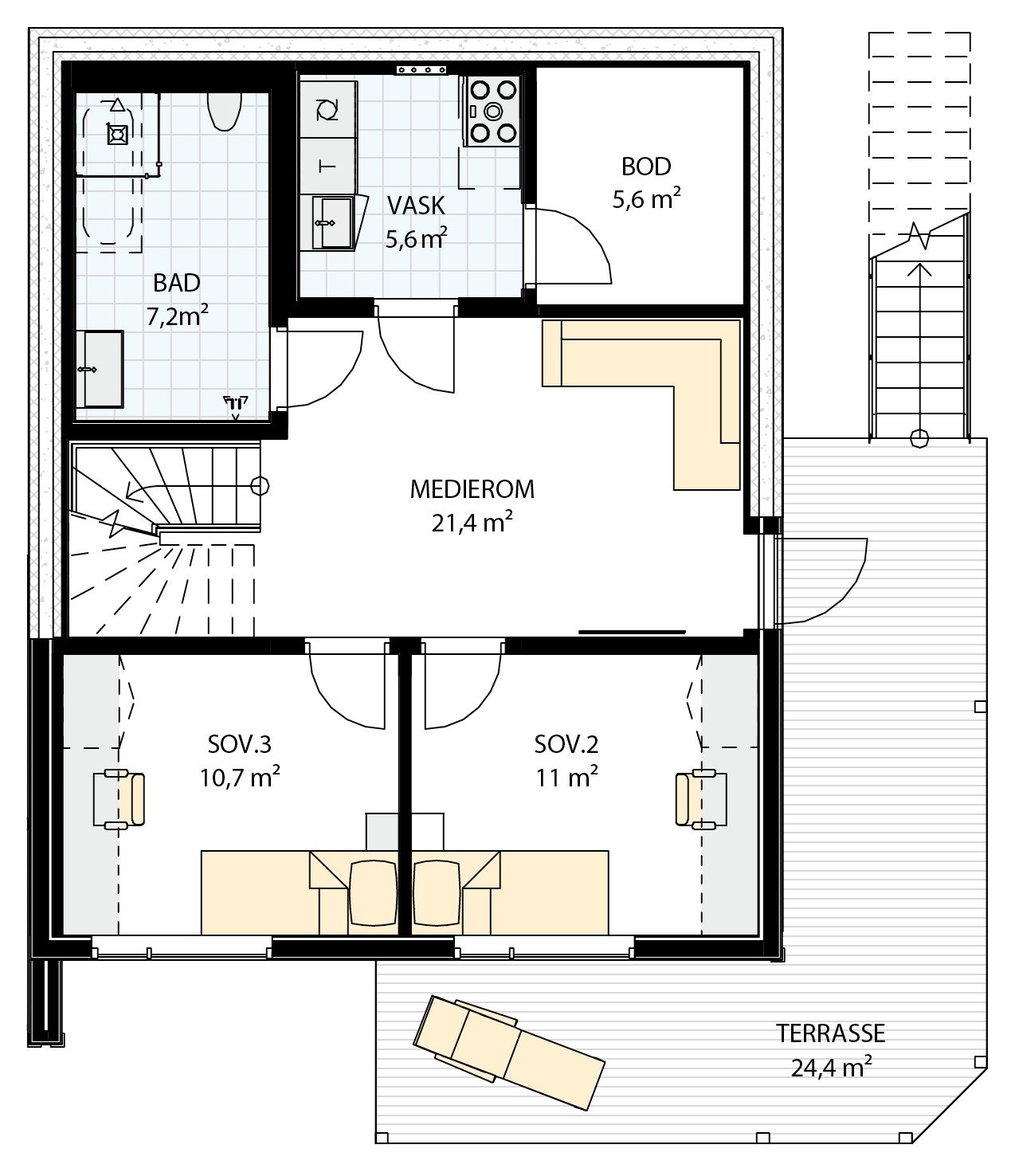
Øverbylia trinn2 vil bestå av 13 moderne og arealeffektive boliger. I dette trinnet finner du boliger med kvaliteter som dobbeltgarasje, inntil 4m takhøyde og store terrasser med veldig fin utsikt. Størrelser fra 110-181m2 BRA gjør at de passer både små og store familier.
Prosjektets status
Planlegging
Salget er igang
Salgsstart
Salget er igang
Byggestart
Byggestart oppgis ved salg
Overtakelse
Fra høsten 2025
Nøkkelinfo
- Boligtype
- Rekkehus
- Etasje
- 2
- Soverom
- 3
- Rom
- 4
- Primærrom
- 125 m²
- Bruksareal
- 138 m²
- Energimerking
- B - Rød
Fasiliteter
Balkong/Terrasse
Ingen gjenboere
Offentlig vann/kloakk
Utsikt
Barnevennlig
Garasje/P-plass
Parkett
Balansert ventilasjon
Lademulighet
Turterreng
Beskrivelse
NB: Knappen for å vise hele beskrivelsen har kun en visuell effekt.
NB: Knappen for å vise hele beskrivelsen har kun en visuell effekt.
Nyttige lenker
Nærområdet
OBOS Block Watne AS

Obos Block Watne AS
Utbygger
Annonsene kan være mangelfulle i forhold til lovpålagt opplysningsplikt. Før bindende avtale inngås oppfordres interessenter til å innhente komplett informasjon fra meglerforetaket, selger eller utleier.





