Bildegalleri

Velkommen til Jonsvannsveien 433L - en innbydende og romslig 3-romsleilighet beliggende i naturskjønne fredelige omgivelser på Jakobsli.
Innbydende og romslig 2-romsleilighet med vidstrakt utsikt | Parkering | TG1 på kjøkken | Ingen dok.avgift |IN-ordning
Nøkkelinfo
- Boligtype
- Leilighet
- Eieform
- Andel
- Soverom
- 1
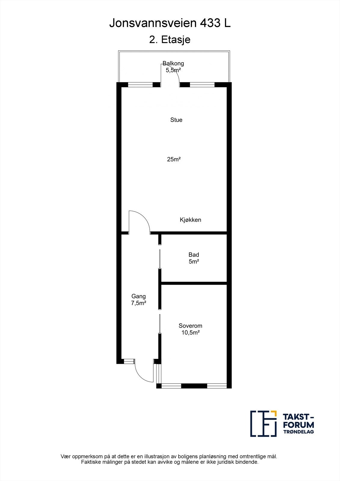
- Primærrom
- 50 m²
- Bruksareal
- 50 m²
- Etasje
- 2
- Byggeår
- 2004
- Energimerking
- D - Rød
- Rom
- 2
- Tomteareal
- 345 m² (eiet)
Fasiliteter
Om boligen
Kvaliteter verdt å merke seg:
- Kjøkken TG1
- Parkering på felles biloppstillingsplass
- Svært flott utsikt over Trondheimsfjorden
- God beliggenhet i 2. etasje, skjermet for innsyn
- TV, internett, kom. avgifter mm. inkl. i felleskostnadene
- Kort vei til Dragvoll, kollektivtransport og byen
- Ingen dokumentavgift eller forkjøpsrett
- IN-ordning
Ta kontakt på 412 11 927 for visning!
Salgsoppgaven beskriver vesentlig og lovpålagt informasjon om eiendommen
Se komplett salgsoppgaveNyttige lenker
Nærområdet
Heimdal Eiendomsmegling avd. Rosten
Prisstatistikk
Jonsvannsveien 433L
på annonsen
prisantydning per kvadratmeter
Prisfordeling
Pris per m² ligger 9 061 kr under snittet for leiligheter i Trondheim Øst.
Grafen viser antall leiligheter solgt i Trondheim Øst siste året fordelt på pris per m² - totalt 2 561 leiligheter
Antall boliger
Kvadratmeterpris tilsvarer prisantydning pluss fellesgjeld per kvadratmeter (p-rom eller BRA-i). Prisene i grafen er avrundet til nærmeste 1000 kr.
Annonseinformasjon
| FINN-kode | 327068419 |
|---|---|
| Sist endret | 31. juli 2024 08:50 |
| Referanse | 1-23-1841 |
Annonsene kan være mangelfulle i forhold til lovpålagt opplysningsplikt. Før bindende avtale inngås oppfordres interessenter til å innhente komplett informasjon fra meglerforetaket, selger eller utleier.





















