Bildegalleri

Bilde av tilsvarende bolig, avvik vil forekomme.
Moderne leiligheter i tremannsbolig i Bjørkeveien
Leiligheter i nyetablert boligfelt på Nye Fladstad, innflyttingsklar høsten 2024.
Prisantydning fra
3 450 000 kr
Prisantydning til
3 575 000 kr
Kort om prosjektet
Nye Fladstad Trinn 2 danner et oversiktlig og ryddig boligfelt. Her bygger vi eneboliger, tomannsboliger og tremannsboliger med gode og funksjonelle planløsninger - se boligvelger for ledige tomter (www.nyefladstad.no). Her får du muligheten til å realisere boligdrømmen!
Prosjektets status
Planlegging
Under bygging
Salgsstart
Umiddelbart
Byggestart
Under bygging
Overtakelse
Etter avtale
Nøkkelinfo
- Boligtype
- Leilighet
- Soverom
- 2
- Antall etasjer
- 1
- Bruksareal
- 68 m²
- Eieform
- Eier (Selveier)
- Energimerking
- B - Rød
Enheter i prosjektet
Sorter etter
| Enhet | BRA | Soverom | Totalpris | |
|---|---|---|---|---|
| 12A | 68 m² | 2 | 3 470 500 kr | |
| 12C | 68 m² | 2 | 3 595 500 kr |
Visning
Ta kontakt for å avtale visning.Beskrivelse
Nye boliger på noen av Rakkestads beste tomter
Dette er et rolig område, men allikevel sentrumsnært med kort vei til lekeplass, skøytebane, lysløype, skiløyper, svømmehall, treningssenter, kino og bibliotek m.m. Det er kort vei til barnehage, småskole og ungdomsskole. Kommunen har et mangfold av lag og foreninger med mange ulike fritidsaktiviteter for barn og unge. Området er omkranset av store skoger og flere fiskevann, noe som gir gode rekreasjonsmuligheter både sommer og vinter. I nærområdet er det også et godt utvalg spisesteder og kafeer. I Rakkestad er det 100% barnehagedekning.
I Rakkestad sentrum finner du det du trenger i dagliglivet. Her legges det også opp til flere trivelige arrangementer i løpet av året. Rakkestad Handelsstand arrangerer markedsdager; Julemarked, Hagemarkedet Grønn Gate, Påskelørdag og mye mer.
Rakkestad ligger sentralt i det gamle Østfold. Landlig og rolig, men likevel med kort avstand til de andre Østfold-byene, og en kort kjøretur til Sverige.
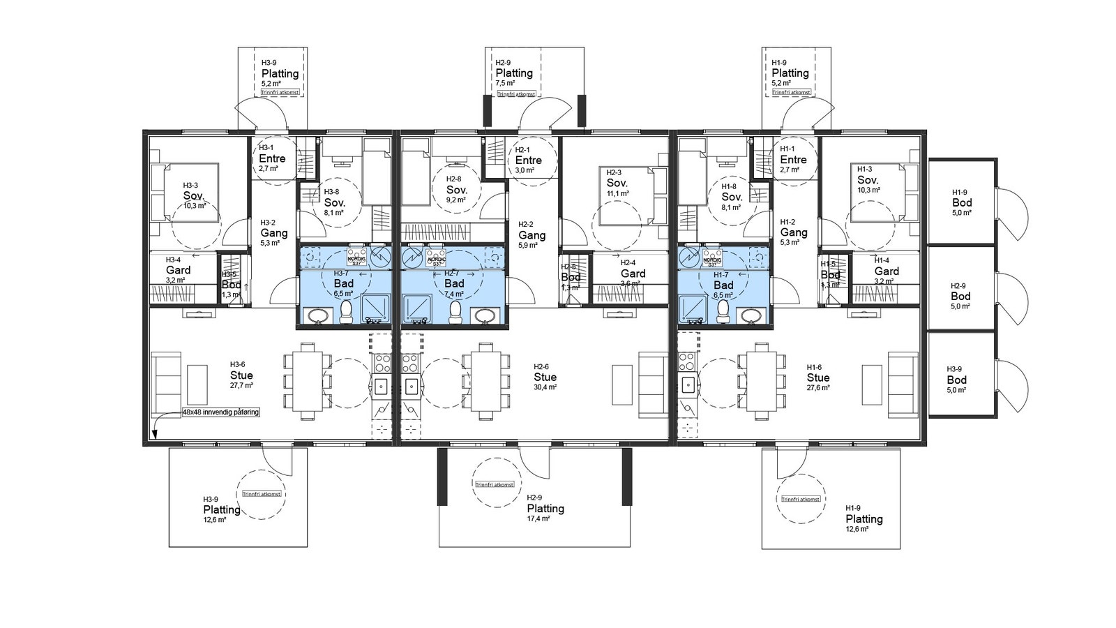
Tremannsbolig med muligheter for carport
En praktisk tremannsbolig med god planløsning for full utnyttelse av det innvendige arealet. Boligen ønsker deg velkommen med et koselig inngangsparti med platting og overbygg. I gangen vil du bli møtt av lyset fra vinduene på stua midt imot. Den åpne stue- og kjøkkenløsninga gir godt med plass for både spisebord og sofakrok. Med verandadør mellom stue og kjøkken får du en enkel trinnfri adkomst til en lun og koselig platting. Som tilvalg kan det bygges en frittstående carport. Pergola ikke er inkludert, men kan leveres mot et pristillegg.
Utfyllende informasjon fås ved kontakt med selger.
Enkel generell leveransebeskrivelse
Hver enkelt bolig har egen tilpasset leveransebeskrivelse. Ta kontakt med selger for tilpasset leveranse disse boligene.
GRUNN-, MUR- OG BETONGARBEIDER
GRUNNARBEIDER
Tomtetekniske arbeider utføres av leverandør. Gårdsplass, parkeringsarealer og gangveg inn til den enkelte hovedinngang, leveres singlet. Naturlige felles hagearealer leveres tilsådd. Det leveres ikke noen form for beplantning.
BETONGARBEIDER
Det leveres støpt plate på mark som utføres iht. NBI byggdetaljer. Det leveres gulv på grunnen med ringmur. Radonmembran legges. Konstruksjonen frostsikres iht. NBI-detaljer / tabeller og gulvet isoleres forskriftsmessig. Det legges gulvvarmesløyfer for vann i bad, stue og kjøkken nedstøpt i betonggulvet. Gulv i våtrom leveres med lokalt fall mot sluk og nedsenk i dusjnisje.
PIPE
Pipe leveres ikke. Kan leveres som tilvalg.
YTTERVEGGER
Yttervegger av tre i bolig rom består av: Utvendig beiset trepanel som vist på fasadetegning. Utlekting, vindtetting GU-gips, 148 mm justert bindingsverk, 150 mm mineralull, 1 lag diffusjonstett plastfolie, innlekting 48mm, 50 mineralull og 11mm ferdigmalte MDF veggplater.
INNVENDIGE VEGGER
Til vegger mellom bolig rom leveres 73/98mm justert bindingsverk, 50 mm mineralull og 11mm ferdigmalte MDF veggplater av typen Skygge/ skrå, farge Bomull
På bad/vaskerom leveres fliser med format 25x50cm forskriftsmessig opparbeidet med membranløsning. Gulv leveres med membran og gulvfliser 30*30, valgfri farge 5 typer.
TAKVERK
Takverk er dimensjonert for tung taktekking. Det leveres sort dobbeltkrom betongtakstein.
Til underside for tak i inngangsparti og takutspring ved raft og i gavler leveres materialer beiset. Her må det påregnes etterbehandling med beis av kjøper.
Plastbelagt stål som toppbeslag på vindskier.
VINDUER
Vinduer i boligen leveres med 3-lags gassfylte energiglass. Vinduene leveres malt fra fabrikk, lik farge ute/inne. Mørk grå farge.
DØRER
Hovedinngangsdør leveres malt, med glass. Dørtype Gilje Herakeles eller lignende. Leveres med tre hengsel. Dørkarm er malt. Mørk grå/hvit farge.
Balkong/verandadør leveres med trepunkt hengsel, med 3-lags gassfylte superenergiglass.
Innvendige dører er formpressede 3 speil, Style 03 hvitmalt 0502-Y. De leveres med låskasse, vrider og malt karm.
KJØKKEN-, BAD- OG GARDEROBEINNREDNING
Kjøkkeninnredning leveres, type hvit utførelse Venezia fra Aubo eller tilsvarende og steinmønstret laminat med rett kant. Oppvaskbenken har nedfellingsbeslag av rustfritt stål og plass for oppvaskmaskin iht. egen kjøkkentegning. Det leveres ikke hvitevarer. Kjøkkenvifte fra Flexit.
Det leveres 80 cm baderoms-innredning med speil. Leveres med hvite slette dører og hvit servant iht. egen baderomstegning.
Det leveres ingen form for vaskeromsinnredning, skyvedørsgarderober, garderoberskap , møbler og senger.
FORINGER og LISTVERK
Tak og karmlister er i hvitmalt kvalitet farge Bomull NCS nr S0502Y. Utforinger til dører og vinduer leveres ferdig hvitmalt fra fabrikk. Listverk ettermales ikke. Listverk til innerdører, ytterdør og vinduer gjæres. Listverk spikres og det vil bli synlige spikerhull. Listverk fuges ikke.
Taklister 21x34 og karmlist 12x58. Fotlist i hvitmalt furu 45x15.
BRANNVERNUTSTYR
I leveransen inngår røykvarsler seriekoblet i henhold til krav og 1 stk brannslukningsapparat.
BLIKKENSLAGER- OG VENTILASJONSMATERIELL
TAKRENNER
Takrenner, rennekroker, nødvendig tilbehør og nedløp leveres i lakkert/plastbelagt stål. Bordtaksbeslag i sort lakkert/plastbelagt stål.
VENTILASJONSANLEGG
Balansert ventilasjon med varmegjenvinner, avtrekkshette på kjøkken via ventilasjonsaggregat alternativt utkast gjennom yttervegg. Ventilasjonsaggregat plassert i bod/entre. Noe kanalkasser eller nedsenk av tak kan forekomme.
Inntak og utluft til/fra ventilasjonsanlegg er på yttervegg eller tak.
OPPVARMING
Oppvarming basert på vannbåren gulvvarme tilknyttet elkolbe. Legges i gang, bad, stue/ kjøkken.
TØMMER- OG SNEKKERARBEID
Komplett tømrer- og snekkerarbeid samt montering av øvrig utstyr nevnt i hovedpunktene B og C.
SANITÆRE INSTALLASJONER
GENERELT
Sanitære installasjoner leveres komplett inkl. bunnledninger og stikkledninger.
Sanitærinstallasjoner utføres av godkjent rørlegger i henhold til krav i Teknisk forskrift til plan- og bygningsloven, og lokale vedtekter.
UTSTYR
Utvendig: 1stk frostsikker tappekran med slangekopling leveres.
Kjøkken: 1 stk ettgreps blandebatteri på oppvaskbenk m/kran for oppvaskmaskin. Det leveres avløpsstuss for oppvaskmaskin i benk.
Bad: Dusj på vegg med ett greps blandebatteri. Servant i baderomsinnredning 80cm med ettgreps blandebatteri. Gulvsluk i dusj leveres. Kran og avløpstrakt for vaskemaskin. Klosett gulvmontert med sete og lokk. Dusjhjørne 90x90 cm herdet klart glass.
Standard: Porselen/Sanitærutstyret leveres i hvit farge. Ettgreps blandebatteri og tappekraner er forkrommet.
Bereder 200 l varmtvannsbereder.
Teknisk utstyr er plassert i bad.
ELEKTRISKE INSTALLASJONER
GENERELT
Elektrisk anlegg leveres etter NEK 400-2010. Det legges skjult elektrisk anlegg, med brytere og kontakter i hvit utførelse.
Det leveres lamper ferdig montert i alle rom bortsett fra stue som leveres med stikk ved tak som har bryter. Det monteres utebelysning.
TV/BREDBÅND
Det er lagt tomrør fem til sikringsskap og videre til et tv uttak, mulighet for tilkobling til Telenor.
Inntrekk inne i bolig, tilknytningskostnader og abonnement besørges/bekostes av boligeier.
MALING/GULVBELEGG/FLISER
UTVENDIG
Vinduer og balkongdører og utforinger leveres malt fra fabrikk, både utvendig og innvendig.
Overflatebehandlingen skjer på treverk uten sparkling slik at ujevnheter og spikerhull i treverket er synlig. Evt. Skader i overflate utbedres av leverandøren ved flekking.
Utvendig kledning leveres beiset fra fabrikk. Kapp ender/ synlig trevirke vil være ubehandlet. Trykkimpregnert virke leveres ubehandlet. Det må påregnes maling av boligen, egeninnsats ila kort tid etter overtagelse, eventuelt bestilles som tilvalg fra Bjørnstad Bygg.
INNVENDIG
Gulv på bad leveres med fliser inkl. forskriftsmessig opparbeidelse med membran iht. teknisk forskrift.
På vegger i bad/vaskerom leveres fliser med format 25x50cm forskriftsmessig opparbeidet med membranløsning. Gulv leveres med membran og gulvfliser 30*30, 10x10 i dusjnisje. valgfri farge 5 typer.
Det leveres Berry Alloc 1-stavs laminat eller lignende.
Vegger i alle tørre rom leveres med ferdigmalte MDF veggplater av typen skygge grå.
Hvitmalte gipstak.
Listverk leveres malt fra fabrikk i farge hvit. Spikerhull vil bli synlig. Evt. Sparkling av disse og overmaling kan utføres selv eller bestilles gjennom maler. Karmer til innerdører leveres hvitmalt.
Noe sprekking ifm. tørk må påregnes, det gjelder overgangslister tak/ vegg, gerikter, plateskjøter, hjørner. Det gir ingen reklamasjonsrett, så lenge tørken er naturlig og innenfor god håndverksmessig standard.
TOMT
AREAL
Areal i henhold til målebrev – foreløpig ikke utstedt. Avvik på areal vil forekomme etter oppmåling fra kommune. Gatelys, strøm-og teleskap vil forekomme på tomt.
Husnummerskilt monteres på egnet sted.
RENGJØRING
Byggrengjøring før overlevering. Vi gjør oppmerksom på at kjøper selv må påregne og utføre vanlig rengjøring, støvtørking og vindusvask før innflytting i tillegg til leverandørens byggrengjøring.
CARPORT
Tilvalg mot pristillegg.
SPORTSBOD
Sportsbod ute på 5m2 med enkel hvitmalt dør.
FINANSIERING
Bolig selges i hht bustadoppføringslova, 10% innbetales ved kontraktsinngåelse og rest ved overtagelse.
Generell leveransebeskrivelse for boligene på Nye Fladstad trinn 2
Hver enkelt bolig har egen tilpasset leveransebeskrivelse. Ta kontakt med selger for tilpasset leveranse disse boligene.
OMKOSTNINGER
Tomtepris * 2,5%+ 585 (tinglysingsgebyr skjøte) + 585 (tinglysningsgebyr pr panterett)
FORBEHOLD
Illustrasjoner og tegninger i prospekt og markedsmateriell kan avvike fra endelig løsning. Det kan oppleves avvik på tomteareal, hensynssoner, høydeplassering av bygninger og terreng ved endelig overlevering. Ikke signifikante avvik gir ingen rett til kompensasjon. Forbehold om skrivefeil.
Nyttige lenker
Nærområdet

Norgeshus Bjørnstad Bygg
Annonsene kan være mangelfulle i forhold til lovpålagt opplysningsplikt. Før bindende avtale inngås oppfordres interessenter til å innhente komplett informasjon fra meglerforetaket, selger eller utleier.






