Bildegalleri

Velkommen til Nyquistveien 30C - seniorleilighet for deg over 55 år!
Attraktiv og romslig 2-roms endeleilighet med solrik terrasse på 16m². Seniorbolig (+55) i 1.etasje med god beliggenhet.
Nøkkelinfo
- Boligtype
- Leilighet
- Eieform
- Andel
- Soverom
- 1
- Internt bruksareal
- 62 m² (BRA-i)
- Bruksareal
- 64 m²
- Eksternt bruksareal
- 2 m² (BRA-e)
- Balkong/Terrasse
- 16 m² (TBA)
- Etasje
- 1
- Byggeår
- 1984
- Energimerking
- G - Rød
- Rom
- 2
- Tomteareal
- 4 673 m²
Fasiliteter
Om boligen
Velkommen til Nyquistveien 30C!
Boligen ligger i et veletablert, stille og attraktivt boligområde på Nordseter, like ved Nordseter gård. Meget kort vei til offentlig kommunikasjon og dagligvareforretning.
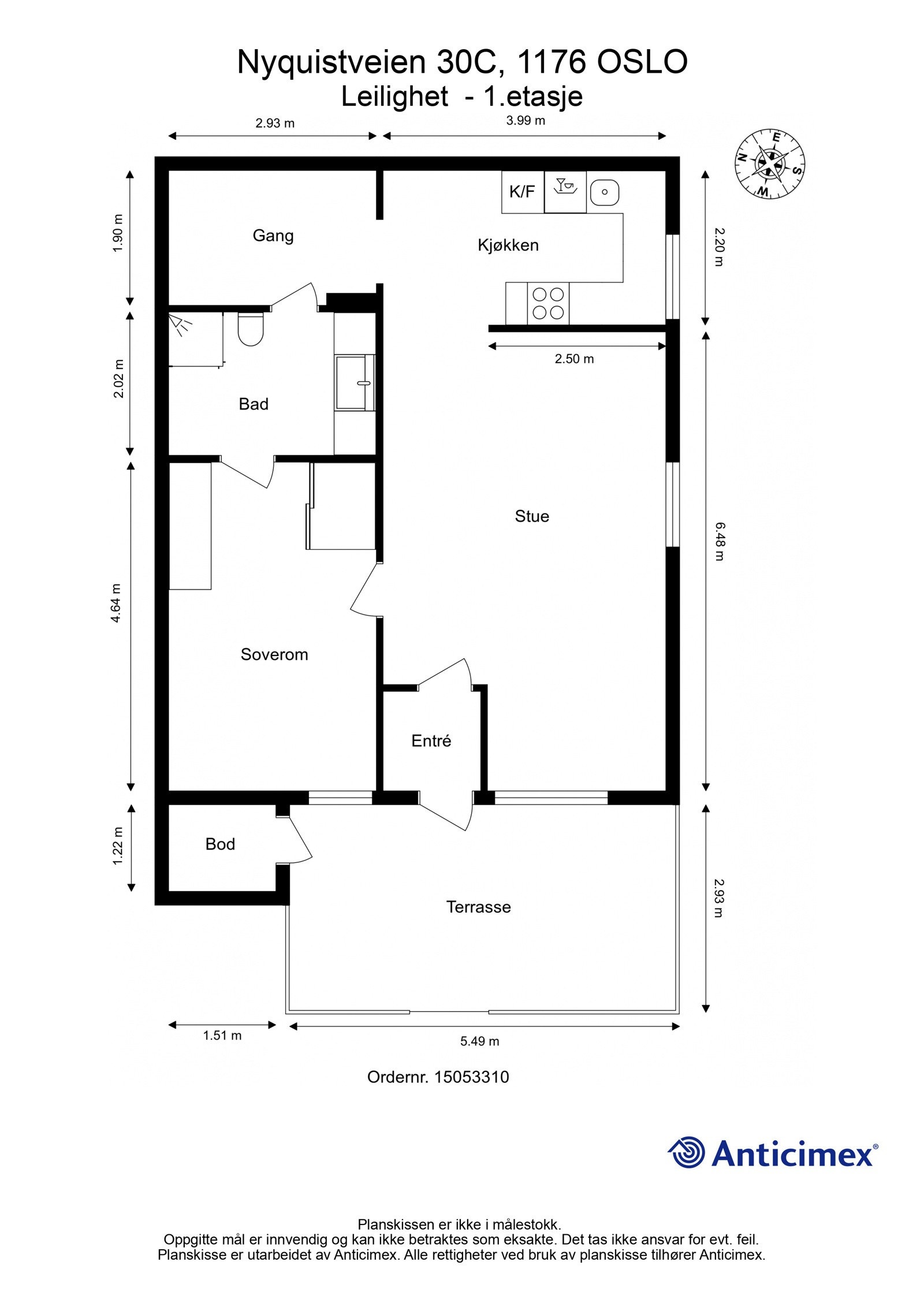
Lys og trivelig endeleilighet med god planløsning i byggets 1. etasje. Trappefri adkomst. Stor vestvendt og solrik terrasse på 16 m² med adkomst til liten hageflekk med gressplen, og prydbusker.
Velholdt leilighet med parkett i alle rom, bortsett fra baderom som har fliser. Pent og velholdt kjøkken med innredning i eik. Flislagt baderom med elektrisk gulvvarme og innfelte downlights i himling. Pipeløp i stuen med mulighet for ildsted.
Leiligheten inneholder: vindfang, baderom, soverom, omkledningsrom/kontor, kjøkken med spisekrok, samt spisestue/stue. Boligen disponerer 2 boder.
Salgsoppgaven beskriver vesentlig og lovpålagt informasjon om eiendommen
Se komplett salgsoppgaveNyttige lenker
Nærområdet
OBOS eiendomsmeglere - Tveita
Prisstatistikk
Nyquistveien 30C
på annonsen
prisantydning per kvadratmeter
Prisfordeling
Pris per m² ligger 14 044 kr under snittet for leiligheter i Nordstrand.
Grafen viser antall leiligheter solgt i Nordstrand siste året fordelt på pris per m² - totalt 212 leiligheter
Antall boliger
Kvadratmeterpris tilsvarer prisantydning pluss fellesgjeld per kvadratmeter (p-rom eller BRA-i). Prisene i grafen er avrundet til nærmeste 1000 kr.
Annonseinformasjon
| FINN-kode | 345689700 |
|---|---|
| Sist endret | 09. mai 2024 10:39 |
| Referanse | 705240027 |
Annonsene kan være mangelfulle i forhold til lovpålagt opplysningsplikt. Før bindende avtale inngås oppfordres interessenter til å innhente komplett informasjon fra meglerforetaket, selger eller utleier.































