Bildegalleri

Her er det bare å nyte late dager.
Inaktiv
Siktesøya - Brevik
Tidløs sommerlykke med egen brygge, gjestehus, gode solforhold og vakker sjøutsikt.
Prisantydning4 650 000 kr
- Omkostninger
- 117 250 kr
- Totalpris
- 4 767 250 kr
- Kommunale avg.
- 11 724 kr per år
Nøkkelinfo
- Beliggenhet
- Ved sjøen
- Boligtype
- Hytte
- Eieform
- Eier (Selveier)
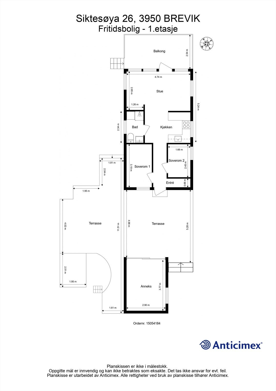
- Internt bruksareal
- 41 m² (BRA-i)
- Bruksareal
- 63 m²
- Eksternt bruksareal
- 22 m² (BRA-e)
- Balkong/Terrasse
- 70 m² (TBA)
- Tomteareal
- 859 m² (eiet)
- Byggeår
- 1960
- Soverom
- 2
- Rom
- 3
- Overtakelse
- Etter nærmere avtale.
Fasiliteter
Barnevennlig
Utsikt
Bademulighet
Fiskemulighet
Innlagt strøm
Offentlig vann/kloakk
Turterreng
Visning
For å delta på visning, ber vi om at du melder deg på. Da sikrer vi at du får nødvendig informasjon og at det er satt av tilstrekkelig med tid. Kontakt megler dersom annet tidspunkt ønskes. Husk å lese salgsoppgaven før visningen, så du stiller forberedt. Oppmøte med felles båttransport fra Salen båthavn mellom Stathelle og Langesund.
Ønsker du kun å bli holdt orientert, kan du fra eiendommens hjemmeside få varsel om solgtpris, eller kontakte megler.
VisningspåmeldingOm boligen
Hytta med funkispreg er malt i en sortnyanse, og ble opprinnelig bygget i 1960. Den er betydelig oppgradert gjennom årene, med nytt anneks i 2009 som siste utvidelse. I 2016 ble det lagt inn vann og avløp, hvor badet samtidig ble oppgradert for å møte nåtidens krav. Hytta har to soverom, begge med plass til dobbeltseng. I tillegg er det eget gjestehus (ikke omsøkt). Overbygget terrasse mot sjøen og stor usjenert terrasse som binder bebyggelsen sammen. Hytta ligger fint til på en kolle med skogen bak, kun et steinkast fra sjøen og med særdeles gode solforhold fra tidlig morgen til sen kveld. Hytta har adkomst ned til egen brygge via en liten sti. Ved brygga og sjøen er det svaberg som gir den gode sommerfølelsen.
NB: Knappen for å vise hele beskrivelsen har kun en visuell effekt.
NB: Knappen for å vise hele beskrivelsen har kun en visuell effekt.
Salgsoppgaven beskriver vesentlig og lovpålagt informasjon om eiendommen
Se komplett salgsoppgaveNyttige lenker
Nærområdet
Krogsveen Bamble og Porsgrunn
Verdien av en god megler.
Annonseinformasjon
| FINN-kode | 345829726 |
|---|---|
| Sist endret | 25. aug. 2025 06:26 |
| Referanse | KR28.2424 |
Annonsene kan være mangelfulle i forhold til lovpålagt opplysningsplikt. Før bindende avtale inngås oppfordres interessenter til å innhente komplett informasjon fra meglerforetaket, selger eller utleier.




















































