Bildegalleri

Solgt
Fagerlia
Ny flott vestvendt toppleilighet med storslagen utsikt og gode solforhold. Parkering, 3 soverom og 2 balkonger! Fagerlia
Prisantydning9 990 000 kr
Nøkkelinfo
- Boligtype
- Leilighet
- Eieform
- Eier (Selveier)
- Soverom
- 3
- Internt bruksareal
- 156 m² (BRA-i)
- Bruksareal
- 156 m²
- Eksternt bruksareal
- 5 m² (BRA-e)
- Balkong/Terrasse
- 29 m² (TBA)
- Etasje
- 5
- Byggeår
- 2023
- Energimerking
- B - Mørkegrønn
- Tomteareal
- 6 950 m² (eiet)
Fasiliteter
Barnevennlig
Balkong/Terrasse
Garasje/P-plass
Heis
Offentlig vann/kloakk
Parkett
Turterreng
Utsikt
Vaktmester-/vektertjeneste
Sentralt
Bredbåndstilknytning
Moderne
Rolig
Lademulighet
Balansert ventilasjon
Om boligen
Denne flotte toppleiligheten ligger i Fagerlia - et av byens nye boligprosjekt som du bør se nærmere på. I Fagerlia bor du i sentrum, men med en landlig opplevelse. Om du skal møte dine venner som bor langs elvepromenaden, vil dere bruke like kort tid frem til restauranten dere skal besøke, eller kinoforestillingen der skal se.
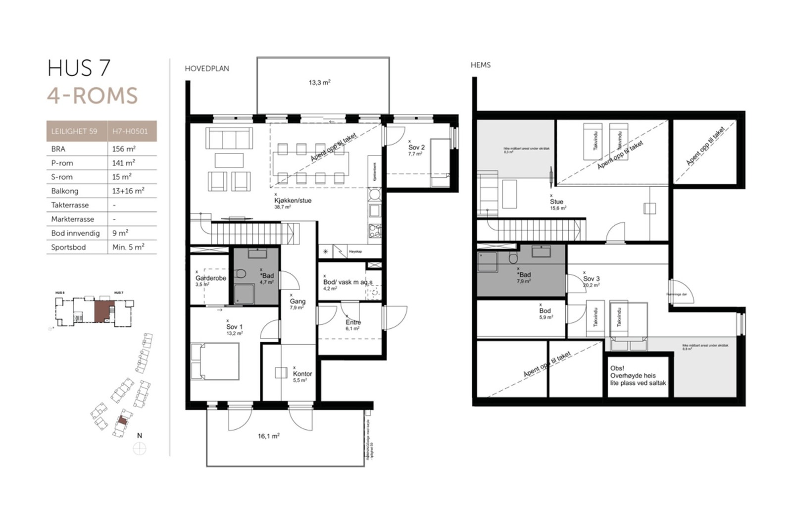
Dette er en stor og luftig leilighet over to plan på hele 156 kvm i Fagerlia, like ved Fredrikstad sentrum. Den ligger i 5 og 6. etasje med fine uteplasser mot øst og vest. Leiligheten holder god standard og god komfort med vannbåren varme og balansert ventilasjon.
Leiligheten er fordelt over to plan:
5 etasje: Åpen stue- og kjøkkenløsning med god takhøyde og utgang til balkong, to soverom, kontor, walk-in-closet, bad, bod/vaskerom og entre.
6. etasje: Stue, soverom tilknyttet eget bad og walk-in-closet.
I tillegg disponerer leiligheten en romslig bod i byggets 1. etasje i eget bodrom.
Dette er en fin leilighet for deg som ønsker en enklere hverdag.
Dette er en stor og luftig leilighet over to plan på hele 156 kvm i Fagerlia, like ved Fredrikstad sentrum. Den ligger i 5 og 6. etasje med fine uteplasser mot øst og vest. Leiligheten holder god standard og god komfort med vannbåren varme og balansert ventilasjon.
Leiligheten er fordelt over to plan:
5 etasje: Åpen stue- og kjøkkenløsning med god takhøyde og utgang til balkong, to soverom, kontor, walk-in-closet, bad, bod/vaskerom og entre.
6. etasje: Stue, soverom tilknyttet eget bad og walk-in-closet.
I tillegg disponerer leiligheten en romslig bod i byggets 1. etasje i eget bodrom.
Dette er en fin leilighet for deg som ønsker en enklere hverdag.
NB: Knappen for å vise hele beskrivelsen har kun en visuell effekt.
NB: Knappen for å vise hele beskrivelsen har kun en visuell effekt.
Salgsoppgaven beskriver vesentlig og lovpålagt informasjon om eiendommen
Se komplett salgsoppgaveNærområdet
STAVLUND AS
Vi kan også selge din bolig
Prisstatistikk
Fagerliveien 11
12 290 klikk
på annonsen
64 038 kr
prisantydning per kvadratmeter
Prisfordeling
Pris per m² ligger 13 038 kr over snittet for leiligheter i Fredrikstad.
Grafen viser antall leiligheter solgt i Fredrikstad siste året fordelt på pris per m² - totalt 737 leiligheter
Antall boliger
Kvadratmeterpris tilsvarer prisantydning pluss fellesgjeld per kvadratmeter (p-rom eller BRA-i). Prisene i grafen er avrundet til nærmeste 1000 kr.
Annonseinformasjon
| FINN-kode | 347175852 |
|---|---|
| Sist endret | 12. sep. 2025 08:44 |
| Referanse | 192240101 |
Annonsene kan være mangelfulle i forhold til lovpålagt opplysningsplikt. Før bindende avtale inngås oppfordres interessenter til å innhente komplett informasjon fra meglerforetaket, selger eller utleier.



















































