Bildegalleri

Velkommen til Øståsvegen 174!
PÅKOSTET & MODERNISERT ENEBOLIG i Øvre Vang! Muligheter for utleie! Rolige omgivelser & fine turmuligheter året rundt.
Nøkkelinfo
- Boligtype
- Enebolig
- Eieform
- Eier (Selveier)
- Soverom
- 2
- Internt bruksareal
- 194 m² (BRA-i)
- Bruksareal
- 194 m²
- Eksternt bruksareal
- 34 m² (BRA-e)
- Balkong/Terrasse
- 47 m² (TBA)
- Byggeår
- 1981
- Energimerking
- D - Gul
- Tomteareal
- 760 m² (eiet)
Fasiliteter
Om boligen
Velkommen til denne moderniserte eneboligen i Øståsvegen 174!
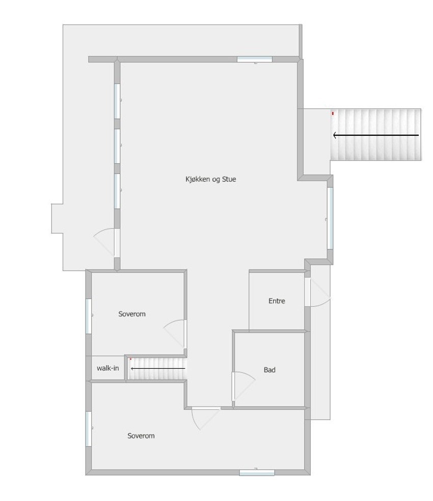
En innholdsrik enebolig beliggende i et landlig boligområde i Øvre Vang. Boligen er over 2 plan og inneholder følgende i 1.etasje: Entrè lys og hyggelig stue, romslig kjøkken med kjøkkenøy hvor du har plass til krakker, bad/wc samt 2 soverom. Kjeller består av stue/kjøkken, vaskerom, bad, og 2 rom som er benyttet som soverom samt 1 bod. Rom i kjeller er ikke omsøkt, dette er derfor ikke godkjente rom ifht. dagens bruk.
- Garasje på 34kvm.
Dette ønsker vi å trekke frem vedrørende nærområdet:
- Det er fine turområder i nærmiljøet.
- Kort gangavstand til buss.
- 2 km til nærbutikk, Lunden Barneskole samt barnehage.
- Ca. 13 km til Hamar sentrum.
- Ca. 5 km til Gåsbu skisenter.
- Gang- og sykkelsti forbi eiendommen.
Velkommen til en hyggelig visning!
Salgsoppgaven beskriver vesentlig og lovpålagt informasjon om eiendommen
Se komplett salgsoppgaveNyttige lenker
Nærområdet
Partners Eiendomsmegling
Prisstatistikk
Øståsvegen 174
på annonsen
prisantydning per kvadratmeter
Prisfordeling
Pris per m² ligger 1 732 kr under snittet for eneboliger i Hamar.
Grafen viser antall eneboliger solgt i Hamar siste året fordelt på pris per m² - totalt 274 eneboliger
Antall boliger
Kvadratmeterpris tilsvarer prisantydning pluss fellesgjeld per kvadratmeter (p-rom eller BRA-i). Prisene i grafen er avrundet til nærmeste 1000 kr.
Annonseinformasjon
| FINN-kode | 349743545 |
|---|---|
| Sist endret | 19. apr. 2025 15:49 |
| Referanse | 95240022 |
Annonsene kan være mangelfulle i forhold til lovpålagt opplysningsplikt. Før bindende avtale inngås oppfordres interessenter til å innhente komplett informasjon fra meglerforetaket, selger eller utleier.









































