Bildegalleri

Velkommen til Mehaugtrøa 15 - Kontakt megler på 918 50 709 / morten.kjelsberg@em1.no dersom det ønskes privatvisning.
SÆRDELES INNBYDENDE OG VELHOLDT ENEBOLIG MED NYDELIG UTSIKT | Garasje - Utleie - Barnevennlig
Nøkkelinfo
- Boligtype
- Enebolig
- Eieform
- Eier (Selveier)
- Soverom
- 3
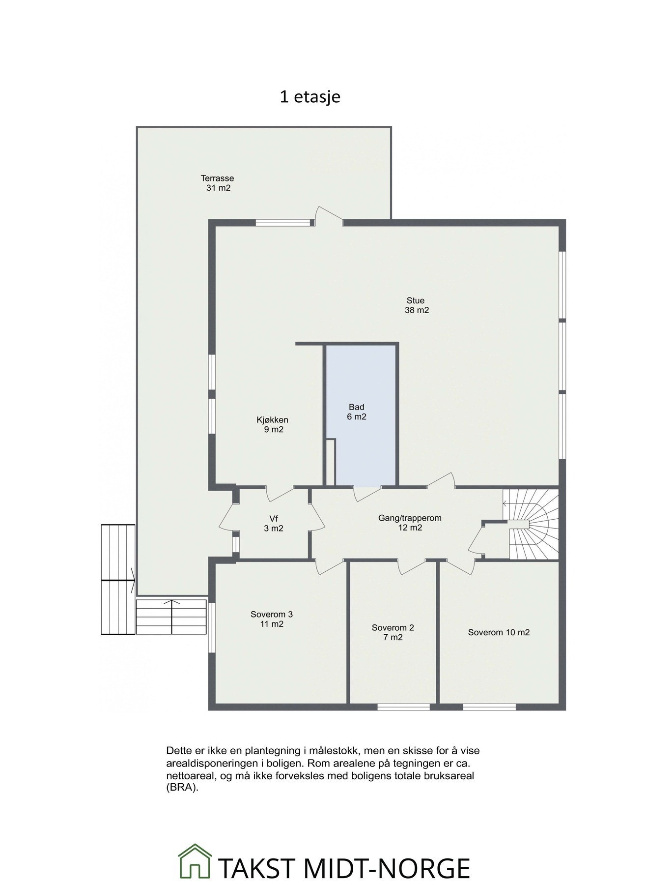
- Internt bruksareal
- 194 m² (BRA-i)
- Bruksareal
- 194 m²
- Eksternt bruksareal
- 22 m² (BRA-e)
- Balkong/Terrasse
- 31 m² (TBA)
- Byggeår
- 1981
- Energimerking
- E - Gul
- Rom
- 6
- Tomteareal
- 727 m² (eiet)
Fasiliteter
Om boligen
Høydepunkter:
- Gode solforhold fra morgen til kveld.
- Nydelig utsikt mot Fonnfjellet og Meråker.
- Garasje.
- Varmepumpe og vedovn.
- Utleie i sokkel med egen inngang.
- Mye lagringsplass.
- Sørvestvendt terrasse på hele 31m².
- Eiendommen ligger meget fint til i en fredelig blindvei uten gjennomgangstrafikk.
- Sentrumsnær beliggenhet med umiddelbar nærhet til alle nødvendige fasiliteter.
Velkommen på en trivelig visning. Husk påmelding i forkant!
Salgsoppgaven beskriver vesentlig og lovpålagt informasjon om eiendommen
Se komplett salgsoppgaveNyttige lenker
Nærområdet
EiendomsMegler 1 Stjørdal
Prisstatistikk
Mehaugtrøa 15
på annonsen
prisantydning per kvadratmeter
Prisfordeling
Pris per m² ligger 3 896 kr over snittet for eneboliger i Meråker.
Grafen viser antall eneboliger solgt i Meråker siste året fordelt på pris per m² - totalt 27 eneboliger
Antall boliger
Kvadratmeterpris tilsvarer prisantydning pluss fellesgjeld per kvadratmeter (p-rom eller BRA-i). Prisene i grafen er avrundet til nærmeste 1000 kr.
Annonseinformasjon
| FINN-kode | 350892636 |
|---|---|
| Sist endret | 23. nov. 2025 09:28 |
| Referanse | 50240094 |
Annonsene kan være mangelfulle i forhold til lovpålagt opplysningsplikt. Før bindende avtale inngås oppfordres interessenter til å innhente komplett informasjon fra meglerforetaket, selger eller utleier.





























