Bildegalleri

EIE eiendomsmegling ved Daniel Bruce har gleden av å presentere Stadsing Dahls gate 8 - En Lys og tiltalende 2-roms toppleilighet på Rosenborg!
Innbydende 2-roms toppleilighet med fantastisk beliggenhet | Nær sentrum, NTNU & BI | Innglasset balkong | Vedovn
Nøkkelinfo
- Boligtype
- Leilighet
- Eieform
- Andel
- Soverom
- 1
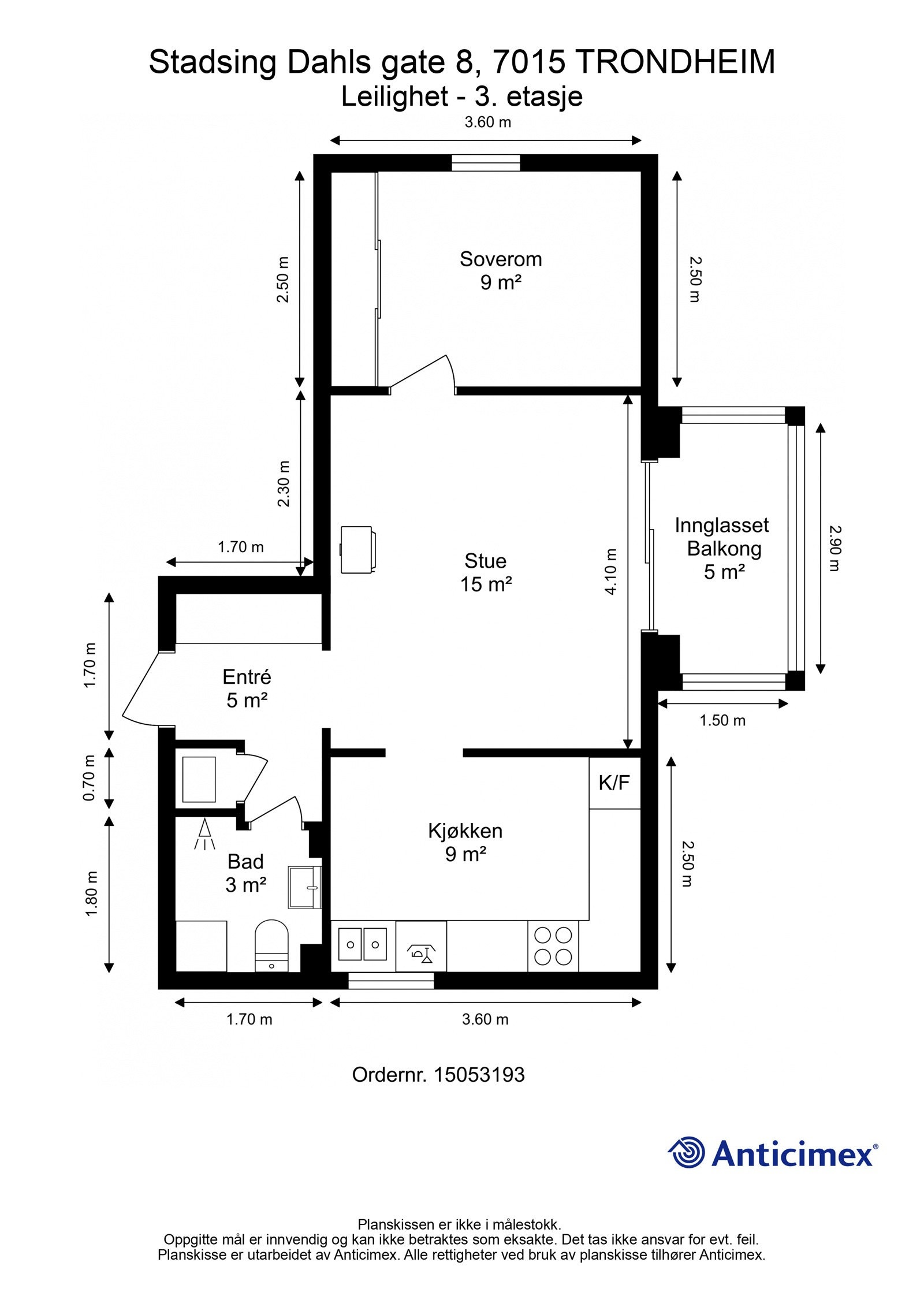
- Internt bruksareal
- 43 m² (BRA-i)
- Bruksareal
- 59 m²
- Eksternt bruksareal
- 11 m² (BRA-e)
- Innglasset balkong
- 5 m² (BRA-b)
- Etasje
- 3
- Byggeår
- 1948
- Energimerking
- G - Oransje
- Rom
- 2
- Tomt
- Eiet
Fasiliteter
Om boligen
EIE eiendomsmegling ved Daniel Bruce har gleden av å presentere Stadsing Dahls gate 8! En lys og innbydende 2-roms på sentrumsnære Rosenborg/Møllenberg.
Glimrende beliggenhet i den øvre delen av populære Møllenberg, med gangavstand til Solsiden og Trondheim sentrum med alle deres tilbud og fasiliteter - her har man "alt" innen få minutters gange, som blant annet butikker og Solsiden Kjøpesenter. Fra leiligheten er det også gang- og sykkelavstand til byens studiesteder.
Kvalilteter verdt å merke seg:
- Innglasset sørvendt balkong gode sol- og utsiktsforhold.
- Peis.
- Romslig soverom på 9 m².
- Vedfyring på stuen.
- Lav fellesgjeld og ingen dok.avgift.
- Mulig å leie P-plass. ca 200 kr pr mnd.
- Gode lademuligheter for el-bil.
- Ypperlig beliggenhet med nærhet til både NTNU og flere studiesteder.
- Godt med bodplass.
Salgsoppgaven beskriver vesentlig og lovpålagt informasjon om eiendommen
Se komplett salgsoppgaveNærområdet
EIE eiendomsmegling Trondheim sentrum
Prisstatistikk
Stadsing Dahls gate 8
på annonsen
prisantydning per kvadratmeter
Prisfordeling
Pris per m² ligger 554 kr over snittet for leiligheter i Trondheim Sentrum.
Grafen viser antall leiligheter solgt i Trondheim Sentrum siste året fordelt på pris per m² - totalt 851 leiligheter
Antall boliger
Kvadratmeterpris tilsvarer prisantydning pluss fellesgjeld per kvadratmeter (p-rom eller BRA-i). Prisene i grafen er avrundet til nærmeste 1000 kr.
Annonseinformasjon
| FINN-kode | 352164895 |
|---|---|
| Sist endret | 24. mai 2024 11:34 |
| Referanse | 133240046 |
Annonsene kan være mangelfulle i forhold til lovpålagt opplysningsplikt. Før bindende avtale inngås oppfordres interessenter til å innhente komplett informasjon fra meglerforetaket, selger eller utleier.






















