Bildegalleri

Frida Henriksveen v/Lokalmeglern Partners har gleden av å presentere Vatnarvegen 520!
Solgt
Vatnar
Koselig hytte med innlagt strøm. Fin uteplass med gapahuk, utekjøkken og veranda. Solrikt og usjenert!
Prisantydning1 200 000 kr
- Omkostninger
- 51 230 kr
- Totalpris
- 1 251 230 kr
- Kommunale avg.
- 5 693 kr per år
- Eiendomsskatt
- 2 858 kr per år
Nøkkelinfo
- Boligtype
- Hytte
- Eieform
- Eier (Selveier)
- Internt bruksareal
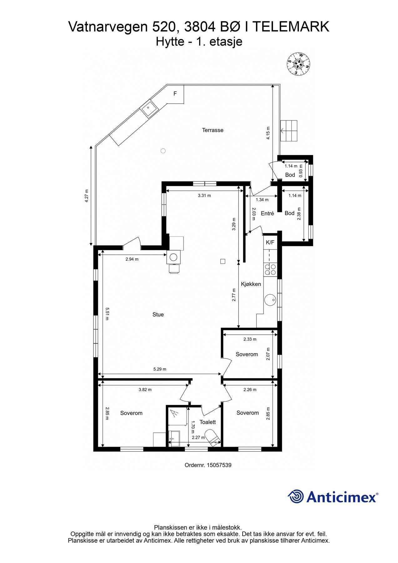
- 85 m² (BRA-i)
- Bruksareal
- 95 m²
- Eksternt bruksareal
- 10 m² (BRA-e)
- Balkong/Terrasse
- 37 m² (TBA)
- Tomteareal
- 1 085 m² (eiet)
- Byggeår
- 1964
- Soverom
- 3
- Rom
- 4
- Sengeplasser
- 8
- Energimerking
- G - Rød
Fasiliteter
Balkong/Terrasse
Garasje/P-plass
Fiskemulighet
Peis/Ildsted
Turterreng
Bilvei frem
Innlagt strøm
Om boligen
Koselig hytte beliggende i naturskjønne omgivelser på heia mellom Bø og Notodden. Med flotte turmuligheter i umiddelbar nærhet, ligger alt til rette for opplevelsesrike turer i naturen.
Hytta inneholder gang, bod, bad, 3 soverom, stue og åpen kjøkkenløsning. Innvendig er det furugulv. På vegger og i himling er det malt/beiset panel. Hytten har innlagt strøm og sommervann. Spillvann blir ledet ut i terreng.
Eiet tomt på 1085kvm bestående av naturtomt, veranda, gapahuk og fine uteplasser. Det er bilvei fram til hytta og den blir brøytet og strødd på vinter etter avtale.
Hytta ligger ca 215 moh og ca 10 km fra Bø sentrum - retning Notodden. Rundt hytta er det idyllisk skogsterreng med kort avstand til badekulper og fiskemuligheter.
Hytta inneholder gang, bod, bad, 3 soverom, stue og åpen kjøkkenløsning. Innvendig er det furugulv. På vegger og i himling er det malt/beiset panel. Hytten har innlagt strøm og sommervann. Spillvann blir ledet ut i terreng.
Eiet tomt på 1085kvm bestående av naturtomt, veranda, gapahuk og fine uteplasser. Det er bilvei fram til hytta og den blir brøytet og strødd på vinter etter avtale.
Hytta ligger ca 215 moh og ca 10 km fra Bø sentrum - retning Notodden. Rundt hytta er det idyllisk skogsterreng med kort avstand til badekulper og fiskemuligheter.
NB: Knappen for å vise hele beskrivelsen har kun en visuell effekt.
NB: Knappen for å vise hele beskrivelsen har kun en visuell effekt.
Salgsoppgaven beskriver vesentlig og lovpålagt informasjon om eiendommen
Se komplett salgsoppgaveNyttige lenker
Nærområdet
Lokalmegleren & Partners
Verdien av lokalkunnskap
Annonseinformasjon
| FINN-kode | 355893601 |
|---|---|
| Sist endret | 08. jan. 2026 10:47 |
| Referanse | 48240163 |
Annonsene kan være mangelfulle i forhold til lovpålagt opplysningsplikt. Før bindende avtale inngås oppfordres interessenter til å innhente komplett informasjon fra meglerforetaket, selger eller utleier.








































