Bildegalleri

Velkommen til Frydens gate 5C! En flott og romslig 2-roms med nydelig balkong på 5 kvm.
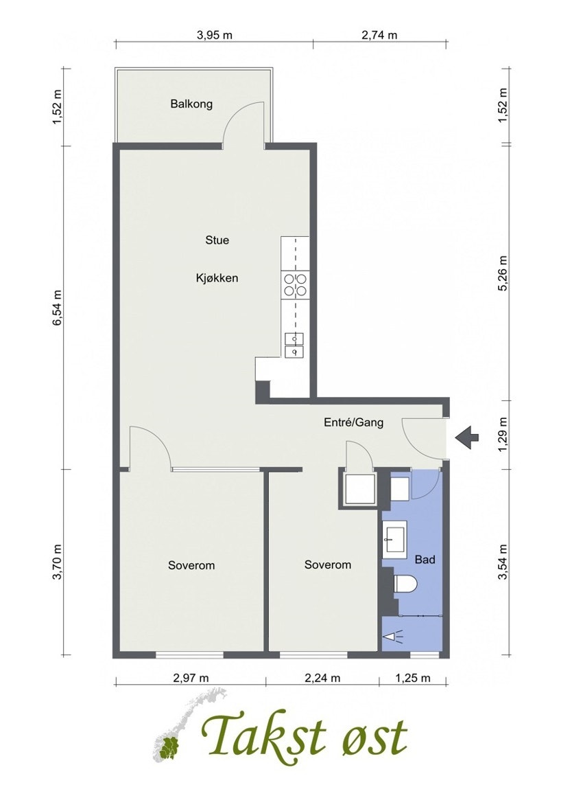
Lekker og gjennomgående 2(3)-roms med balkong - Ettermiddag og kveldssol - Separat kjøkken - Varmtvann/fyring inkl.
Nøkkelinfo
- Boligtype
- Leilighet
- Eieform
- Andel
- Soverom
- 1
- Internt bruksareal
- 54 m² (BRA-i)
- Bruksareal
- 62 m²
- Eksternt bruksareal
- 8 m² (BRA-e)
- Balkong/Terrasse
- 5 m² (TBA)
- Etasje
- 2
- Byggeår
- 1939
- Energimerking
- B - Mørkegrønn
- Tomteareal
- 3 396 m² (eiet)
Fasiliteter
Om boligen
Lys, lekker og gjennomgående 2-roms i høy 1.etg. (oppleves som 2.etg).
Leiligheten har en perfekt beliggenhet for deg som ønsker nærhet til alt, samtidig som du bor rolig og tilbaketrukket til i et populært område like ved Carl Berner.
- God takhøyde
- Gode solforhold på ettermiddag- og kveld.
- Lekker smijernsvegg
- Mulighet for 2 soverom
- Bad 2013
- Separat kjøkken 2015
- Flott 1-stavs parkett fra 2020
- Gode oppbevaringsmuligheter i to boder
- Oppvarming, varmtvann og bredbånd inkl. i felleskostnadene
- IN-ordning, mulighet for å nedbetale del av fellesgjeld og få felleskostnader på
ca. 4 834,- pr. mnd. - Lave kjøpsomkostninger, ingen dokumentavgift
- Et av hovedstadens beste tilbud på kollektivtransport like ved
- Parkområder rett utenfor blokken
- Hyggelig bakgård med grillplass
Rett og slett en leilighet som må oppleves!
Salgsoppgaven beskriver vesentlig og lovpålagt informasjon om eiendommen
Se komplett salgsoppgaveNærområdet
EIE eiendomsmegling Sinsen & Carl Berner
Prisstatistikk
Frydens gate 5C
på annonsen
prisantydning per kvadratmeter
Prisfordeling
Pris per m² ligger 15 667 kr under snittet for leiligheter i Grünerløkka - Sofienberg.
Grafen viser antall leiligheter solgt i Grünerløkka - Sofienberg siste året fordelt på pris per m² - totalt 2 431 leiligheter
Antall boliger
Kvadratmeterpris tilsvarer prisantydning pluss fellesgjeld per kvadratmeter (p-rom eller BRA-i). Prisene i grafen er avrundet til nærmeste 1000 kr.
Annonseinformasjon
| FINN-kode | 357325297 |
|---|---|
| Sist endret | 17. aug. 2024 12:54 |
| Referanse | 92240125 |
Annonsene kan være mangelfulle i forhold til lovpålagt opplysningsplikt. Før bindende avtale inngås oppfordres interessenter til å innhente komplett informasjon fra meglerforetaket, selger eller utleier.



































