Bildegalleri

Velkommen til Sandvikaveien 171 - Fritidsbolig med idyllisk beliggenhet mellom Poseholmen og Hellekilen på Kråkerøy.
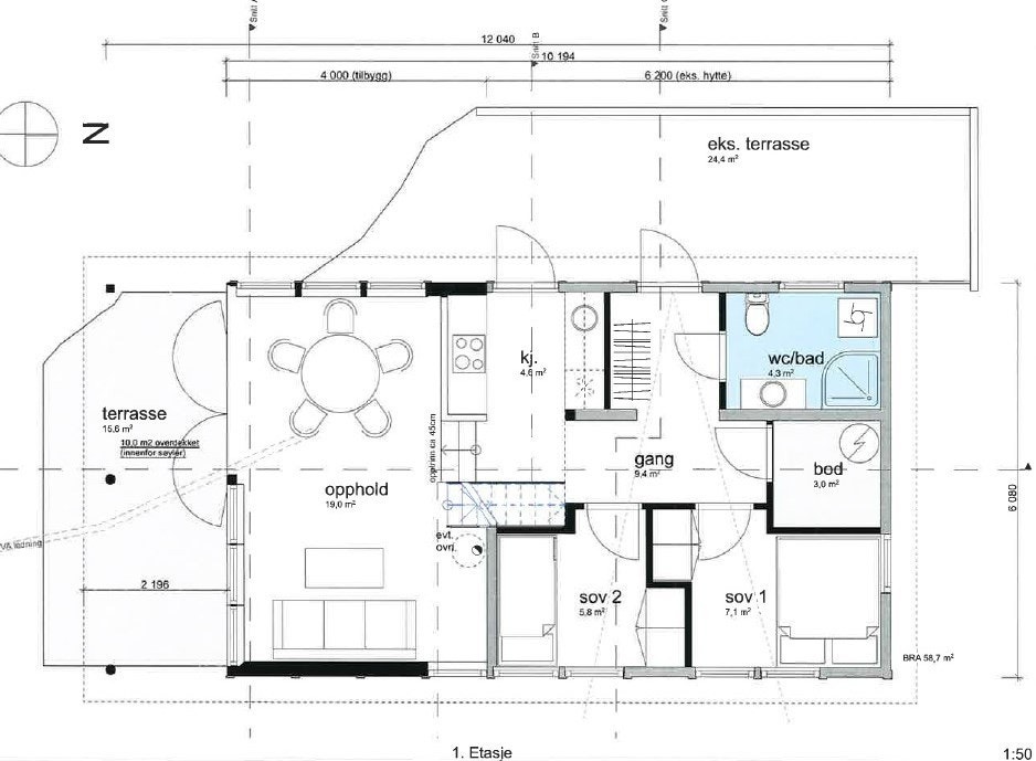
Hytte med restaureringsbehov - Fin utsikt - Godkjente byggetegninger - Solrikt - Festet tomt
- Omkostninger
- 53 840 kr
- Totalpris
- 2 153 840 kr
- Kommunale avg.
- 7 624 kr per år
Nøkkelinfo
- Beliggenhet
- Ved sjøen
- Boligtype
- Hytte
- Eieform
- Eier (Selveier)
- Internt bruksareal
- 46 m² (BRA-i)
- Bruksareal
- 47 m²
- Eksternt bruksareal
- 1 m² (BRA-e)
- Balkong/Terrasse
- 39 m² (TBA)
- Tomteareal
- 1 842 m² (festet)
- Festeavgift
- 28 640 kr
- Byggeår
- 1948
- Soverom
- 1
- Rom
- 2
- Energimerking
- G - Rød
- Overtakelse
- Etter nærmere avtale med selger. Vær vennlig å angi ønsket overtagelsesdato i vedlagte budskjema.
Fasiliteter
Om boligen
-Solrike uteplasser
-Naturtomt
-Fine turområder i umiddelbar nærhet.
-Godkjente tegninger for ombygging av hytte
-15 min gange fra parkering
-Tomtefeste - festeavgift: Kr 28.640,-
Salgsoppgaven beskriver vesentlig og lovpålagt informasjon om eiendommen
Se komplett salgsoppgaveNyttige lenker
Nærområdet
EiendomsMegler 1 Fredrikstad
Prisstatistikk
Sandvikaveien 171
på annonsen
prisantydning per kvadratmeter
Prisfordeling
Pris per m² ligger 28 348 kr under snittet for hytter i Fredrikstad.
Grafen viser antall hytter solgt i Fredrikstad siste året fordelt på pris per m² - totalt 64 hytter
Antall boliger
Kvadratmeterpris tilsvarer prisantydning pluss fellesgjeld per kvadratmeter (p-rom eller BRA-i). Prisene i grafen er avrundet til nærmeste 1000 kr.
Annonseinformasjon
| FINN-kode | 357938363 |
|---|---|
| Sist endret | 07. juli 2025 16:44 |
| Referanse | 5340240106 |
Annonsene kan være mangelfulle i forhold til lovpålagt opplysningsplikt. Før bindende avtale inngås oppfordres interessenter til å innhente komplett informasjon fra meglerforetaket, selger eller utleier.





























