Bildegalleri

CARCES - Ny leilighet med terrasse og parkering
CARCES / CARCES, VarNøkkelinfo
- Beliggenhet
- På fjellet
- Boligtype
- Leilighet
- Eieform
- Eier (Selveier)
- Soverom
- 2
- Primærrom
- 66 m²
- P-plasser
- 1
Fasiliteter
Visning
Ta kontakt for å avtale visning.Om eiendommen
Adkomst/Tomteforhold
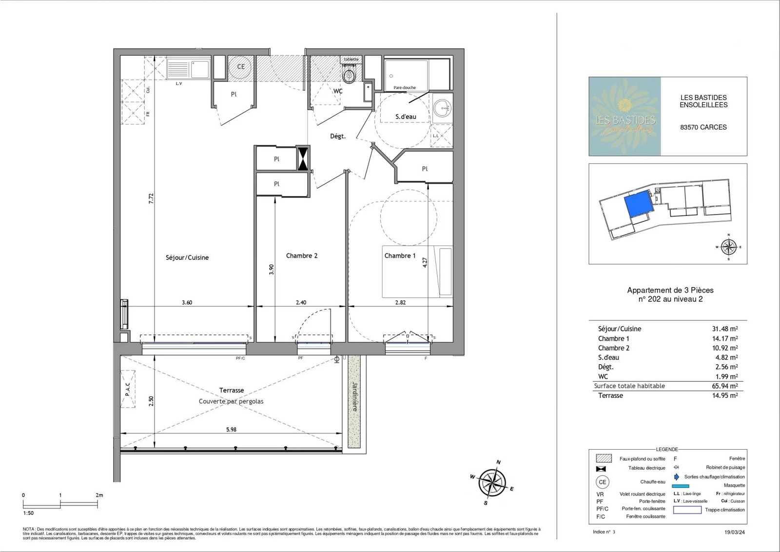
Ny leilighet med terrasse og parkering - Carcès
I hjertet av Provence Verte, i Carcès, kan du oppdage dette nybygget med 11 luksusleiligheter, fra T2 til T4, med terrasse og parkering.
Denne 66 m² store T4-leiligheten med 15 m² terrasse har en entré med skap, en 31 m² stor stue med åpen kjøkkenløsning som vender ut mot den 15 m² store terrassen med uforstyrret utsikt over landskapet, to soverom med skap, et dusjrom og et toalett.
Leiligheten har klimaanlegg.
Leiligheten selges med 2 parkeringsplasser i kjelleren.
Ikke nøl med å kontakte vår agent for ytterligere informasjon. Vi vil med glede gi deg mer informasjon om dette prosjektet og fremdriften i byggingen.
Levering: 2. kvartal 2026.
Condominium med 11 leiligheter.
Fra T2 til T4, fra € 198 000.
Referanse: 84441694
Ønsker du å selge eller kjøpe bolig i Frankrike, eller har du funnet en bolig på nettet og ønsker bistand fra skandinavisktalende megler?
Ta kontakt med oss. Vi bistår både med kjøp og salg. Om du har funnet en bolig på nettet som virker interessant, send oss gjerne linken og vi hjelper deg også med det!
Vi har vår egen store portefølje av eiendommer, men i Frankrike samarbeider alle med hverandre. Vi kan derfor hjelpe deg med boliger som ligger hos våre konkurrenter. Du trenger derfor ikke å henvende deg til flere meglere.
Ved ønske om kjøp, finner vi drømmeboligen for deg.
Har du en bolig i Frankrike som du ønsker å selge, kan vi som autorisert fransk megler bistår med dette.
Om Wretman Estate:
Vi er det største skandinaviske eiendomsmeglerfirmaet på den franske rivieraen. Wretman Estate hjelper kunder med å kjøpe og selge eiendom. For deg som vil kjøpe eiendom tilbyr vi et skreddersydd eiendomssøk med fokus på dine ønsker og behov, uten at dette koster deg noe! Når du finner ditt drømmehjem, hjelper vi deg med prisforhandlinger for å sørge for at du gjør et godt kjøp. For oss er hver kjøper en potensiell fremtidig selger, så det er viktig for oss at våre kunder kjøper til riktig pris og er fornøyd med vår innsats. Vi skiller oss fra andre meglerfirmaer ved at vi følger med gjennom hele den komplekse kjøps-/salgsprosessen slik som notarmøter, abonnementer m.m. uten at dette koster deg noe ekstra. Vi gir råd og hjelp på veien også etter at ditt kjøp er avsluttet. En bolighandel er sjelden avsluttet når overtakelsen har funnet sted. For oss er en bolighandel på den franske rivieraen så mye mer enn å gjøre en handel.
Om å kjøpe eiendom i Frankrike:
Vær oppmerksom på at kartplasseringen i boligannonsene sjelden er helt korrekt i Frankrike, eksakte adresser utgis normalt ikke. Disse får du først ved visning. Opplysningene om eiendommen er basert på selgers opplysninger og ellers den informasjon som er tilgjengelig for megler. Det tas derfor forbehold om informasjonen er korrekt i annonsen. Når du skal kjøpe bolig i Frankrike, er det notaren som sitter med den endelige informasjonen. Korrekte opplysninger vil være tilgjengelig i god tid før du er bundet til et eventuelt kjøp. Omkostningene ved et eiendomskjøp i Frankrike er ca 7,5% av kjøpesum og 2 - 3% for nybygg. Dette inkluderer notaromkostninger og tinglysningsavgifter. Wretman Estate følger franske lover og regler og tar ingen ekstra provisjon fra kjøper. Provisjonen er inkludert i kjøps-/salgssummen og avtales mellom selger og megler. Denne provisjonen deles på de involverte meglerne. Vi kan derfor også søke eiendom utenfor vår egen salgsportefølje.
Wretman Estate er mer enn en megler i det sydlige Frankrike!
Ta kontakt med selger for komplett informasjon
Nærområdet

Wretman Estate & Consulting
Annonseinformasjon
| FINN-kode | 358576370 |
|---|---|
| Sist endret | 24. juni 2024 12:44 |
| Referanse | 84441694 |
Annonsene kan være mangelfulle i forhold til lovpålagt opplysningsplikt. Før bindende avtale inngås oppfordres interessenter til å innhente komplett informasjon fra meglerforetaket, selger eller utleier.







