Bildegalleri

Velkommen til Anna Mogaards gate 7 - En lekker, nybygd 4-roms leilighet over to plan midt i hjertet av Stjørdal.
Kjøpmannens Hage - AVH.L.
En lekker & nybygd 4-roms leilighet over to plan - parkering i p kjeller - ligger i hjertet av Stjørdal - heistilgang
Prosjektets status
Planlegging
2021
Salgsstart
2024
Byggestart
2024
Overtakelse
2024
Nøkkelinfo
- Boligtype
- Leilighet
- Etasje
- 2
- Soverom
- 3
- Rom
- 4
- Primærrom
- 108 m²
- Bruksareal
- 116 m²
Fasiliteter
Beskrivelse
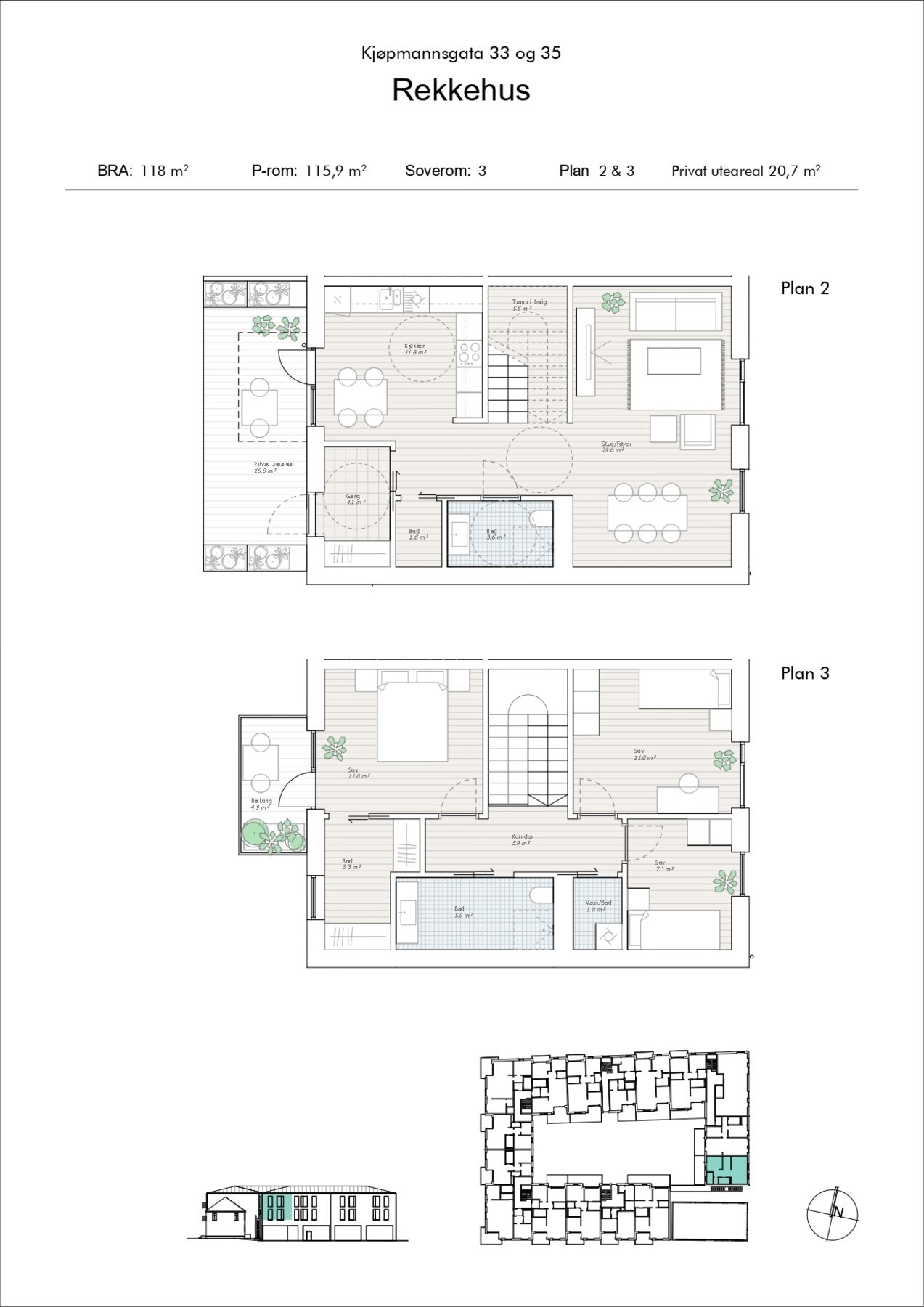
Dette er leiligheten for deg som ønsker en sentral og moderne leilighet i sentrum med alt fasiliteter i umiddelbar nærhet. Leiligheten er nylig ferdigstilt og har en veldig fin beliggenhet i byggets 2 og 3 plan, god utsikt og skjermet for innsyn. Her er noen av leilighetens kvaliteter:
- Private uteoppholdsareal på 20 kvm i 2 og 3 etasje
- Pluss felles takterrasse
- God planløsning - 3 soverom - 2 bad
- Stilrent kjøkken - integrerte hvitevarer
- Parkering for bil og sykkel i p-kjeller, mulighet for elbillading
- Privat takhage med gode solforhold og drivhus
- Moderne fargetoner og slette overflater. Flislagt baderom
- Store vindusflater som gir rikelig med lysinnslipp
- Fjernvarme, vannbåren oppvarming
- Nærbutikk i 1. etasje
- Solide fasade materialer - gir lave vedlikeholdskostnader
Innhold
BESKRIVELSE PR. ETASJE:
- 2.etg: Entre, bad og stue/kjøkken inkl. trapp.
- 3.etg: Gang inkl. trapp, bad, vaskerom og 3 soverom.
BESKRIVELSE ROM (P-ROM/S-ROM):
- P-ROM: 108 kvm.
- S-ROM: 8 kvm.
STANDARD FOR AREALOPPMÅLING
Arealoppmåling er foretatt av takstmann.
Arealmålingene måles etter bransjestandarden "Takstbransjens retningslinjer ved arealmåling av boliger". Retningslinjene har NS 3940:2012 som utgangspunkt, men inneholder presiseringer for arealbegreper og definisjoner i forbindelse med arealmåling ved omsetning og/eller verdisetting av boenheter. Rom defineres etter bruken av rommet på befaringstidspunktet, selv om bruken kan være i strid med tidligere eller gjeldende byggeforskrifter. Da det ikke foreligger en spesifikk definisjon av hva som er primære rom (P- ROM) og sekundære rom (S- ROM), vil benevnelsen av enkelte rom fastsettes etter skjønn.
"Takstbransjens retningslinjer for arealmåling av boliger" utgis av Informasjonsselskapet Verdi og er også tilgjengelig på www.nitotakst.no
Parkeringsforhold
Leiligheten har en parkeringsplass i felles garasjeanlegg. Det er mulighet for elbillading. Hver beboer må selv betale for eget forbruk.
Radon
Det er ikke krav til radonmåling på denne boligen.
Faste løpende utgifter
Kommunale avgifter
Kommunale avgifter pr. år kr 0,-
Kommunale avgifter er inkludert i fellesutgifter.
Vei, vann og avløp
Inkludert i felleskostnader.
Ligningsverdi (formuesverdi)
Primær formuesverdi kr 0,-
Sekundær formuesverdi kr 0,-
Skattemessig formuesverdi blir fastsatt av Skatteetaten etter ferdigstillelse av boligen.
Skatteetaten beregner boligverdi (beregnet markedsverdi for bolig) basert på SSBs statistiske opplysninger om omsatte boliger. I beregningen tas det hensyn til boligens beliggenhet, areal, byggeår og type bolig. Boligens boligverdi er lik boligens areal multiplisert med kvadratmeterpris basert på statistikk over omsatte boliger. Formuesverdien er en gitt prosentandel av denne boligverdien. Formuesverdien av primærboliger settes normalt til 25 prosent av boligverdien og 90 prosent for sekundærboliger.
Nyttige lenker
Nærområdet
Nylander &Partners, Stjørdal
Annonseinformasjon
| FINN-kode | 360033345 |
|---|---|
| Sist endret | 08. aug. 2025 12:55 |
| Referanse | NY83.2337 |
Annonsene kan være mangelfulle i forhold til lovpålagt opplysningsplikt. Før bindende avtale inngås oppfordres interessenter til å innhente komplett informasjon fra meglerforetaket, selger eller utleier.






























