Bildegalleri
Viser eiendommens omtrentlige grense, avvik kan forekomme
Inaktiv
Skap ditt eget hjem på Ormåsen – stor endetomt med mange muligheter
Prisantydning2 100 000 kr
- Totalpris
- 2 152 500 kr
- Omkostninger
- 52 500 kr
Nøkkelinfo
Fasiliteter
Bredbåndstilknytning
Offentlig vann/kloakk
Turterreng
Visning
Ta kontakt for å avtale visning.Beliggenhet
Velkommen til Hjortetråkket. Som navnet tilsier er vi her ikke langt fra marka med mulighet for fantastiske naturopplevelser. Tomten grenser mot friområde på den ene siden, og i umiddelbar nærhet ligger helårs turmuligheter med flott skogsterreng på sommeren og oppkjørte lysløyper på vinteren. Tomten ligger i et barnevennlig område med korte og trygge avstander til barnehage og skole på Ormåsen.
Ormåsen er et meget populært, familievennlig og markanært område i Øvre Eiker. Her er det nærheten til gode aktivitetstilbud, barnehage og barneskole. Det er gangavstand til både bussholdeplass og dagligvare, samt kort vei til sentrum både i Vestfossen og Hokksund, som gjør det til et utmerket alternativ for både småbarnsfamilier, voksne og pendlere.
Beliggenhet
Hjortetråkket ligger attraktiv, familievennlig og nær marka på populære Ormåsen. Ormåsen er et tettsted i Vestfossen i Øvre Eiker kommune, som er i sterk vekst og har blitt et ettertraktet boligområde.
Området er meget barnevennlig og har trygg gangavstand til barneskole og barnehage, store friarealer til lek og moro med b.l.a. ballbinge ved skolen og med marka som nærmeste nabo. Det er i området anlagt ny aktivitetspark og kunstgressbane.
Ormåsen er et perfekt utgangspunkt for turopplevelser med kort vei til flotte helårs lysløyper, skiløyper og turstier. Her er det et svært godt utgangspunkt for turer også videre innover mot Junger og Holtefjell. Det er koselige vann med fine bade og fiskemuligheter i nærheten med b.l.a. Junger, Hoensvannet samt ypperligere forhold for terrengsykling.
Få minutters gange til helt ny Rema 1000 forretning. Kort vei til Vestfossen hvor det er ungdomsskole, samt et hyggelig sentrum. Vestfossen omtaler seg selv som Kulturhovedstaden og har et rikt kulturtilbud.
Kort gangavstand til bussholdeplass (like ved barneskolen), med god bussforbindelse til Hokksund togstasjon. Gode tog- og bussmuligheter til Kongsberg/Mjøndalen/Drammen, se www.vy.no/www.brakar.no for avganger. Vestfossen togstasjon med togforbindelser.
Kort vei til påkjøring E- 134 retning Kongsberg/Drammen/Oslo
Ca. 10 min kjøring til Hokksund sentrum og ca. 10 min til Vestfossen sentrum, begge med de aller fleste servicetilbud. Ca. 25 min kjørevei til Drammen og ca. 20 min til Kongsberg.
Ormåsen er et meget populært, familievennlig og markanært område i Øvre Eiker. Her er det nærheten til gode aktivitetstilbud, barnehage og barneskole. Det er gangavstand til både bussholdeplass og dagligvare, samt kort vei til sentrum både i Vestfossen og Hokksund, som gjør det til et utmerket alternativ for både småbarnsfamilier, voksne og pendlere.
Beliggenhet
Hjortetråkket ligger attraktiv, familievennlig og nær marka på populære Ormåsen. Ormåsen er et tettsted i Vestfossen i Øvre Eiker kommune, som er i sterk vekst og har blitt et ettertraktet boligområde.
Området er meget barnevennlig og har trygg gangavstand til barneskole og barnehage, store friarealer til lek og moro med b.l.a. ballbinge ved skolen og med marka som nærmeste nabo. Det er i området anlagt ny aktivitetspark og kunstgressbane.
Ormåsen er et perfekt utgangspunkt for turopplevelser med kort vei til flotte helårs lysløyper, skiløyper og turstier. Her er det et svært godt utgangspunkt for turer også videre innover mot Junger og Holtefjell. Det er koselige vann med fine bade og fiskemuligheter i nærheten med b.l.a. Junger, Hoensvannet samt ypperligere forhold for terrengsykling.
Få minutters gange til helt ny Rema 1000 forretning. Kort vei til Vestfossen hvor det er ungdomsskole, samt et hyggelig sentrum. Vestfossen omtaler seg selv som Kulturhovedstaden og har et rikt kulturtilbud.
Kort gangavstand til bussholdeplass (like ved barneskolen), med god bussforbindelse til Hokksund togstasjon. Gode tog- og bussmuligheter til Kongsberg/Mjøndalen/Drammen, se www.vy.no/www.brakar.no for avganger. Vestfossen togstasjon med togforbindelser.
Kort vei til påkjøring E- 134 retning Kongsberg/Drammen/Oslo
Ca. 10 min kjøring til Hokksund sentrum og ca. 10 min til Vestfossen sentrum, begge med de aller fleste servicetilbud. Ca. 25 min kjørevei til Drammen og ca. 20 min til Kongsberg.
Beskaffenhet
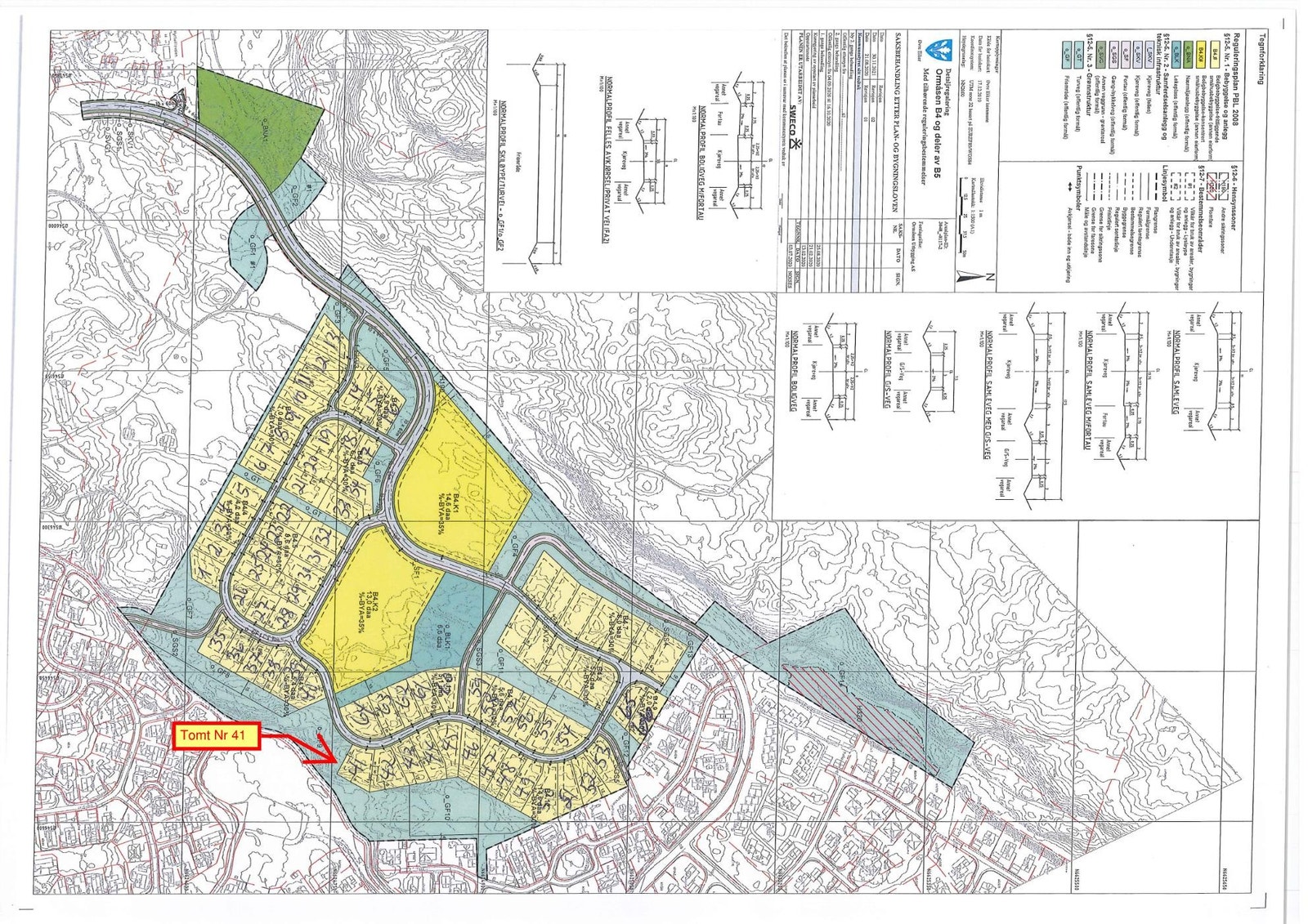
Selveiertomten er beregnet til 1106 kvm. Strømforsyning og stikkledning for vann og avløp og fiber er lagt frem til tomtegrense. Tomten overtas for øvrig som råtomt.
Regulering
Enebolig
Regulering
Enebolig
Regulering
Enebolig
NB: Knappen for å vise hele beskrivelsen har kun en visuell effekt.
NB: Knappen for å vise hele beskrivelsen har kun en visuell effekt.
Nærområdet
Annonsene kan være mangelfulle i forhold til lovpålagt opplysningsplikt. Før bindende avtale inngås oppfordres interessenter til å innhente komplett informasjon fra meglerforetaket, selger eller utleier.




