Bildegalleri

Velkommen til Tydalsvegen 675! En sjelden mulighet i Tydal med stor enebolig med egen utleieleilighet, verksted, dobbelgarasje, stabbur og uthus.
Tydal
Meget innholdsrik og velholdt enebolig på hele 355 kvm BRA | Verksted | Utleieleilighet | Stor tomt | Garasje og uthus
Prisantydning2 690 000 kr
Nøkkelinfo
- Boligtype
- Enebolig
- Eieform
- Eier (Selveier)
- Soverom
- 6
- Internt bruksareal
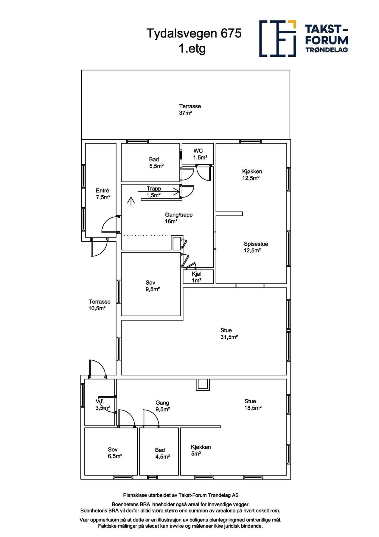
- 355 m² (BRA-i)
- Bruksareal
- 355 m²
- Balkong/Terrasse
- 37 m² (TBA)
- Byggeår
- 1959
- Energimerking
- G - Oransje
- Rom
- 8
- Tomteareal
- 1 732 m² (eiet)
Fasiliteter
Barnevennlig
Balkong/Terrasse
Garasje/P-plass
Offentlig vann/kloakk
Peis/Ildsted
Turterreng
Utsikt
Sentralt
Bredbåndstilknytning
Rolig
Om boligen
Ta kontakt med megler Jonas Sønnesyn for å avtale visning av eiendommen.
Sjelden mulighet! En svært innholdsrik og velholdt eiendom med mange muligheter. Eiendommen består av blant annet en stor enebolig med egen utleieleilighet, verksted, dobbelgarasje, stabbur og uthus. Boligen ligger fint til, kun ca. 6 minutter fra Tydal sentrum og kun ca. 30 minutter til Selbu sentrum.
Av kvaliteter kan man nevne:
- Tilbygd utleieleilighet i 1997 (Bad oppusset i 2024, samt nye gulv på stue/kjøkken)
- Ny taktekking, renner og nedløp i 2010/11
- Stort verksted i sokkel på boligen
- Stabbur
- Dobbelgarasje og uthus
- Bolig/verksted på totalt 355 kvm BRA
- 6 soverom
- Mulighet for gode leieinntekter
- Vedfyring og varmepumpe
- Lave kommunale avgifter
- Flotte jakt- og turmuligheter i område
Velkommen til en hyggelig visning.
Sjelden mulighet! En svært innholdsrik og velholdt eiendom med mange muligheter. Eiendommen består av blant annet en stor enebolig med egen utleieleilighet, verksted, dobbelgarasje, stabbur og uthus. Boligen ligger fint til, kun ca. 6 minutter fra Tydal sentrum og kun ca. 30 minutter til Selbu sentrum.
Av kvaliteter kan man nevne:
- Tilbygd utleieleilighet i 1997 (Bad oppusset i 2024, samt nye gulv på stue/kjøkken)
- Ny taktekking, renner og nedløp i 2010/11
- Stort verksted i sokkel på boligen
- Stabbur
- Dobbelgarasje og uthus
- Bolig/verksted på totalt 355 kvm BRA
- 6 soverom
- Mulighet for gode leieinntekter
- Vedfyring og varmepumpe
- Lave kommunale avgifter
- Flotte jakt- og turmuligheter i område
Velkommen til en hyggelig visning.
NB: Knappen for å vise hele beskrivelsen har kun en visuell effekt.
NB: Knappen for å vise hele beskrivelsen har kun en visuell effekt.
Salgsoppgaven beskriver vesentlig og lovpålagt informasjon om eiendommen
Se komplett salgsoppgaveNærområdet
Nylander &Partners, Trondheim sentrum
Verdien av lokalkunnskap
Annonsene kan være mangelfulle i forhold til lovpålagt opplysningsplikt. Før bindende avtale inngås oppfordres interessenter til å innhente komplett informasjon fra meglerforetaket, selger eller utleier.

































