Bildegalleri

Tømmeråsen er et moderne hus med en distinkt arkitektonisk stil. Huset har to synlige fasader, én med mørk brun trepanel og den andre med rød murstein.
Solgt
Son
Nylig renovert arkitekttegnet enebolig - Eksklusive løsninger og design - mulighet for å kjøpe ekstra tomt tomt med bod.
Prisantydning16 900 000 kr
Nøkkelinfo
- Boligtype
- Enebolig
- Eieform
- Eier (Selveier)
- Soverom
- 3
- Internt bruksareal
- 318 m² (BRA-i)
- Bruksareal
- 339 m²
- Eksternt bruksareal
- 21 m² (BRA-e)
- Balkong/Terrasse
- 59 m² (TBA)
- Etasje
- 3
- Byggeår
- 1976
- Energimerking
- F - Oransje
- Rom
- 6
- Tomteareal
- 1 190 m² (eiet)
Fasiliteter
Barnevennlig
Bredbåndstilknytning
Garasje/P-plass
Hage
Kjæledyr tillatt
Ingen gjenboere
Kabel-TV
Offentlig vann/kloakk
Parkett
Peis/Ildsted
Rolig
Sentralt
Utsikt
Utvidelsesmuligheter
Bademulighet
Fiskemulighet
Turterreng
Lademulighet
Balansert ventilasjon
Om boligen
Velkommen til Tømmeråsen 19!
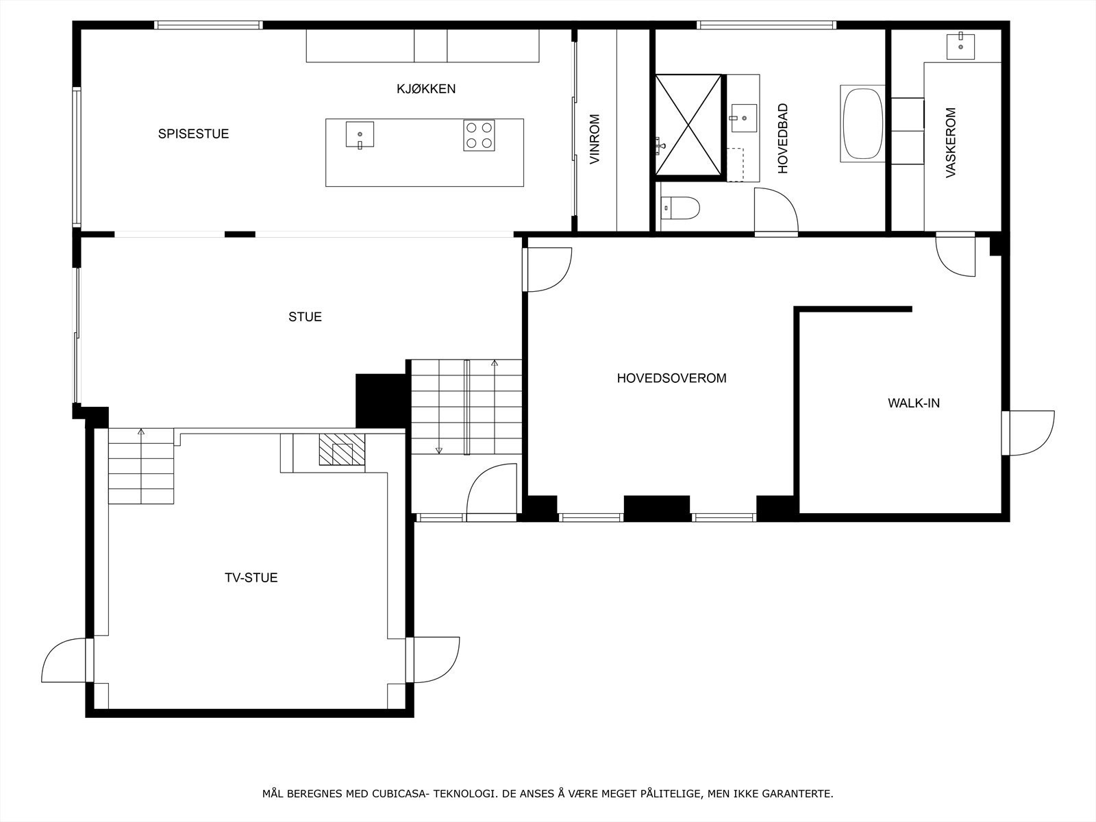
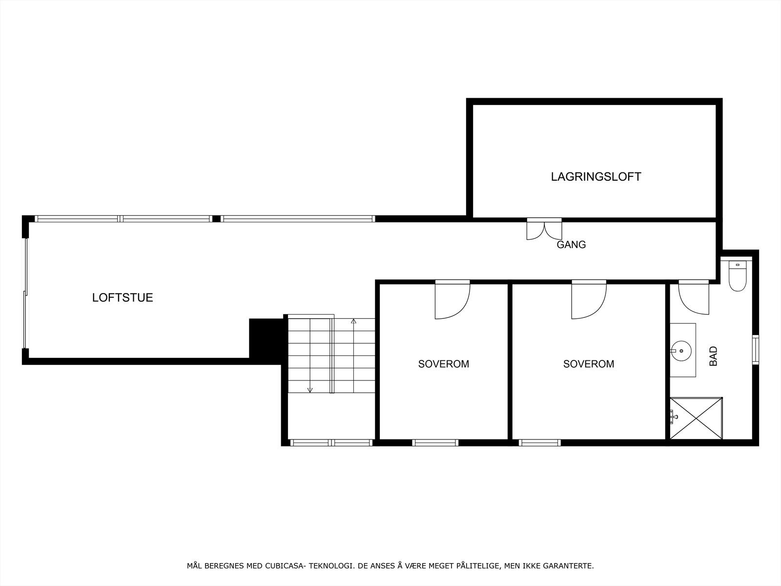
Denne boligen har en gjennomtenkt planløsning over tre plan, med mønehøyt tak. Gulvene er dekket med fiskebens- og 1-stavs parkett i eik, og spesialbygde eikedører gir en eksklusiv touch. Kjøkkenet er fra kvalitetsleverandøren Kvänum og har integrerte hvitevarer fra Gaggenau, samt et fantastisk walk-in vinrom.
Boligen har tre stuer, tre soverom, to bad og et toalettrom med hundedusj. For elbil-eiere er det en egen lader. Det er også rikelig med lagringsplass i både lagringsloft og boder. Tomten er lettstelt med plen, fjell og beplantning, og du har gåavstand til strand, tur- og lekeområder.
På baksiden av boligen finnes en ubebygd tomt, gnr 133, bnr 411, som kan kjøpes ved siden av. Denne er på 1,1 mål og og det er satt opp et garasjeuthus/anneks til bolig.
Denne boligen har en gjennomtenkt planløsning over tre plan, med mønehøyt tak. Gulvene er dekket med fiskebens- og 1-stavs parkett i eik, og spesialbygde eikedører gir en eksklusiv touch. Kjøkkenet er fra kvalitetsleverandøren Kvänum og har integrerte hvitevarer fra Gaggenau, samt et fantastisk walk-in vinrom.
Boligen har tre stuer, tre soverom, to bad og et toalettrom med hundedusj. For elbil-eiere er det en egen lader. Det er også rikelig med lagringsplass i både lagringsloft og boder. Tomten er lettstelt med plen, fjell og beplantning, og du har gåavstand til strand, tur- og lekeområder.
På baksiden av boligen finnes en ubebygd tomt, gnr 133, bnr 411, som kan kjøpes ved siden av. Denne er på 1,1 mål og og det er satt opp et garasjeuthus/anneks til bolig.
NB: Knappen for å vise hele beskrivelsen har kun en visuell effekt.
NB: Knappen for å vise hele beskrivelsen har kun en visuell effekt.
Salgsoppgaven beskriver vesentlig og lovpålagt informasjon om eiendommen
Se komplett salgsoppgaveNyttige lenker
Nærområdet
Nordvik Moss
Vi vet hva det er verdt
Annonseinformasjon
| FINN-kode | 368497548 |
|---|---|
| Sist endret | 06. juni 2025 11:49 |
| Referanse | 41-0091/24 |
Annonsene kan være mangelfulle i forhold til lovpålagt opplysningsplikt. Før bindende avtale inngås oppfordres interessenter til å innhente komplett informasjon fra meglerforetaket, selger eller utleier.

































































