Bildegalleri
Stuen har store vindusflater for godt med naturlig lysinnslipp. 1-stavs eikeparkett på gulv. Bildet er tatt i annen, tilsvarende leilighet i prosjektet.
Sentrumshagene hus A
Ferdigstilles juli 2025 - Mulighet for fleksibel overtagelse! Høy standard, balkong, heis og mulighet for p-plass
Prosjektets status
Planlegging
-
Salgsstart
-
Byggestart
-
Overtakelse
10. juli 2025
Nøkkelinfo
- Boligtype
- Leilighet
- Eieform
- Eier (Selveier)
- Soverom
- 1
- Rom
- 2
- Etasje
- 3
- Primærrom
- 41 m²
- Bruksareal
- 41 m²
Fasiliteter
Beskrivelse
Sentrumshagene A307
Sentrumshagene A307
Byggingen er godt i gang og leilighetene i Sentrumshagene står innflyttingsklar i JULI 2025! Nå kan vi endelig ta dere med inn i bygget for å se på leiligheten du vurderer!
Nå har du muligheten til å oppleve en ferdig og innredet leilighet i Sentrumshagene. Her kan du la deg inspirere av møblering og løsninger, og virkelig kjenne på hvordan det vil være å bo her. Velkommen til visning!
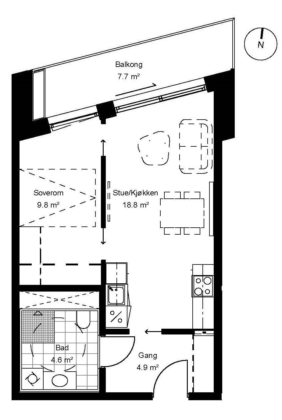
Leilighet A307 er en lekker, svært effektiv og moderne 2-roms selveierleilighet som ligger i 3. etasje. Boligen har en god planløsning som inneholder entré/gang, bad, soverom samt kjøkken og stue i åpen løsning. Fra stuen er det utgang til balkong på ca. 7,7 kvm.
Byggingen av Sentrumshagene er godt i gang og er det eneste boligprosjektet som ferdigstilles i Ås i 2025. Dette gjør Sentrumshagene til det foretrukne valget og er et trygt og forutsigbart kjøp for deg som er på jakt etter en ny bolig som skiller seg ut!
Leiligheten leveres med høy standard på innvendige materialvalg. Den åpne og sosiale kjøkkenløsningen får moderne innredning fra HTH. Kjøkkenet leveres med integrerte hvitevarer fra Siemens som standard. På gulv leveres flott, enstavs eikeparkett i hvitpigmentert nyanse.
Lekkert bad med store fliser, gulvvarme, downlights i taket og opplegg for vaskemaskin og tørketrommel. Det medfølger sportsbod i felles anlegg, og det er direkte adkomst til leilighetene med heis. Det er mulighet for å kjøpe parkeringsplass i felles garasjeanlegg.
Det som virkelig får Sentrumshagene til å skinne er uteområdene. For dette er sjelden kost. I tillegg til generøse terrasser til leilighetene, kan vi tilby både frodig takterrasse på 800 kvm og felles hage mellom husene. Det er lagt opp til sykkelparkering for alle, egne plasser for lastesykler og eget sykkelverksted/smørebod leveres som felles gode.
Besøk vår hjemmeside: www.sentrumshagene.no
Vi vet at du liker at mulighetene er mange, derfor er det å velge Sentrumshagene enkelt.
Det er faste priser uten budrunder, og leilighetene selges etter prinsippet om førstemann til mølla.
HVORFOR ÅS?
Ås er et av de tettstedene i Norge som vokser raskest, det er forventet at befolkningen kan bli fordoblet innen 2040. En fremtidsorientert tettstedsutvikling, et rikt mangfold av handels- og servicetilbud, ulike kulturaktiviteter, etablering av nye bedrifter og fagmiljøer tilknyttet Campus Ås/NMBU og aktiv boligutvikling - Ås har lange røtter til fortiden og stø kurs mot en vital fremtid.
Og midt i sentrum av Ås kommer Sentrumshagene. Og verken navnet eller beliggenheten kunne passet eller vært bedre.
Vi utvikler kvartalet Sentrumshagene for deg som drømmer om å bo sentralt, samtidig fredelig. Sentrumshagene ligger i Skoleveien, midt i hjertet av ÅS sentrum med umiddelbar nærhet til alt du trenger i hverdagen.
Togstasjonen ligger mindre enn 100 meter unna og bringer deg til Oslo S i løpet av kun 19 minutter. Det er kortere reisetid til Oslo sentrum enn de aller, aller fleste som bor i hovedstaden kan skilte med. Og likevel bor du på et sted med bedre plass og renere luft. Like ved fabelaktige turområder, sommer som vinter.
TAKTERRASSE OG FELLESHAGE
På toppen av hus A finner du Ås sin største takhage. Takhagen som vi har valgt å kalle den store takterrassen, blir som en ekstra storstue med ubegrenset takhøyde. En vakker hage dekket av planter, busker, gress og stedegen vegetasjon med muligheter til å dyrke egne grønnsaker og urter. Takhagen vil utformes for ulike behov med sittegrupper, benker, pergolaer og plantekasser. Dette vil gjøre at hagen får mange hyggelige soner, slik at du selv kan velge hvor sosial du vil være. Bygningene i Sentrumshagene ligger også som en beskyttende favn rundt et variert og vakkert gårdsrom. Gårdsrommet blir bilfritt, tenkt som en grønn oase, med stedegen og mangfoldig vegetasjon.
Felleshagen skal være et godt sted å være. På samme måte som takterrassen, får felleshagen soner for forskjellige grader av aktivitet, så du kan finne den delen som passer ditt behov og dagsform.
FORDELER VED Å KJØPE NYTT
Lave omkostninger
Når du kjøper en brukt bolig betaler du dokumentavgift til staten på 2,5 prosent av kjøpesummen. Ved å kjøpe nytt eller bolig under oppføring, beregnes dokumentavgiften kun av tomteverdien. Dette gir vesentlig lavere kjøpsomkostninger.
Bedre standard
Ved kjøp av ny bolig får du en høyere byggeteknisk standard enn for bare noen år siden. Gjennom forskriften TEK17 bygges det med bedre isolasjon, balansert ventilasjon, flere el-uttak, større heisrom og høyere krav til brannsikkerhet m.m.
Mindre vedlikehold
Ved kjøp av helt nytt trenger du ikke bruke tid på oppussing og vedlikehold på mange år. Med god planlegging av din nye bolig, får du en bolig som passer perfekt for deg! Det avholdes befaringer før overtagelse med byggherre og entreprenør, ved overtagelse og ett år etter overtagelse.
Forutsigbarhet
Ved å kjøpe nytt eller ved kjøp av bolig under oppføring, må budstadsoppføringsloven følges. Kjøper har med dette en lovfestet reklamasjonsrett på 5 år.
Lavere energikostnader
Nye, moderne boliger har blant annet bedre isolasjon noe som vil kunne deg lavere og mer forutsigbare energiutgifter.
PARKERING OG SPORTSBOD
Det bygges felles parkeringskjeller med heisadkomst fra kjeller til alle leilighetsplan. Det er mulig å kjøpe garasjeplass til kr 500 000,- + omk. Det er et begrenset antall parkeringsplasser for salg. Parkeringsplass må derfor kjøpes samtidig med bolig (dvs. ført opp i samme kjøpetilbud). Kontakt megler for nærmere informasjon innen avtaleinngåelse.
I tillegg til eventuell bod eller avsatt skapplass i leiligheten, medfølger til hver leilighet (over 50 kvm) 1 stk. sportsbod på ca. 5 kvm. For leiligheter under 50 kvm kan bodene bli ca. 2,5 til 3 kvm.
FREMDRIFT
Overtagelse av boligene i Hus A vil være i JULI 2025! Leilighet A307 har overtagelse 10. juli 2025, men mulighet for fleksibel overtagelse. Angi ønsket overtagelse i ditt bud.
ØKONOMI
FORSKUDD: Ved kontraktinngåelse innbetales kr 200 000,- til meglers klientkonto. Hovedoppgjør (rest kjøpesum, kjøpsomkostninger og eventuelle bestilte kundetilvalg) skal innbetales til meglers klientkonto senest én uke før overtagelse av boligen.
KJØPSOMKOSTNINGER: Lave kjøpsomkostninger som innbetales først ved overtagelsen/sluttoppgjøret. Se prisliste for omkostningsbeløp per bolig.
FELLESKOSTNADER
Størrelsen på felleskostnader er foreløpig ikke fastsatt, men stipulerte felleskostnader skal dekke Sameiets ordinære driftsutgifter. Hvor store kostnadene blir, vil blant annet avhenge av hvilke ytelser Sameiet rekvirerer og utviklingen av markedsprisen for disse ytelsene. Erfaringsmessig vil felleskostnader beløpe seg til ca. kr 40,- til kr 50,- per kvm BRA/mnd. Fordeling av kostnader reguleres i sameiets vedtekter, og det er lagt opp at deler av kostnadene fordeles likt mens andre kostnader fordelesetter leilighetsstørrelse.
Felleskostnader skal dekke blant annet vannbåren oppvarming og varmtvann, felles forsikring, kommunale avgifter, forretningsførsel, samt renhold, drift og vedlikehold av fellesarealer og adkomstvei mv. Kostnader for TV/Internett er ikke inkludert i estimatet ovenfor.
Det tas forbehold om endringer i stipulerte kostnader, da dette er basert på erfaringstall. I tillegg kommer drifts- og vedlikeholdskostnader for garasjekjeller stipulert til ca. kr 200,- per måned per parkeringsplass for første driftsår, og som skal betales av de som disponerer parkeringsplass i garasjeanlegget.
Endelig fastsettelse av første års driftsbudsjett og felleskostnader vedtas på Sameiets konstituerende årsmøte. Kjøper vil være forpliktet til å dekke sin forholdsmessige andel av Sameiets felleskostnader i henhold til eierseksjonsloven og Sameiets vedtekter. Kostnader til oppvarming og varmt tappevann faktureres a-konto basert på leilighetsstørrelse, med avregning etter Sameiets totale forbruk. Utkast til driftsbudsjett for første driftsår er utarbeidet basert på stipulerte inntekter og kostnader og kan fås ved henvendelse til megler.
Ved overtagelse vil det bli innkrevd 68 kr pr kvm bolig som startkapital i tillegg til de ordinære felleskostnadene. Selger vil engasjere forretningsfører for Sameiet. Kostnader for dette er medtatt i budsjettet. Det tas forbehold om endringer i budsjettpostene og fellesutgiftene. Kostnader med eiendommen som ikke knytter seg til den enkelte bruksenhet, skal fordeles mellom sameierne etter sameiebrøken med mindre særlige grunner taler for å fordele kostnadene etter nytten for den enkelte bruksenhet eller etter forbruk. Normalordningen er at eierbrøken fordeles etter bruksareal (BRA). Kjøper er forpliktet til å betale sin andel av eierseksjonssameiets felleskostnader. Selger forplikter seg til å betale løpende fastsatte felleskostnader og stiftelsesomkostninger for usolgte enheter.
LOVGRUNNLAG
Boligene selges iht. bestemmelsene i bustadoppføringslova til forbrukerkjøpere, herunder 5 års garanti iht. lovens §12. For øvrig gjelder eierseksjonsloven for sameiet og driften av dette. Denne annonsen utgjør ingen fullgod eller uttømmende presentasjon av prosjektet/eiendommen. Det er derfor viktig at interessenter kontakter megler for å få tilsendt komplett salgsdokumentasjon og går nøye gjennom dette før inngivelse av kjøpetilbud.
Nærområdet
Sem & Johnsen
Annonseinformasjon
| FINN-kode | 371123870 |
|---|---|
| Sist endret | 24. juli 2025 09:07 |
| Referanse | Sentrumshagene A307 |
Annonsene kan være mangelfulle i forhold til lovpålagt opplysningsplikt. Før bindende avtale inngås oppfordres interessenter til å innhente komplett informasjon fra meglerforetaket, selger eller utleier.














