Bildegalleri

EIE eiendomsmegling ved Alexander Reitan har gleden av å presentere Utleirtunet 18b!
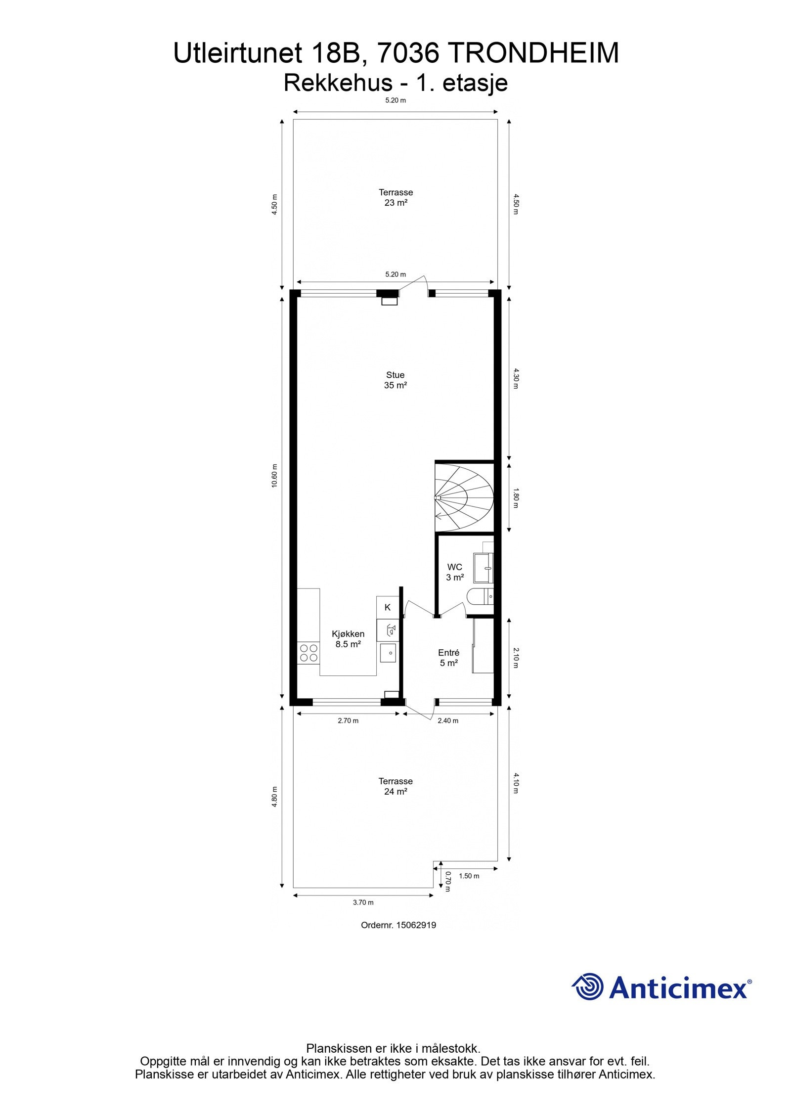
Svært innholdsrik 4-roms rekkehus over tre plan, innredet rom i kjeller, store terrasser og flott beliggenhet.
Nøkkelinfo
- Boligtype
- Rekkehus
- Eieform
- Andel
- Soverom
- 3
- Internt bruksareal
- 164 m² (BRA-i)
- Bruksareal
- 169 m²
- Eksternt bruksareal
- 5 m² (BRA-e)
- Balkong/Terrasse
- 56 m² (TBA)
- Etasje
- 1
- Byggeår
- 1971
- Energimerking
- F - Mørkegrønn
- Rom
- 4
- Tomt
- Eiet
Fasiliteter
Om boligen
Velkommen til Utleirtunet 18B
Et flott rekkehus over tre plan med stor åpen stue, tre store soverom, bad og vaskerom, innredet rom i kjeller, samt to store plattinger og veranda. Her vil man få mulighet til å nyte varme sommerdager med sol store deler av dagen, samt fine sosiale sammenkomster inne som ute. Beliggenheten gir enkel ferdsel til det meste i og rundt Trondheim. Kort vei til alle nødvendige servicetilbud, samt flotte turstier i grønne omgivelser.
Høydepunkter:
- Praktisk og romslig planløsning
-Tre soverom og rom som benyttes som kjellerstue
-Stor og åpen stue/kjøkken
-IKEA kjøkkeninnredning fra 2018
-Utvidet og flislagt bad
-Romslige uteareal med to store terrasser og veranda
-Skjermet beliggenhet og utsikt over grøntareal
-Parkering i garasje
Velkommen til visning!
Salgsoppgaven beskriver vesentlig og lovpålagt informasjon om eiendommen
Se komplett salgsoppgaveNærområdet
EIE eiendomsmegling Trondheim sentrum
Annonseinformasjon
| FINN-kode | 373851369 |
|---|---|
| Sist endret | 18. okt. 2024 13:15 |
| Referanse | 133240231 |
Annonsene kan være mangelfulle i forhold til lovpålagt opplysningsplikt. Før bindende avtale inngås oppfordres interessenter til å innhente komplett informasjon fra meglerforetaket, selger eller utleier.









































