Bildegalleri

Eiendomsmegler Norge v/ Johan R. Elieson har gleden av å ønske velkommen til denne flotte leiligheten på Kokleheia Amfi!
Inaktiv
Kokleheia Amfi
Flott, nyoppført 3-roms leilighet med romslig terrasse! 2 baderom. Nydelige sol/- utsiktsforhold. Mulighet for p.plass
Prisantydning2 590 000 kr
Nøkkelinfo
- Boligtype
- Leilighet
- Eieform
- Andel
- Soverom
- 2
- Internt bruksareal
- 79 m² (BRA-i)
- Bruksareal
- 79 m²
- Balkong/Terrasse
- 21 m² (TBA)
- Etasje
- 1
- Byggeår
- 2024
- Energimerking
- C - Rød
- Rom
- 3
- Tomteareal
- 8 243 m² (eiet)
Fasiliteter
Balkong/Terrasse
Barnevennlig
Heis
Parkett
Sentralt
Utsikt
Turterreng
Balansert ventilasjon
Visning
Sørmegleren sine visninger har påmelding. Påmelding gjøres enkelt ved å benytte knappen under. Ta kontakt med megler dersom oppsatt tidspunkt ikke passer. Det vil ikke bli avholdt visning uten påmelding, frist for påmelding er senest kl. 12.00 på visningsdagen. Husk å laste ned salgsoppgaven digitalt før visning. Velkommen til en hyggelig visning!
VisningspåmeldingOm boligen
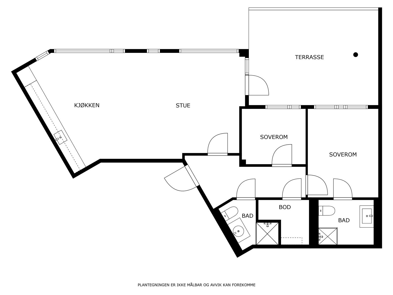
Velkommen til visning av en flott, nyoppført 3-roms leilighet på Kokleheia Amfi! Leiligheten ligger idyllisk til med nydelig utsikt mot Otra og omkringliggende natur. Leiligheten holder en gjennomgående god standard og gjennom de store vindusflater får du rikelig med naturlig lys.
Leiligheten inneholder følgende: Entre, to soverom, to baderom, bod/ teknisk rom og åpen stue-/kjøkken løsning med utgang til terrasse. Det medfølger bod i fellesareal samt mulighet for kjøp av parkeringsplass i garasjekjeller. Gjesteparkering i kjeller.
Fellesgjelden kan betales ned individuelt.
Andel renter til felleslån er pt. kr 13.522.
Ved innbetaling av andel fellesgjeld vil mnd. felleskostnader være kr 4.109,- inkl. tv/internett og A-konto vann/varme.
Velkommen!
Leiligheten inneholder følgende: Entre, to soverom, to baderom, bod/ teknisk rom og åpen stue-/kjøkken løsning med utgang til terrasse. Det medfølger bod i fellesareal samt mulighet for kjøp av parkeringsplass i garasjekjeller. Gjesteparkering i kjeller.
Fellesgjelden kan betales ned individuelt.
Andel renter til felleslån er pt. kr 13.522.
Ved innbetaling av andel fellesgjeld vil mnd. felleskostnader være kr 4.109,- inkl. tv/internett og A-konto vann/varme.
Velkommen!
NB: Knappen for å vise hele beskrivelsen har kun en visuell effekt.
NB: Knappen for å vise hele beskrivelsen har kun en visuell effekt.
Salgsoppgaven beskriver vesentlig og lovpålagt informasjon om eiendommen
Se komplett salgsoppgaveNyttige lenker
Nærområdet
Eiendomsmegler Norge Kristiansand
Best der du bor
Annonseinformasjon
| FINN-kode | 374217984 |
|---|---|
| Sist endret | 03. sep. 2025 09:18 |
| Referanse | SORM11.24451 |
Annonsene kan være mangelfulle i forhold til lovpålagt opplysningsplikt. Før bindende avtale inngås oppfordres interessenter til å innhente komplett informasjon fra meglerforetaket, selger eller utleier.
























