Bildegalleri

Utsikt mot Verdal sentrum.
Solgt
Solrik utsiktstomt på Forbregd-Lein
Prisantydning1 200 000 kr
Nøkkelinfo
Fasiliteter
Bilvei frem
Bredbåndstilknytning
Offentlig vann/kloakk
Utsikt
Beliggenhet
Tomten ligger på toppen av Forbregd-Lein med panorama utsikt utover Verdal med fjellene til sørøst og Verdal by og fjorden til sørvest. Området er familievennlig med kort avstand til den nye Stiklestad skole. Det er også barnehage i nærheten samt god turmuligheter.
Det er dyrkemark som avgrenser sørlige tomtegrenser, så tomten taper ikke utsikt eller solforhold i fremtiden.
Det er dyrkemark som avgrenser sørlige tomtegrenser, så tomten taper ikke utsikt eller solforhold i fremtiden.
Beskaffenhet
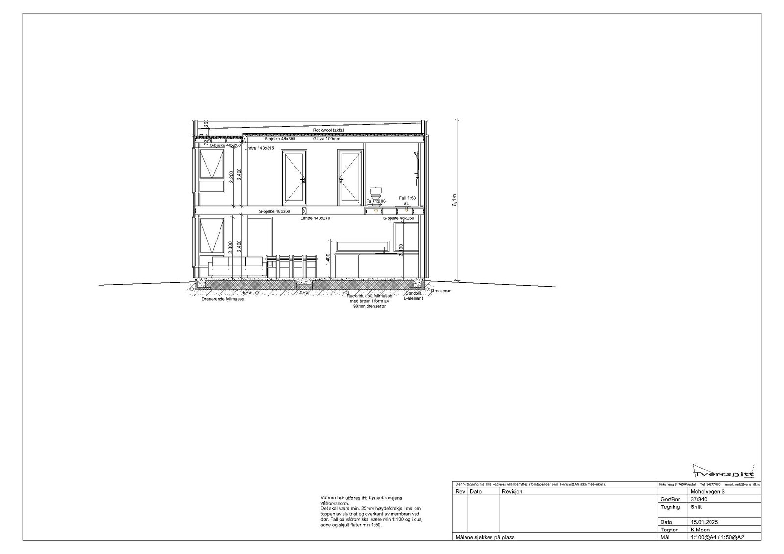
Byggeklar tomt godkjent fradelt og oppmålt.
Det foreligger vann, avløp og strøm klar til kobling innom tomten.
Geoteknisk vurdering er utført og tomten er godkjent til bygging.
Skisser samt mindre endringer for å tilpasse eneboligen etter eget ønsker er inkludert.
Rammetillatelse for skissert bolig er også inkludert.
Det foreligger vann, avløp og strøm klar til kobling innom tomten.
Geoteknisk vurdering er utført og tomten er godkjent til bygging.
Skisser samt mindre endringer for å tilpasse eneboligen etter eget ønsker er inkludert.
Rammetillatelse for skissert bolig er også inkludert.
NB: Knappen for å vise hele beskrivelsen har kun en visuell effekt.
NB: Knappen for å vise hele beskrivelsen har kun en visuell effekt.
Nærområdet
Annonsene kan være mangelfulle i forhold til lovpålagt opplysningsplikt. Før bindende avtale inngås oppfordres interessenter til å innhente komplett informasjon fra meglerforetaket, selger eller utleier.












