Bildegalleri

Velkommen til Kopervikgata 21! Her har vi gleden av å presentere en svært pent oppusset leilighet som holder gjennomgående høy standard
Strøken 2-roms- Nyere moderne baderom og kjøkken- Moderne og svært flott oppusset leilighet!
Nøkkelinfo
- Boligtype
- Leilighet
- Eieform
- Andel
- Soverom
- 1
- Internt bruksareal
- 43 m² (BRA-i)
- Bruksareal
- 48 m²
- Eksternt bruksareal
- 5 m² (BRA-e)
- Etasje
- 2
- Byggeår
- 1953
- Energimerking
- G - Rød
- Rom
- 3
- Tomteareal
- 3 424 m² (eiet)
Fasiliteter
Om boligen
Her har vi gleden av å presentere en svært pent oppusset leilighet som holder gjennomgående høy standard. Her er alt revet innvendig og bygget opp på ny!
Nytt elektrisk og rør i- rør. Alle gulv og vegger er nye.
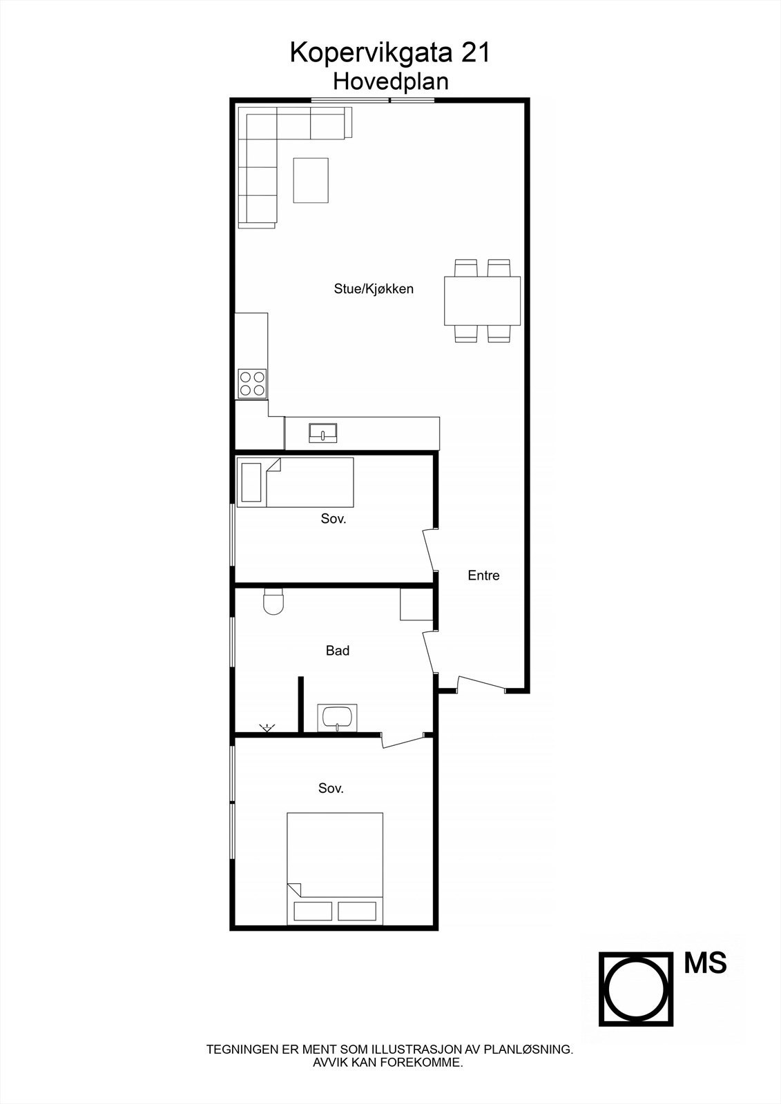
Moderne kjøkken med god skap og- benkeplass. Integrerte hvitevarer som stekeovn, koketopp, kjøl/ fryseskap og oppvaskmaskin. Åpen kjøkken stue løsning hvor en har god plass til spisebord og sofagruppe. Nydelig en- stavs parkett lagt i fiskebensmønster!
Nyere, moderen baderom som har gulvbelegg med varme, moderne baderomspanel på vegger. Flott baderomsinnredning og dusj med glassvegger.
Stort soverom med teppe på gulv, rom brukt til gjester og garderobe!
Flott leilighet som bør oppleves! Velkommen til visning!
Salgsoppgaven beskriver vesentlig og lovpålagt informasjon om eiendommen
Se komplett salgsoppgaveNyttige lenker
Nærområdet
EiendomsMegler 1 Karmøy
Prisstatistikk
Kopervikgata 21
på annonsen
prisantydning per kvadratmeter
Prisfordeling
Pris per m² ligger 6 482 kr over snittet for leiligheter i Haugesund.
Grafen viser antall leiligheter solgt i Haugesund siste året fordelt på pris per m² - totalt 528 leiligheter
Antall boliger
Kvadratmeterpris tilsvarer prisantydning pluss fellesgjeld per kvadratmeter (p-rom eller BRA-i). Prisene i grafen er avrundet til nærmeste 1000 kr.
Annonseinformasjon
| FINN-kode | 374371893 |
|---|---|
| Sist endret | 05. des. 2024 13:44 |
| Referanse | 2502240231 |
Annonsene kan være mangelfulle i forhold til lovpålagt opplysningsplikt. Før bindende avtale inngås oppfordres interessenter til å innhente komplett informasjon fra meglerforetaket, selger eller utleier.





































