Bildegalleri

Eiendomsmegler 1 Fjellmegleren har gleden av å presentere Søre Einarsetlie 5!
Inaktiv
Velkommen til Søre Einarsetlie 5- En flott, nyoppført tømmerhytte med 4 soverom og 2 bad! Like ved Storefjell!
Prisantydning6 490 000 kr
- Omkostninger
- 41 230 kr
- Totalpris
- 6 531 230 kr
Nøkkelinfo
- Beliggenhet
- På fjellet
- Boligtype
- Hytte
- Eieform
- Eier (Selveier)
- Internt bruksareal
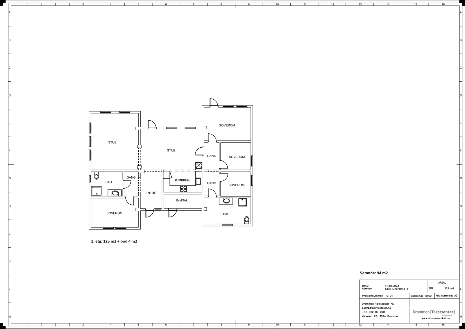
- 125 m² (BRA-i)
- Bruksareal
- 129 m²
- Eksternt bruksareal
- 4 m² (BRA-e)
- Tomteareal
- 1 849 m² (eiet)
- Byggeår
- 2023
- Soverom
- 4
- Rom
- 5
- Energimerking
- C - Oransje
- Overtakelse
- Ca. 14 dager etter signert kontrakt.
Fasiliteter
Innlagt vann
Alpinanlegg
Balkong/Terrasse
Barnevennlig
Bilvei frem
Peis/Ildsted
Rolig
Utsikt
Innlagt strøm
Turterreng
Visning
Visning etter avtale med utbygger og megler.
Husk å lese komplett salgsoppgave før visning. Bestill komplett, utskriftsvennlig salgsoppgave.
VisningspåmeldingOm boligen
I Einarset Hyttegrend finner du denne nyoppførte tømmerhytta! Fra hytteveggen er det direkte adkomst til fjelleventyret året rundt og hytta ligger like ved Storefjell. Hytta ligger flott til med vid og fin utsikt utover Golsfjellet!
Hytta har en god planløsning over ett plan og inneholder flislagt entré med inngang til ett av hyttas soverom samt bad. Videre kommer man inn i et stort oppholdsrom med kjøkken, spisestue og stue. Fra kjøkkenet kommer man inn i en soveromsfløy med 3 soverom hvorav det ene har utgang til terrassen. Her våkner man opp til en fantastisk utsikt. Videre er det hyttas hovedbad med opplegg for badekar. Teknisk rom/bod i tilknytning til inngangspartiet.
Velkommen til fjells og på visning!
Hytta har en god planløsning over ett plan og inneholder flislagt entré med inngang til ett av hyttas soverom samt bad. Videre kommer man inn i et stort oppholdsrom med kjøkken, spisestue og stue. Fra kjøkkenet kommer man inn i en soveromsfløy med 3 soverom hvorav det ene har utgang til terrassen. Her våkner man opp til en fantastisk utsikt. Videre er det hyttas hovedbad med opplegg for badekar. Teknisk rom/bod i tilknytning til inngangspartiet.
Velkommen til fjells og på visning!
NB: Knappen for å vise hele beskrivelsen har kun en visuell effekt.
NB: Knappen for å vise hele beskrivelsen har kun en visuell effekt.
Salgsoppgaven beskriver vesentlig og lovpålagt informasjon om eiendommen
Se komplett salgsoppgaveNyttige lenker
Nærområdet
EIE Fjellmegleren Gol / Nesbyen / Flå

Håkon Wøllo
Eiendomsmegler MNEF/ Fagansvarlig/Avd.leder Nedre Hallingdal
Annonseinformasjon
| FINN-kode | 375437737 |
|---|---|
| Sist endret | 11. aug. 2025 11:32 |
| Referanse | 1531240278 |
Annonsene kan være mangelfulle i forhold til lovpålagt opplysningsplikt. Før bindende avtale inngås oppfordres interessenter til å innhente komplett informasjon fra meglerforetaket, selger eller utleier.

































