Bildegalleri

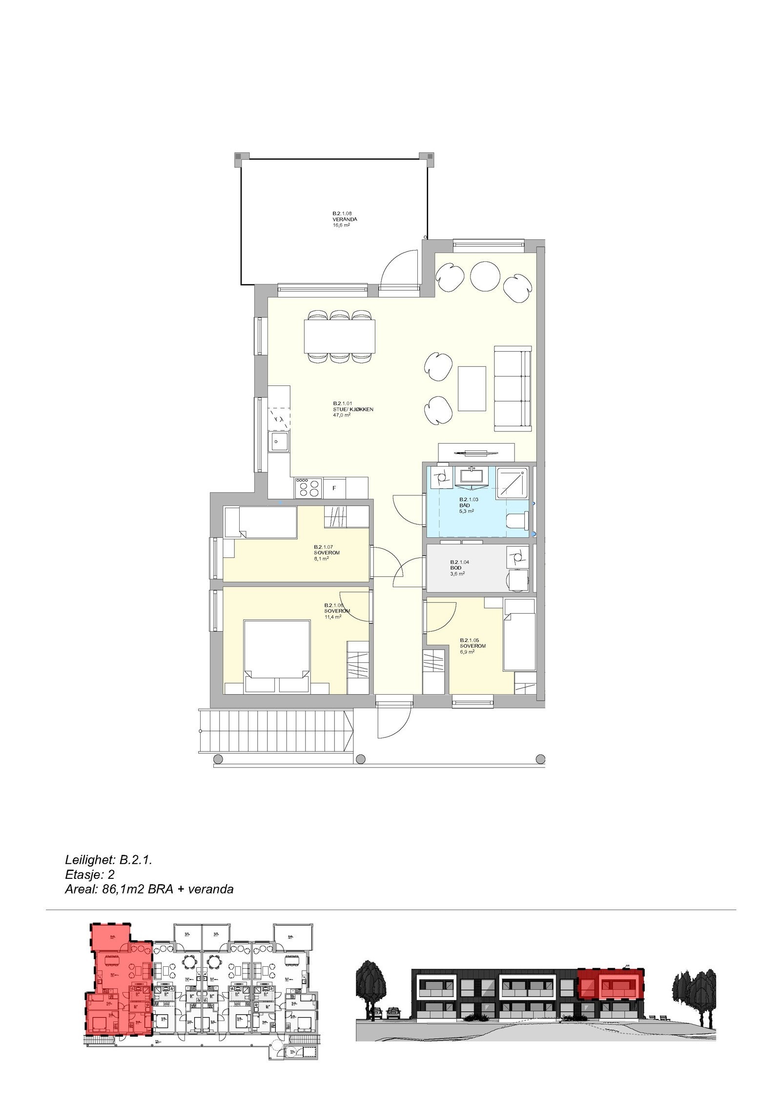
Romslig(17m²) og takoverbygd veranda med sol fra tidlig formiddag til solnedgang.
Inaktiv
Nesset/Kjønstadmarka
Lys & romslig 4-roms leilighet fra 2023. Topp- & hjørnebeliggenhet. Ubebodd. Heis & carport. Solrik terrasse.
Prisantydning2 475 000 kr
Nøkkelinfo
- Boligtype
- Leilighet
- Eieform
- Andel
- Soverom
- 3
- Internt bruksareal
- 88 m² (BRA-i)
- Bruksareal
- 94 m²
- Eksternt bruksareal
- 6 m² (BRA-e)
- Balkong/Terrasse
- 17 m² (TBA)
- Etasje
- 2
- Byggeår
- 2023
- Energimerking
- C - Rød
- Tomt
- Eiet
Fasiliteter
Balkong/Terrasse
Parkett
Heis
Ingen gjenboere
Barnevennlig
Rolig
Kabel-TV
Moderne
Garasje/P-plass
Turterreng
Offentlig vann/kloakk
Utsikt
Lademulighet
Visning
Vi oppfordrer til å benytte visningspåmelding, dette sikrer god oppfølging fra megler.
Ta gjerne kontakt med megler i forkant av visning dersom du har spørsmål.
Husk å lese salgsoppgaven før visningen.
Velkommen!
VisningspåmeldingOm boligen
Kjønstadvegen 29 er en moderne 4-roms leilighet fra 2023, med topp og hjørnebeliggenhet. Leiligheten nyter fantastisk utsikt og svært gode solforhold. Leiligheten har en romslig stue med gode vindusflater på 2 veggflater og åpen kjøkkenløsning.
Kort fortalt:
- Boligen har en usjenert hjørnebeliggenhet i byggets 2 etasje.
- Sol fra ca kl 11.00- solnedgang, sommers tid.
- Flislagt bad med gulvvarme og dusjhjørne.
- Opplegg for vaskemaskin og tørketrommel på bad.
- Kabel-tv, internett, forsikring, renter mm. er inkludert i felleskostnadene.
- Umiddelbar nærhet til bussholdeplass.
- Enkel adkomst med heis.
- Utstrakt bruk av god grunnbelysning.
- Fra leiligheten har man kort vei til flere turstier, strand, samt skiløyper på vinters tid.
- Leiligheten er ubebodd og fremstår som helt ny.
Ta kontakt for å avtale visning!
NB: Knappen for å vise hele beskrivelsen har kun en visuell effekt.
NB: Knappen for å vise hele beskrivelsen har kun en visuell effekt.
Salgsoppgaven beskriver vesentlig og lovpålagt informasjon om eiendommen
Se komplett salgsoppgaveNyttige lenker
Nærområdet
Lokalmegleren & Partners Levanger
Verdien av lokalkunnskap
Annonseinformasjon
| FINN-kode | 379497014 |
|---|---|
| Sist endret | 11. aug. 2025 07:31 |
| Referanse | 71240146 |
Annonsene kan være mangelfulle i forhold til lovpålagt opplysningsplikt. Før bindende avtale inngås oppfordres interessenter til å innhente komplett informasjon fra meglerforetaket, selger eller utleier.























