Bildegalleri

Velkommen til Barrock!
Velkommen til Barrock! Stort næringsbygg over to etasjer med sentral beliggenhet - 528 kvm BRA
Nøkkelinfo
- Eieform
- Eier (Selveier)
- Areal
- 528 m²
- Byggeår
- 1974
- Tomteareal
- 767 m² (eiet)
Type lokale
Beskrivelse
Velkommen til Barrock!
Denne sentrale næringseiendommen på Brekstad inneholder følgende:
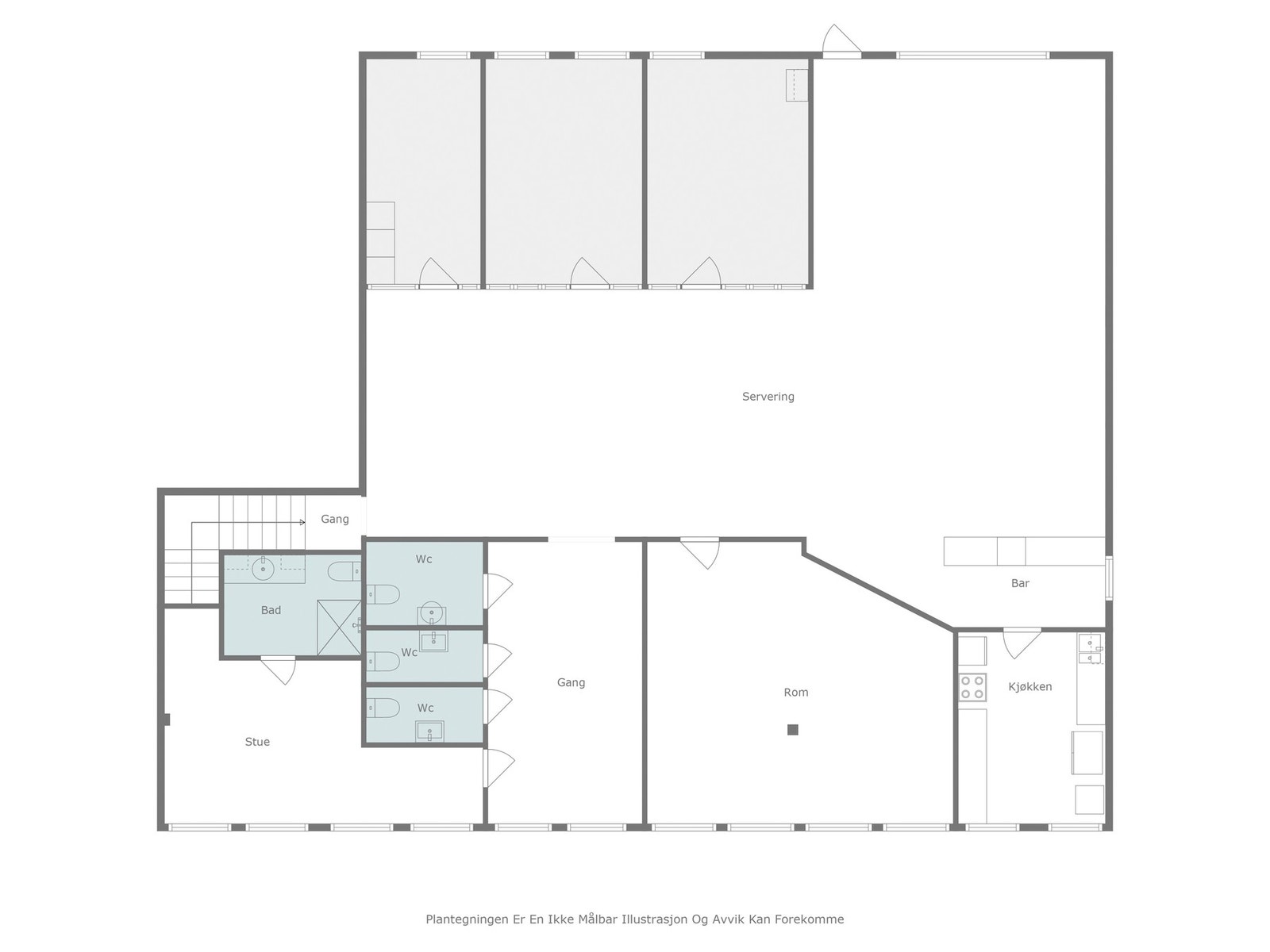
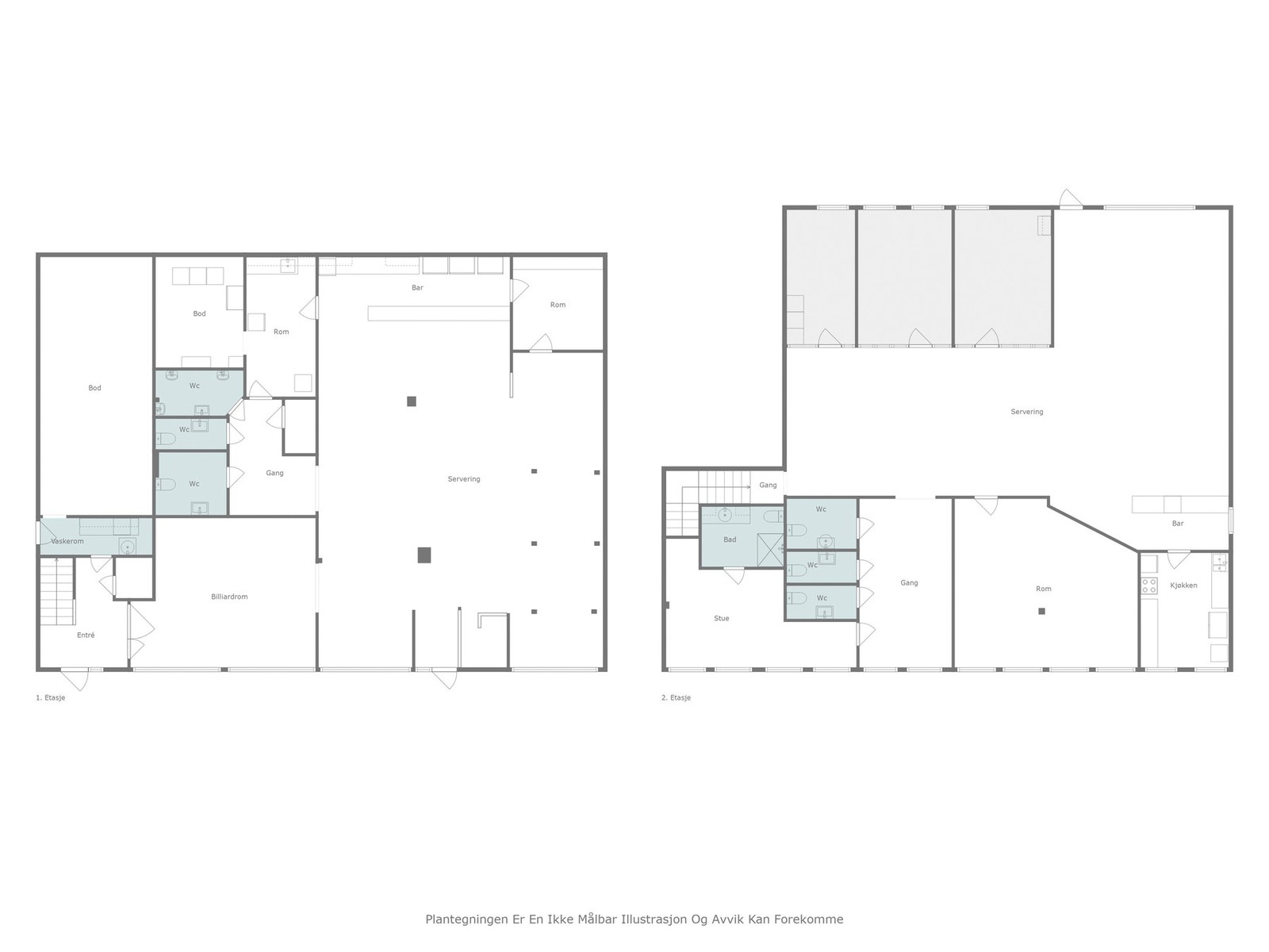
1.etg 244 kvm: Entre/gang, WC, bod, bar/pub, garderobe, 3stk WC/pisoar-rom, oppvask, teknisk rom og bod/backstage (33m2 tilfluktsrom eies av annen enhet og er ikke medtatt i arealet, men tilgang er via Yrjars gate 2C).
2.etg 284 kvm: Trapperom, bar/pub, 3stk personalrom/lager, garderobe, 3stk WC,
personalrom/leilighet, bad, stue/kontor og kjøkken.
Ventilasjonsanlegg er ca 7 år gammelt som dekker 1.etg og personalrom, bad og toaletter i 2.etg. Det er montert brannsentral som er ny for 3 år siden som dekker alle rom i bygget.
Komplett bar i 1.etg med alt av utstyr, PA, lys osv kan selges utenom hvis ønskelig.
Om boligen
Arealer
Totalt bruksareal: 0,0 m²
- BRA-i: m²
- BRA-e: m²
- BRA-b: m²
I tillegg kommer TBA (terrasse-/balkongareal): m²
BRA-i: Internt bruksareal. BRA-e: Eksternt bruksareal. Dersom dette arealet befinner seg i sameie, borettslag, aksjesalg e.l. vil normalt sett disse arealene ikke være eid av boligen, de er kun disponert på salgstidspunktet. Arealet kan f. eks. omrokeres av styret i ettertid. BRA-b: Innglasset balkong. GUA: Gulvareal. ALH: Areal med lav himlingshøyde.
Se vedlagte tilstandsrapport for nærmere beskrivelse av arealene. Arealene er oppmålt av bygningssakkyndig og ikke kontrollert/oppmålt av eiendomsmegler. Arealene er oppgitt iht NS 3940 Areal- og volumberegninger av bygninger.
Selgers egenerklæringsskjema
Selger har kommentert på følgende spørsmål i egenerklæringsskjema som er en del av salgsoppgaven:
- (sett inn fra egenerklæringsskjema)
-
-
-
Se hele egenerklæringen fra selger som vedlegg i salgsoppgave.
Byggemåte og ferdigattest/brukstillatelse
Vi henviser til opprinnelig salgsoppgave til prosjektet.
Tomt
Denne tomten er eiet.
767,00 kvm.
Oppvarming / energiforbruk
Boligen er oppvarmet med .
Energikarakter: Ingen -
Energiforbruk foregående år var ____ kwh.
Energiforbruket er opplyst av selger og vil variere fra husstand til husstand.
Økonomi
Beregnet totalpris
Prisantydning kr 2 990 000,-
I tillegg til prisantydning og ev. fellesgjeld, påløper følgende omkostninger:
74 750,00,- (Dokumentavgift)
500,00,- (Tinglysing skjøte)
500,00,- (Tinglysing pantedok. pr. stk)
2 800,00,- (HELP PLUSS)
_______________________________________________________
3 068 550,- Totalpris inkl. omkostninger og fellesgjeld
_______________________________________________________
Det ovenstående forutsetter at eiendommen selges til prisantydning og at det kun tinglyses ett pantedokument. Det tas forbehold om endringer i offentlige gebyr.
Kommunale avgifter
Kr. 5 933,- for 2024.
Andre løpende kostnader (vei, vann, feiing m.m.)
Eiendomsskatt
Dersom kommunen har innført eiendomsskatt så baseres denne på markedsverdien minus bunnfradrag multiplisert med den promillesats som til enhver tid gjelder for den enkelte kommune (p.t 2-7 promille). Spørsmål om eiendomsskatt rettes til kommunen.
Formuesverdi
Primær formuesverdi kr. 0,00.
Sekundær formuesverdi kr. 0,00.
Gjeldende for ligningsåret .
Offentlige forhold
Forsikring
Eiendommen er forsikret i med polisenr. .
Regnskap
Årsregnskapet for forrige periode (20xx) viser:
Driftsinntekter kr. x,-
Driftskostnader kr. x,-
Årsresultat kr. x,-
Disponible midler for boligselskapet utgjør kr. x,- per 31.12.xx.
Budsjett for 20xx viser et overskudd på kr. x,-.
For nærmere detaljer vises det til spesifikasjoner i regnskap og noter.
Rettigheter og heftelser
Eiendommen overdras fri for pengeheftelser. Kommunen har lovbestemt legalpant i eiendommen som sikkerhet for betaling av kommunale gebyr.
Dnr. 3579, tgl. 01.08.1996 - Leie av næringslokale
Bestemmelser om regulering av leien
Bestemmelser om forlengelse
Kan ikke framleies uten samtykke av
hjemmelshaver/utleier
Kan overdras uten samtykke av
hjemmelshaver/utleier
Leieavtalen kan ikke sies opp så lenge den er pantsatt
til Ørland Sparebank
Med flere bestemmelser
Dnr. 904552, tgl. 06.11.1974 - Registrering av grunn
ANMERKET DATO ER DØDSDATO / DATERINGSDATO
For servitutter eldre enn fradelingsdato og eventuelle arealoppføringer som kan ha betydning for denne matrikkelenhet henvises det til avgivereiendommen. Ta kontakt med megler for mer informasjon.
Velforening
Konsesjon og odel
Diverse
Løsøre og tilbehør
Følgende tilbehør medfølger handelen:
(spesifiser særlig om hvitevarer, lamper, fastmonterte hyller.)
I salgsoppgaven finner du NEF sin standardliste Oversikt over løsøre og tilbehør . Listen gjelder med mindre annet er særskilt oppgitt i salgsoppgaven. Dersom noe som står på listen ikke finnes på eiendommen, følger det heller ikke med. Med mindre annet er opplyst, medfølger integrerte hvitevarer på kjøkken. Alt løsøre og utstyr som medfølger overdras uten garantier, utover eventuell gjenværende leverandørgaranti. Kjøper må påregne at det kan være hull og merker etter innredning eller utstyr som ikke følger med.
Om salgsoppgaven
Salgsoppgaven er basert på selgers opplysninger gitt til bygningssakkyndig, eiendomsmegler og opplysninger innhentet fra kommunen, evt. forretningsfører og andre tilgjengelige kilder. Interessenter oppfordres til å undersøke eiendommen godt, gjerne sammen med sakkyndig, og til å lese gjennom fullstendig salgsoppgave med vedlegg før bud inngis. Det er ikke kontrollert om tomtegrensene stemmer med de grenser/gjerde som fysisk er satt. Det kan være avvik fra dagens rombruk/rombenevnelse i forhold til det opprinnelige byggemeldte/godkjente. Salgsoppgaven er lest og godkjent av selger.
Kjøpsvilkår
Budgivning
Vi oppfordrer alle til å lese Forbrukerinformasjon om budgivning før bud inngis. Alle bud og budforhøyelser skal inngis skriftlig til megler. I tillegg er megler pålagt å innhente gyldig legitimasjon og signatur fra budgiver før bud kan formidles til selger. Det informeres om at det ikke er angrerett ved kjøp av eiendom og ved aksept av bud er bindende avtale mellom selger og kjøper inngått.
Kravet til legitimasjon og signatur er oppfylt for budgivere som benytter Bank-ID og vi oppfordrer derfor alle til å gi bud elektronisk ved å benytte GI BUD knappen på eiendommens hjemmeside. Eventuelle forhøyelser kan sendes ved å svare direkte på mottatt sms fra meglers system. Alle budforhøyelser skal bekreftes av megler.
For at budene skal kunne bli behandlet og videreformidlet skriftlig til alle involverte parter, må alle bud ha en tilstrekkelig lang akseptfrist, jf. Eiendomsmeglingsloven § 6-8 (3). Selger må også skriftlig akseptere budet før aksept kan formidles til budgiver. Akseptfrist på alle bud skal være minimum 30 minutter, og budforhøyelser må skje i god tid før fristens utløp. Bud som ikke er skriftlig, eller som har kortere akseptfrist enn til kl. 12.00 dagen etter siste annonserte visning, vil ikke bli formidlet til selger.
Eiendomsmegler har ikke lov til å formidle hemmelige bud eller bud med forbehold som hindrer megler i å formidle budet til andre enn selger, jf eml 6-8 (3). Slike bud vil derfor ikke bli formidlet til selger.
Eiendomsmegler er iht eml § 6-8(6) pålagt å gjennomføre kontroll av budgivernes finansiering. Dersom det ikke er mulig for megler å gjennomføre dette før aksept av bud plikter megler å advare selger om risiko knyttet til dette.
Selger står fritt til å akseptere eller forkaste et hvert bud og er således ikke forpliktet til å akseptere det høyeste budet på eiendommen. Etter at eiendommen er solgt vil kjøper og selger få tilsendt budjournal. Øvrige budgivere kan få utlevert kopi av budjournalen i anonymisert form.
Det gjøres oppmerksom på at budgiver også vil være den som vil stå som kjøper av eiendommen. Dersom man etter at bud er akseptert ønsker å endre hvem som skal stå som eier, forutsetter dette at selger godkjenner en slik endring. Alle involverte parter skal signere kjøpekontrakt og er solidarisk ansvarlig for kjøpet frem til oppgjør er gjennomført. For seksjon/andel/akjse-bolig vil forretningsfører normalt kreve ekstra eierskiftegebyr dersom de har mottatt eierskiftemelding og det i ettertid skal legges til/endre kjøper. Eierskiftemelding sendes normalt fra megler til forretningsfører samme dag som budaksept.
Lov om hvitvasking
Eiendomsmeglingsforetak plikter etter lov om hvitvasking å gjennomføre kontrollhandlinger knyttet til kjøper og selgers identitet og forhold knyttet til gjennomføringen av handelen. Dette omfatter også opplysninger om kundeforholdets formål og tilsikrede art. For kjøper må kontroll av legitimasjon skje senest ved inngåelse av kontrakt. Signering med bankID er regnet som gyldig legitimasjonskontroll. Ved oppdrag hvor juridiske personer (selskap) er part må eiendomsmegler også gjennomføre kontroll av hvilke fysiske personer som kontrollerer selskapet (reelle rettighetshavere). Dersom megler ikke klarer å gjennomføre pålagte kundetiltak må megler avvise kunden og oppdraget. Megler har også plikt å melde forhold som ikke er avklart og fremstår som mistenkelige til Økokrim. Megler kan også i enkelte tilfeller ha plikt til å stanse gjennomføringen av handelen.
Eiendomsmegler plikter å gjennomføre undersøkelser av kjøpers egenkapital og eventuelt andre forhold knyttet til kjøper. Den delen av kjøpesummen som er egenkapital skal innbetales fra kjøpers konto i norsk finansinstitusjon.
Salgsbetingelser
Eiendommen skal overleveres kjøper i tråd med det som er avtalt. Det er viktig at kjøper setter seg grundig inn i alle salgsdokumentene, herunder salgsoppgave, tilstandsrapport og selgers egenerklæring. Kjøper anses kjent med forhold som er tydelig beskrevet i salgsdokumentene. Forhold som er beskrevet i salgsdokumentene kan ikke påberopes som mangler. Dette gjelder uavhengig av om kjøper har lest dokumentene. Alle interessenter oppfordres til å undersøke eiendommen nøye, gjerne sammen med fagkyndig før bud inngis. Kjøper som velger å kjøpe usett kan ikke gjøre gjeldende som mangel noe han burde blitt kjent med ved undersøkelsen.
Dersom det er behov for avklaringer, anbefaler vi at kjøper rådfører seg med eiendomsmegler eller en bygningssakyndig før det legges inn bud.
Hvis eiendommen ikke er i samsvar med det kjøperen må kunne forvente ut ifra alder, type og synlig tilstand, kan det være en mangel. Det samme gjelder hvis det er holdt tilbake eller gitt uriktige opplysninger om eiendommen og dette har virket inn på avtalen. En bolig som har blitt brukt i en viss tid, har vanligvis blitt utsatt for slitasje og skader kan ha oppstått. Slik bruksslitasje må kjøper regne med, og det kan avdekkes enkelte forhold etter overtakelse som nødvendiggjør utbedringer. Normal slitasje og skader som nødvendiggjør utbedring, er innenfor hva kjøper må forvente og vil ikke utgjøre en mangel.
Boligen kan ha en mangel dersom det er avvik mellom opplyst og faktisk areal, forutsatt at avviket er på 2% eller mer og minimum 1 kvm.
Ved beregning av et eventuelt prisavslag eller erstatning må kjøper selv dekke tap/kostnader opptil et beløp på kr 10 000 (egenandel).
Dersom kjøper ikke er forbruker selges eiendommen som den er , og selgers ansvar er da begrenset jf. avhl. § 3-9, 2. pktm. Informasjon om kjøpers undersøkelsesplikt, herunder oppfordringen om å undersøke eiendommen nøye, gjelder også for kjøpere som ikke anses som forbrukere.
Eiendomsmegler sin standardkontrakt inneholder bl.a. bestemmelser om at dersom det foreligger vesentlig mislighold, har selger rett til å heve etter 30 dager fra avtalt betalingstid. Kjøper aksepterer dette som bindende for seg.
Det forutsettes at hjemmel til eiendommen overføres til kjøper. Dersom dette ikke er ønskelig må det tas forbehold i budet.
Lov om avhending av fast eigedom (avhendingslova)
Frivillig salg av fast eiendom reguleres av Lov om avhending av fast eiendom av 3. juli 1992 nr. 93.
Vedlegg til salgsoppgave og kjøpekontrakt
Vedlagt i salgsoppgaven følger egenerklæring selger, tilstandsrapport, kommunale opplysninger (f. eks reguleringskart med bestemmelser), informasjon fra forretningsfører (gjelder kun sameie, borettslag og aksjelag), energiattest mm. Alle interessenter forutsettes å ha satt seg inn i salgsoppgave med vedlegg før bud inngis. Ta gjerne kontakt med megler dersom du ønsker utlevert dine egne kopier av dokumentene.
Det gjøres oppmerksom på at Nylander &Partners, Fosen sine standard kjøpekontrakter blir benyttet i handelen, dersom det ikke avtales noe annet før handel har kommet i stand.
Behandling av personopplysninger
Det gjøres oppmerksom på at foretaket behandler personopplysninger og all behandling skjer iht. personvernregelverket. Meglerforetaket behandler kun personopplysninger som er nødvendig for å gjennomføre oppdraget. Det gjøres oppmerksom på at vi deler dine personopplysninger med offentlige myndigheter i den utstrekning det er nødvendig og med virksomheter som tilbyr tjenester for gjennomføring av oppdraget. For mer informasjon se personvernerklæring på www.partners.no.
Om oppdraget
Eier
Eier er Barrock Eiendom AS.
Adresse, matrikkel og oppdragsnummer
Eiendommens adresse er Yrjars gate 2C.
Matrikkel tilhørende eiendommen: gnr. 167, bnr. 156 i Ørland.
Vårt oppdragsnummer er 69240288.
Megler og meglers vederlag
Følgende er avtalt om meglers vederlag, og skal betales av selger:
Provisjon 2,500 % av salgssummen eks. mva (minimum 80 000 eks. mva)
Digitale oppdragtjenester: 2 190,00
Markedspakke Standard: 7 000,00
Oppgjørsgebyr: 6 890,00
Tilretteleggelsesgebyr: 15 000,00
Visningshonorar pr. stk: 2 000,00
Meglers vederlag er avtalt til ,
Dersom handel ikke kommer i stand eller oppdraget sies opp, har oppdragstaker krav på rimelig vederlag for medgått tid/utført arbeid og avtalte utgifter (utgifter til påløpte visninger, innhenting av opplysninger, markedspakke og tilrettelegging), samt eventuelle utlegg. Alle priser er inkl. mva.
Meglerforetaket mottar betaling for tilleggstjenester som tilbys i sammenheng med eiendomshandelen. Dette gjelder blant annet strømleverandører, boligkjøperprodukter, boligalarm o.l.). For ordens skyld gjøres det oppmerksom på at Hjem.no eies av eiendomsmeglingsforetakene og oppdragstaker kan ha en mindre aksjepost i eierselskapet Bomega AS.
Ansvarlig megler er Aleksander Buvarp / +47 97 14 83 36 / aleksander.buvarp@nylanderpartners.no.
Oppdragstakers forretningsadresse er Postboks 40, 7129 BREKSTAD. Org. nr. 990732809.
Arealer fordelt på etasje
1.Etasje:
Primærrom: 223 m2
Sekundærrom: 21 m2
BRA (P-ROM + S-ROM): 244 m2
BTA: 294 m2
Åpent areal (TBA): 50 m2
Beskrivelse primærrom: Entre/gang, WC, bar/pub, garderobe, 3stk WC/pisoar-rom, oppvask og bod/backstage.
Beskrivelse sekundærrom: 2stk boder og teknisk rom. (33m2 tilfluktsrom eies av annen enhet og er ikke medtatt i arealet, men tilgang er via Yrjars gate 2C.
2.Etasje:
Primærrom: 284 m2
BRA (P-ROM + S-ROM): 284 m2
BTA: 300 m2
Beskrivelse primærrom: Trapperom, bar/pub, 3stk personalrom/lager, garderobe, 3stk WC, persoanlrom/leilighet, bad, stue/kontor og kjøkken.
Oppsummering tilstandsrapport
OPPSUMMERING TILSTANDSRAPPORT
Tilstandsgrad (TG) tilsier hvilken tilstand objektet har i forhold til et definert referansenivå. For nærmere forklaring av tilstandsgrader se i tilstandsrapporten.
Her kommer en oppsummering av TG i tilstandsrapporten:
TG 0: 1
TG 1: 9
TG 2: 6
TG 3: 1
TG IU: 0
Følgende forhold har fått tilstandsgrad 3:
Vinduer / dører: Vinduer fra byggeår med 2-lags isolerglass fremstår med elde og slitasje for alder. Enkelte vinduer tar i karm og anbefales justert. Det registreres harde pakninger med påfølgende nedsatt tettefunksjon. Det ble observert punkterte glass i enkelte vinduer og det ble registrert vindu med sprukket glass. Med tanke på alder og observasjoner er det anbefalt å bytte ut vinduer i bygningen. Tilstandsgrad er gitt pga alder/slitasje på vinduer, vedlikehold/utskifting av vinduer må påregnes i tiden som kommer. Tilstandsgrad 2 er satt pga kort gjenværende brukstid på vinduer og dører. Vinduer med punkterte og sprukket glass gis TG3. Kostnadsoverslag er satt for utskifting av vinduer med sprukket og punktert glass.
Følgende forhold har fått tilstandsgrad 2:
Taktekking og beslag: Mer enn halvparten av forventet brukstid er oppbrukt på taktekkingen. Vedlikehold/utbedring av tekkingen må påregnes på sikt. Taktekking av takmembran/asfaltbelegg.
Bad hybel 2.etasje - Totalvurdering av overflater: Ingen skader eller avvik utover normal bruksslitasje avdekket på overflatene. Det mangler ferdigstillelse av overflater inne på badet, TG2 grunnet dette. Ved dør mangler det tettelist/oppbrett av vinyl/tettesjikt. Lekkasjevann kan føres ut til naborom.
Øvrige rom / bygningsdeler: Øvrige rom er besiktiget og vurdert til høy bruksslitasje. Manglende ventilasjon på soverom/personalrom.
Personalrom / lager: Øvrige rom er besiktiget og vurdert til å ha noe høyere bruksslittasje. Manglende ventilasjon på rommet.
Kjøkken 2.etasje: Det registreres en del slitasje på innredningen. Svellinger, hakk og generell høy bruksslitasje. Manglende avtrekk over stekesone.
VVS: TG-2 er satt med bakgrunn i alder på eldre rør og avløps installasjoner, som har oppnådd forventet normal brukstid. Ingen avtrekk over stekesone på kjøkken.
TAKSTMANN KOMMENTAR TIL AREALOPPMÅLING OG ROMBENEVNELSE:
Bygningens planløsning og ulovlighetsmangler er kontrollert opp mot kommunepakken. Siste godkjente bygningstegninger samsvarer med dagens utforming av boligen. Bruk av rom samsvarer ikke med bygningstegninger, da lager i 2.etasje benyttes til soverom/personalrom.
Se vedlagt tilstandsrapport for ytterligere opplysninger.
Diverse
Fosen renovasjon opplyser at det ikke foreligger abonnement på tømming av renovasjonsdunker og/eller slamtank/septiktank på denne eiendommen pr. 25.10.2024.
Det gjøres oppmerksom på at inventar og løsøre ikke medfølger handelen.
Kommunale avgifter
Kommunale avgifter er opplyst av Ørland kommune å være følgende:
Fastdel vann pr enhet, næringskategori 1: 3 243 pr. år
Fastdel kloakk rens pr enhet, næringskategori 1: 2 690 pr. år
I tillegg betales det for målt forbruk pr m3.
Forbruk vann: kr 13,50 pr m3
Forbruk kloakk rens: kr 16,- pr m3
Kommunale avgifter er opplyst inkludert mva., og betales over 4 terminer.
Avgift beregnes etter forbruk.
Veg, vann og avløp
Eiendommen er tilknyttet offentlig vann og avløp via private stikkledninger. Eiendommen har offentlig adkomst med privat avkjørsel.
Renovasjon og slam behandles av Fosen Renovasjon.
Regulering
Området er iht. reguleringsplankart regulert til "Sentrumsformål S - 1130". Reguleringsbestemmelser 1621201703.
Iflg. områdeplan for Brekstad sentrum og reguleringsbestemmelsene fremgår det at eiendommen er avmerket "Sentrumsformål S5" i kartet, og møter følgende bestemmelser.
Maks kote møne/gesims: 18
Minimum antall boenheter: 80
Min % BRA: 80
Min. kvm uteareal pr. boenhet: 30
Type funksjoner og boenhet: Bolig, kontor, service, tjeneste, forretning og bevertning.
Ovenstående reguleringsbestemmelsene sier ikke noe om dagens bruk, men hva som fremgår av planen konkret.
Reguleringsplanen, og kartet ligger vedlagt i salgsoppgaven, kjøper må gjøre seg kjent med innholdet.
Tinglyste erklæringer
Eiendommen overdras fri for pengeheftelser. Kommunen har lovbestemt legalpant i eiendommen som sikkerhet for betaling av kommunale gebyr.
Dnr. 3579, tgl. 01.08.1996 - Leie av næringslokale
Bestemmelser om regulering av leien
Bestemmelser om forlengelse
Kan ikke framleies uten samtykke av
hjemmelshaver/utleier
Kan overdras uten samtykke av
hjemmelshaver/utleier
Leieavtalen kan ikke sies opp så lenge den er pantsatt
til Ørland Sparebank
Med flere bestemmelser
Dnr. 904552, tgl. 06.11.1974 - Registrering av grunn
ANMERKET DATO ER DØDSDATO / DATERINGSDATO
For servitutter eldre enn fradelingsdato og eventuelle arealoppføringer som kan ha betydning for denne matrikkelenhet henvises det til avgivereiendommen. Ta kontakt med megler for mer informasjon.
Eier
Eier er Barrock Eiendom AS.
Adresse, matrikkel og oppdragsnr
Eiendommens adresse er Yrjars gate 2C.
Matrikkel tilhørende eiendommen: gnr. 167, bnr. 156 i Ørland.
Vårt oppdragsnummer er 69240288.
Ferdigattest/midlertidig brukstillatelse
Bygningsloven trådte i kraft for hele landet i 1965, og det er ikke uvanlig at det i mange kommuner er mangelfulle arkiv for tiden før 1965. Hvor midlertidigbrukstillatelse ikke er innhentet for tiltak før 01.01.1998, eller ferdigattest ikke er innhentet for saker etter 01.01.1998, vil byggesaken ikke være korrekt avsluttet. Offentlig myndighet kan i disse tilfeller vurdere ulovlighetsoppfølging, for å få brakt byggetiltakene i samsvar med godkjent søknad/lovens krav.
Nyttige lenker
Nærområdet
Nylander & Partners Fosen
Annonseinformasjon
| FINN-kode | 380018834 |
|---|---|
| Sist endret | 28. nov. 2025 11:22 |
| Referanse | 69240288 |
Annonsene kan være mangelfulle i forhold til lovpålagt opplysningsplikt. Før bindende avtale inngås oppfordres interessenter til å innhente komplett informasjon fra meglerforetaket, selger eller utleier.



































