Bildegalleri

Eiendomsmegler, Merete Seim v/EiendomsMegler 1 har gleden av å presentere Fardalen 39B
Lekker halvpart av tomannsbolig fra 2017. Barnevennlig område. Carport med lader. Gangavstand til skole, bhg og butikk.
Nøkkelinfo
- Boligtype
- Tomannsbolig
- Eieform
- Eier (Selveier)
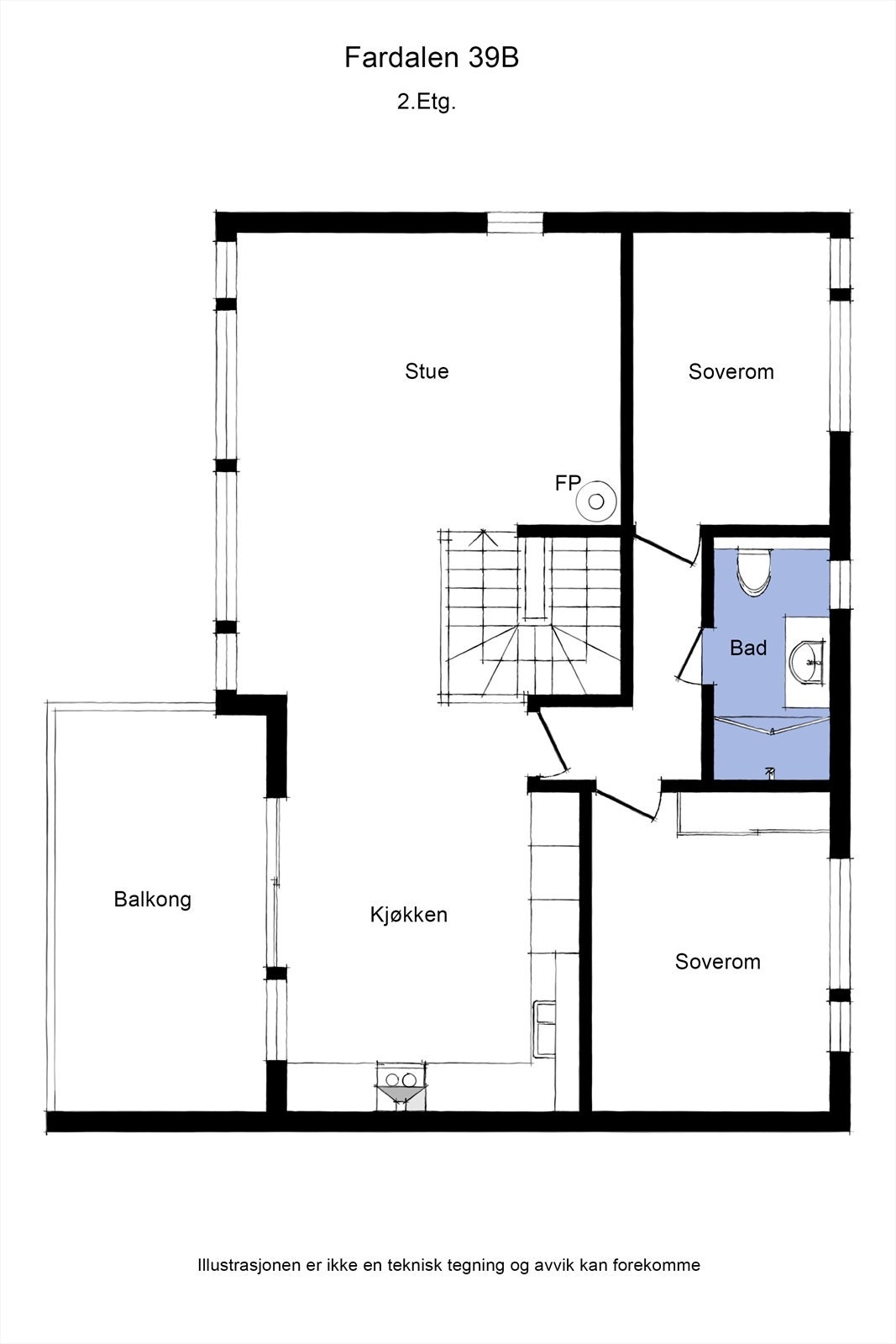
- Soverom
- 4
- Internt bruksareal
- 125 m² (BRA-i)
- Bruksareal
- 134 m²
- Eksternt bruksareal
- 9 m² (BRA-e)
- Balkong/Terrasse
- 13 m² (TBA)
- Etasje
- 2
- Byggeår
- 2017
- Energimerking
- C - Rød
- Rom
- 5
- Tomteareal
- 866 m² (eiet)
Fasiliteter
Om boligen
Om boligen:
- Gjennomgående moderne og innbydende
- innlagt fiber
- Peisovn
- Carport med elbil-lader
- Bod i bakkant av carport
- 4 soverom og to bad
Om beliggenheten:
- Ca 15 minutter til Skogsvåg med blant annet butikker, helsestasjon og treningssenter
- Flotte turområder i nærområdet
- Godt etablert boligfelt
- Svært barnevennlig område
- Gangavstand til barne,- og ungdomsskole, barnehage og dagligvarebutikk
- Kort vei til sjøen
Velkommen til en hyggelig visning!
Salgsoppgaven beskriver vesentlig og lovpålagt informasjon om eiendommen
Se komplett salgsoppgaveNyttige lenker
Nærområdet
EiendomsMegler 1 Askøy
Prisstatistikk
Fardalen 39B
på annonsen
prisantydning per kvadratmeter
Prisfordeling
Pris per m² ligger 3 080 kr under snittet for tomannsboliger i Øygarden.
Grafen viser antall tomannsboliger solgt i Øygarden siste året fordelt på pris per m² - totalt 55 tomannsboliger
Antall boliger
Kvadratmeterpris tilsvarer prisantydning pluss fellesgjeld per kvadratmeter (p-rom eller BRA-i). Prisene i grafen er avrundet til nærmeste 1000 kr.
Annonseinformasjon
| FINN-kode | 384622065 |
|---|---|
| Sist endret | 30. aug. 2025 19:54 |
| Referanse | 2701240128 |
Annonsene kan være mangelfulle i forhold til lovpålagt opplysningsplikt. Før bindende avtale inngås oppfordres interessenter til å innhente komplett informasjon fra meglerforetaket, selger eller utleier.












































