Bildegalleri

Bilde fra tidligere bygd Chamonix.
Opplev elegansen av Chamonix - Tradisjon og moderne luksus. Ski inn/ut
- Omkostninger
- 0 kr
- Totalpris
- 11 800 000 kr
Nøkkelinfo
- Beliggenhet
- På fjellet
- Boligtype
- Hytte
- Eieform
- Eier (Selveier)
- P-plasser
- 2
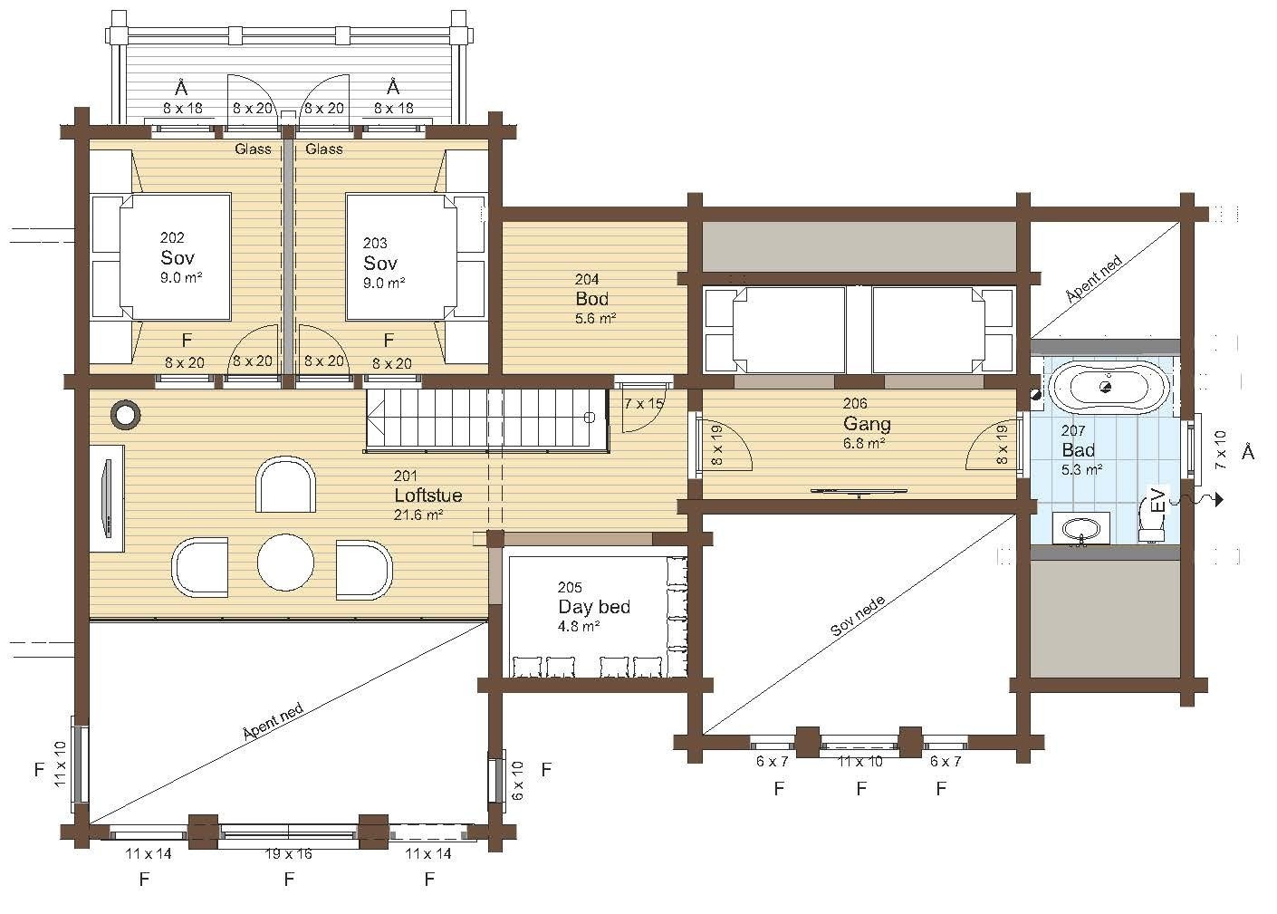
- Bruksareal
- 203 m²
- Grunnflate
- 182 m²
- Byggeår
- 2024
- Soverom
- 5
- Meter over havet
- 720
Fasiliteter
Visning
Ta kontakt for å avtale visning.Om eiendommen
Beliggenhet
Opplev Bjørgesætra – perfekt for deg som vil nyte solrike dager og en fantastisk utsikt mot fjellene, Fakkelmannen, dalen og Lågen. Her kan du spenne på deg skiene rett utenfor døren og gli ut til alpinbakkene, eller ta langrennsløypene som grenser inntil tomten. Med rolige omgivelser og storslått natur, er dette stedet for total avslapning.
Hafjell byr på opplevelser året rundt! Om vinteren er det snøsikkert og ideelt for skientusiaster, mens sommeren frister med sykkelstier for alle nivåer, fiske og padling i innsjøene, og uforglemmelige fotturer i fjellandskapet. Dette er stedet for deg som elsker naturen!
Generelt
Prisen i denne annonsen gjelder nøkkelferdig hytte levert til støpt plate:
- Ferdig hytte levert til støpt plate kroner 11.800.000,-
I tillegg kommer:
- Grave og betongarbeider estimeres til 1.300.000,-
- Tomt: fra 2.950.000,-
Adkomst/Tomteforhold
Hafjell ligger perfekt til, kun 2,5 times kjøretur fra Oslo, og er en fantastisk helårsdestinasjon med noe for alle. Her finner du langrennsløyper, alpinbakker, fiskevann, turstier, sykkelparker og mye mer – alt samlet i naturskjønne omgivelser.
Fra E6 tar du avkjøringen mot Hafjelltoppen og følger veien oppover fjellet. Etter ca. 2,5 km fra bommen tar du til venstre inn på Storsteinvegen, markert med en flott skiferport. Følg Storsteinvegen til du passerer første skibro. Du er nå inne på Bjørgesætra og her starter veien til din drømmehytte!
Østlaft - Kvalitet, trygghet og bærekraft i hver hytte
Vi i Østlaft er stolt av å produsere alle våre hytter På Rudshøgda. Her har vi bygd det som kanskje er verdens mest avanserte laftefabrikk.
Vi benytter kun norsk tømmer i produksjonen. Dette sikrer ikke bare en bærekraftig tilnærming til produksjon, men også en forpliktelse til å støtte og fremme den lokale skogbruksnæringen.
Østlaft har etablert seg som en pålitelig leverandør av laftehytter av høyeste kvalitet. På Rudshøgda fortsetter vi å sette standarden for moderne lafteproduksjon, samtidig som vi hedrer og viderefører den rike tradisjonen innen norsk laft
Østlaft er medlem av merkeordningen Trygt Hyttekjøp, og dette betyr Trygt Hyttekjøp for deg:
- Vi bygger din hytte i henhold til norsk regelverk
- Vi bruker standard bransjekontrakter i avtalen om hyttekjøpet
- Du får garantier og forsikring etter bustadoppføringslova
- Vi lover deg faglig utførelse av din hytte
- Ved en eventuell tvist har du rett til bruk av Boligtvistnemnda
- Vi sørger for ordnede arbeidsforhold på din byggeplass
Innhold
Standard
Høy standard hytte med blandt annet 3 bad, 5 soverom og 3 stuer.
Leveres nøkkelferdig med ferdig behandlet tømmer innvendig og utvendig!
Bildene i annonsen er fra ferdig bygd tun på Skeikampen, hvor du har mulight til å se med egne øyne hvor fantastisk denne hytta er.
Siden hytta ikke er bygd, har du anledning til å tilpasse leveransen.
Vesentlige opplysninger
Ved kjøp av denne hytta, vil det blir laget separate kontrakter for tomt og hytte.
Offentlige avgifter og tilknytningsavgifterer ikke inkludert i prisantydningen.
Pris indeksreguleres fra SSB prisindeks pr Desember 2024.
Vi tilbyr rask oppstart på byggeplass ved kjøp av denne hytta.
Ta kontakt med megler for komplett informasjon
Nyttige lenker
Nærområdet
Annonsene kan være mangelfulle i forhold til lovpålagt opplysningsplikt. Før bindende avtale inngås oppfordres interessenter til å innhente komplett informasjon fra meglerforetaket, selger eller utleier.





























