Bildegalleri

EIE eiendomsmegling ved Daniel Bruce har gleden av å presentere Rønningstrøa 42!

Inaktiv
MELHUS

Moderne enderekkehus fra 2023 | Nydelig utsikt og gode solforhold | 4 soverom & 2 bad | Integrert garasje | Takterrasse

Prisantydning6 850 000 kr
Totalpris
6 893 840 kr
Omkostninger
43 840 kr
Kommunale avg.
16 267 kr per år

Nøkkelinfo

Boligtype
Rekkehus
Eieform
Eier (Selveier)
Soverom
4
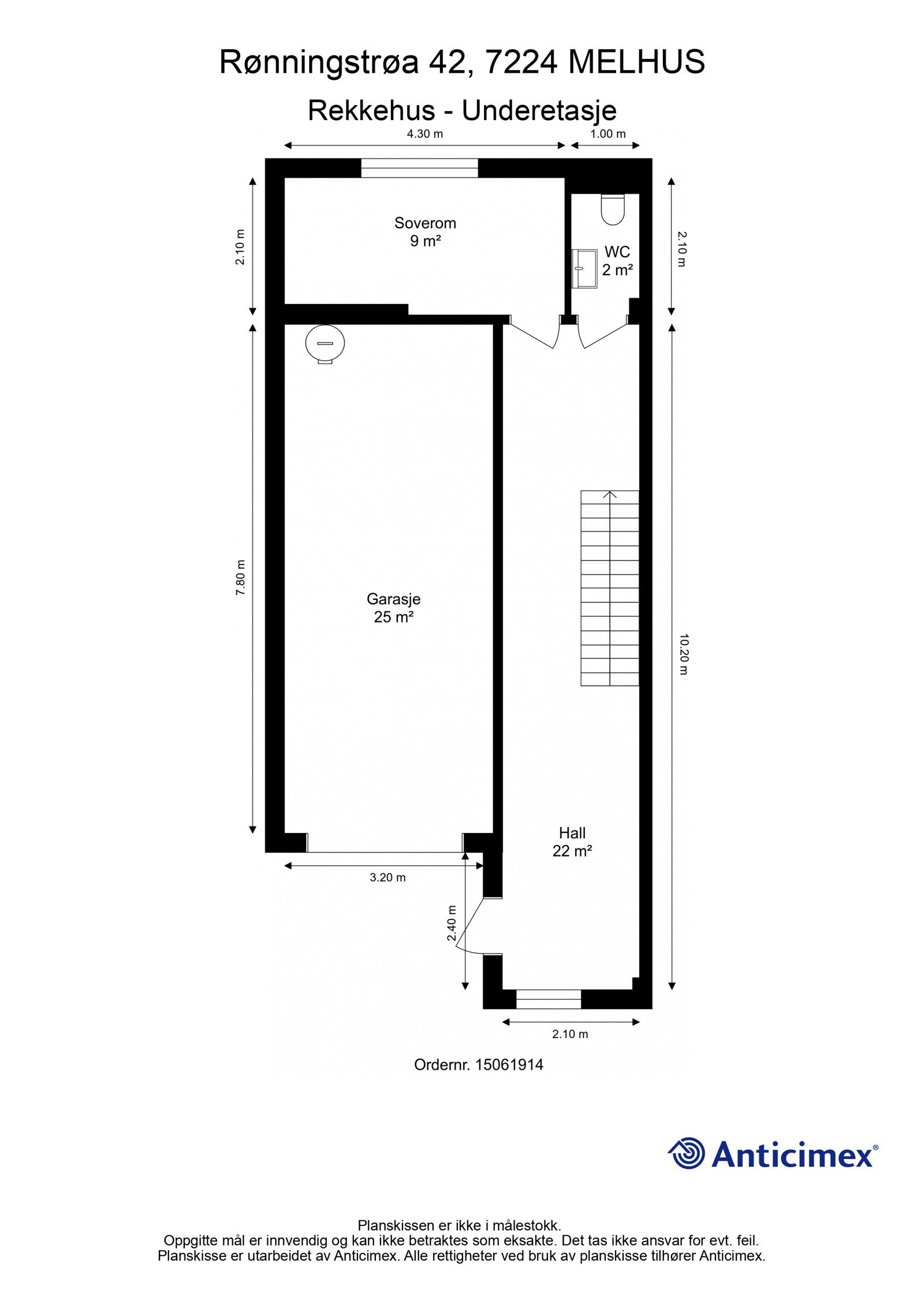
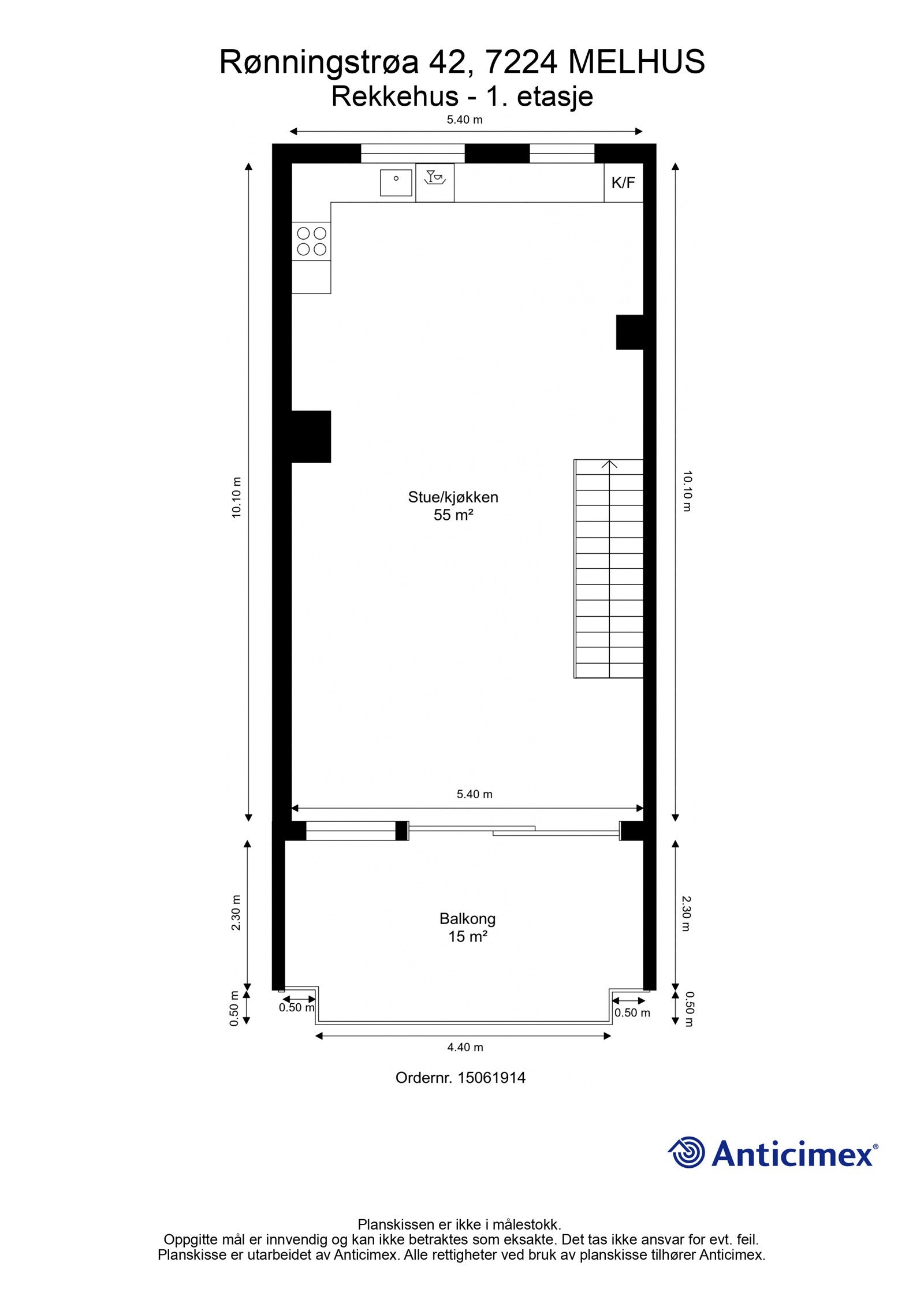
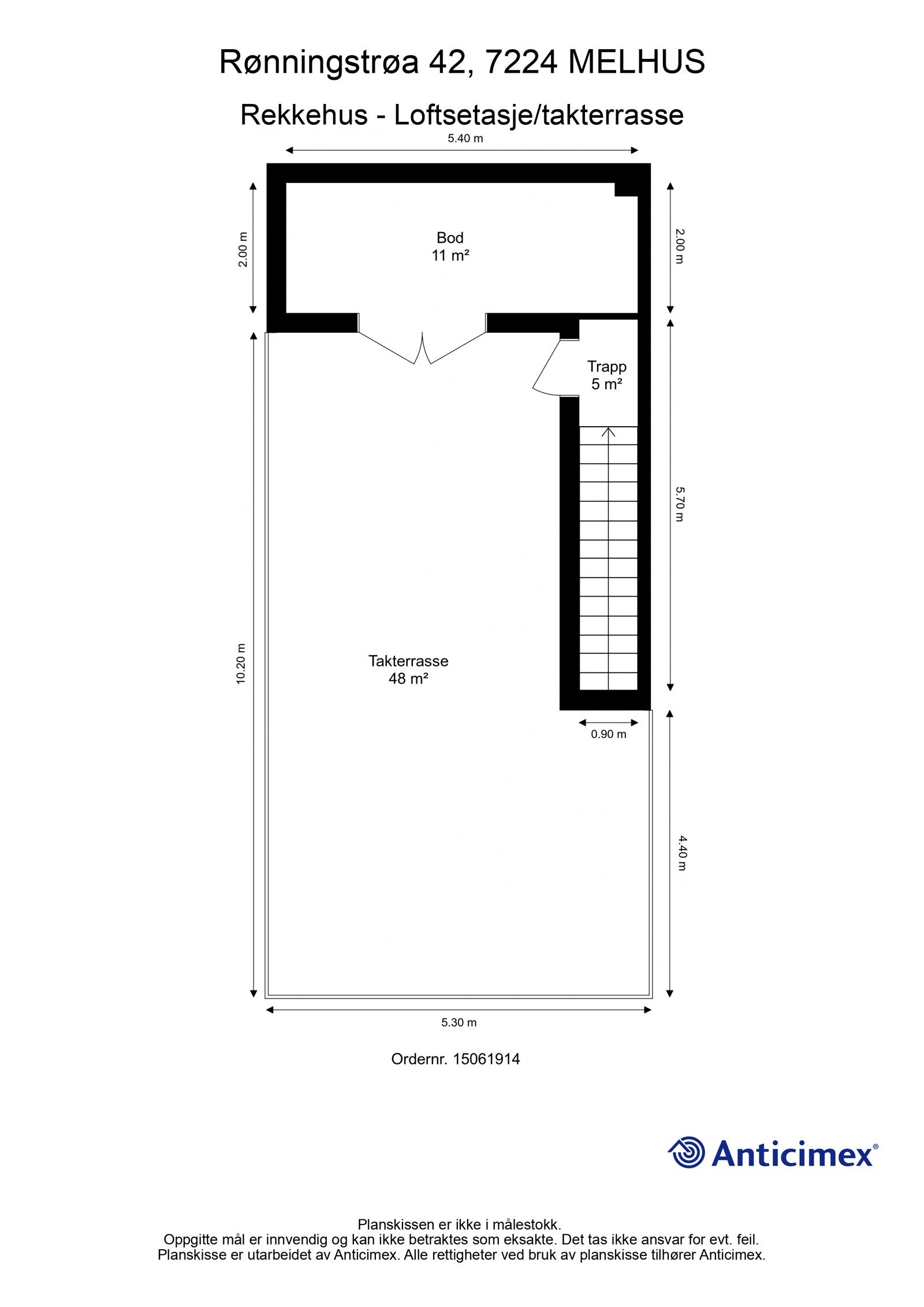
Internt bruksareal
162 m² (BRA-i)
Bruksareal
201 m²
Eksternt bruksareal
39 m² (BRA-e)
Balkong/Terrasse
63 m² (TBA)
Byggeår
2023
Energimerking
B - Rød
Rom
5
Tomteareal
108 m² (eiet)

Les mer om bruksareal her

Visning

Våre visninger har påmelding. Dette gjør vi for å kunne yte bedre service for våre kunder. Verdifullt for boligkjøper og for oss. Vi anbefaler at salgsoppgaven lastes ned digitalt før visning, og ring oss gjerne på forhånd for spørsmål om boligen. Passer ikke angitt tidspunkt, ta kontakt så finner vi en løsning. Skulle det mot formodning ikke være påmeldte til angitt visnings tidspunkt vil ikke visning bli gjennomført.
Visningspåmelding

Om boligen

Velkommen til Rønningstrøa 42!
Et nytt og svært tiltalende enderekkehus over tre etasjer + takterrasse, oppført i 2023. Boligen har integrert garasje i første etasje og en fantastisk takterrasse på 48 kvm med nydelig, vidstrakt utsikt og svært gode solforhold. Med gjennomgående høy standard, fire soverom, en åpen stue-/kjøkkenløsning, to bad og et ekstra gjestetoalett, er dette en perfekt bolig for både familier og par.


Merk deg dette:


  • Attraktiv endebeliggenhet.
  • Stor takterrasse med panoramautsikt og fantastiske solforhold.
  • Integrert garasje.
  • Nydelig Aubo kjøkkeninnredning.
  • Fire romslige soverom.
  • To bad og et ekstra toalett.
  • Stor bod på takterrassen, som evt. kan benyttes som vinterhage.
  • Balansert ventilasjon og varmepumpe.
  • Gode kollektivtilbud.
  • Gangavstand til skole og barnehage.
  • Flotte turmuligheter.

Salgsoppgaven beskriver vesentlig og lovpålagt informasjon om eiendommen

Se komplett salgsoppgave

Nærområdet

Annonseinformasjon

FINN-kode388360185
Sist endret03. apr. 2025 12:57
Referanse133240212

Rapporter annonse

Annonsene kan være mangelfulle i forhold til lovpålagt opplysningsplikt. Før bindende avtale inngås oppfordres interessenter til å innhente komplett informasjon fra meglerforetaket, selger eller utleier.