Bildegalleri

UTSOLGT!
4 Fantastiske boliger beliggende på en råflott vestvendt tomt i blindvei. Budgivning pågår!
Prisantydning
Solgt
Kort om prosjektet
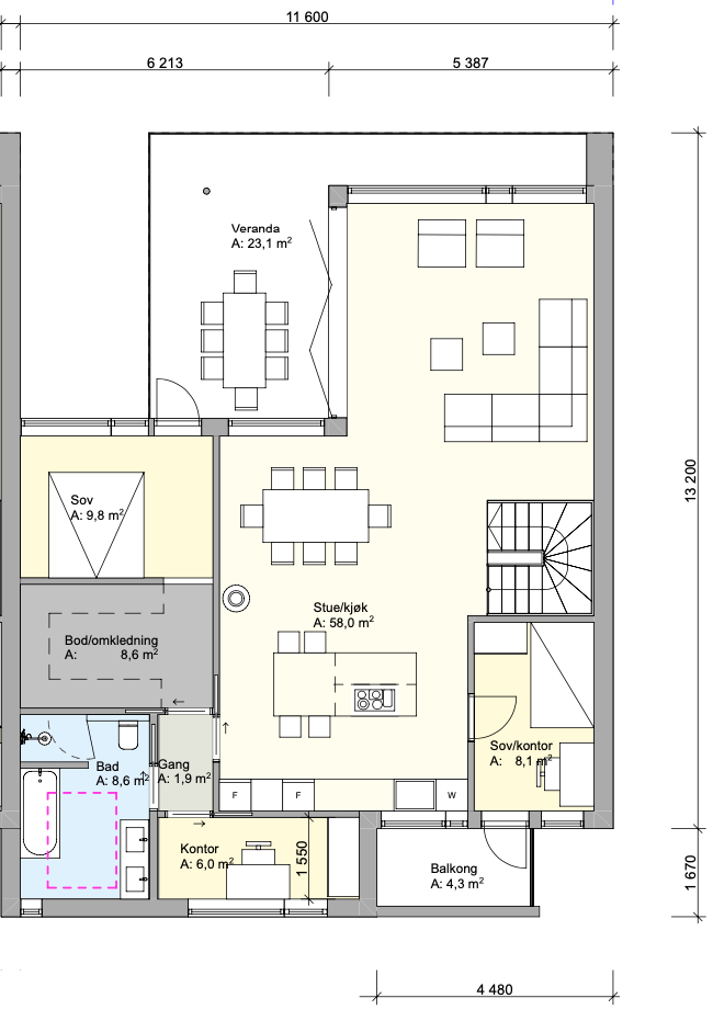
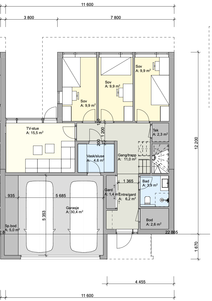
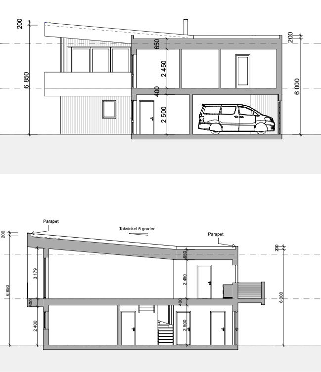
På det som kan være den råeste tomten på Langhus, vil vi nå tilby fire eksklusive boliger med et bruksareal på ca. 230 kvm, inkludert dobbel garasje. Disse moderne boligene kombinerer stil og funksjonalitet med hele 6 soverom. Med skreddersøm så tilpasses hver bolig kjøperen!
Prosjektets status
Planlegging
Q2 2023 - Q4 2024
Salgsstart
Q1/Q2 2025
Byggestart
2025/26
Overtakelse
Etter ca. 12 mnd. byggetid.
Nøkkelinfo
- Antall etasjer
- 2
- Eieform
- Eier (Selveier)
Fasiliteter
Enheter i prosjektet
Sorter etter
Visning
Ta kontakt for å avtale visning.Beskrivelse
Bo trygt og godt med familien på Langhus!
Velkommen til et eksklusivt boligprosjekt på populære Langhus – her bor du i grønne omgivelser, med nærhet til alt familien trenger i hverdagen. Boligene er på hele 230 m² og har gjennomtenkte planløsninger, høy standard og fleksibilitet for deg som ønsker å tilpasse hjemmet etter egne ønsker og behov.
Livskvalitet i hverdagen
- 6 soverom, 2 stuer og god lagringsplass
- Romslig kjøkken- og oppholdsrom med utgang til overbygd terrasse
- Lunt uteområde og stor dobbelgarasje
- Flott beliggenhet med solrike tomter og utsikt
Tilpass ditt drømmehjem
Vi vet at ingen familier er like – derfor tilbyr vi stor grad av skreddersøm. Du kan f.eks. velge:
- Solcellepaneler og vannbåren varme
- Tilpasset kjøkkenløsning fra Drømmekjøkkenet
- Belegningsstein, granittmurer og opparbeidede uteområder
- Mulighet for svømmebasseng, drivhus, jacuzzi – og mye mer!
Vi har allerede satt opp pristillegg for mange muligheter – så veien fra idé til realitet er kort.
Attraktiv beliggenhet – midt i hjertet av Langhus
Her får du en trygg og barnevennlig beliggenhet med gangavstand til:
- Skole og barnehage
- Langhus og Vevelstad togstasjon (Follobanen til Oslo på under 15 min)
- Ski sentrum – kjøpesenter, restauranter og kulturtilbud
- Østmarka – perfekte turmuligheter året rundt
Utenomhus
Gårdsplassene leveres singlet, og plenarealene får ferdigplen for en enkel og pen overgang til naturlige omgivelser. Helt vest på tomten etableres en mur som vil løfte terrenget, noe som både gjør området mer tilgjengelig og mer brukervennlig.
Beplantning og støttemurer utover dette inngår ikke, bortsett fra det som er inntegnet på situasjonsplan i byggesøknadsdokumentene. Noe murer kan bli aktuelt der hvor det er nivåforskjeller mellom boligene. Endelig løsning og produktvalg besluttes av selger.
På illustrasjoner og i markedsmateriell vises forslag til beplantning og utforming av tomten som ikke inngår i leveransen fra selger. Foreløpig plan for utenomhusarealer vises i tegninger/skisser og viser hvordan fellesarealer skal disponeres. Denne planen er veiledende og ikke bindende for selger.
Grøntarealer som leveres med ferdigplen må vedlikeholdes av kjøper etter overtakelse. Det legges ikke opp til felles avfallssystem på tomten, og søppelhåndtering vil bli basert på individuelle løsninger for hver bolig.
Selger forbeholder seg retten til å foreta mindre justeringer på utforming og materialvalg for utenomhusarealer, så lenge disse ikke forringer kvaliteten eller bruken av området.
Ladning elbil
Det er tilrettelagt for elbil-lading i garasjen, og elektriker avtaler direkte med kjøper hvor dette plasseres.
Seksjonering
Eiendommene vil seksjoneres - både husene og tomten slik at hver seksjon får en egen tomten. I forbindelse med seksjonering oppretter utbygger et sett med vedtekter.
Fiber/bredbånd og tilvalg
Utbygger sørger for at fiber/bredbånd blir lagt frem til det utvendige strømskapet. Videre vil elektriker, i samarbeid med kjøper og gjennom tilvalgsprosessen, planlegge og tilrettelegge for trekking av kabler innvendig i boligen.
Tilvalg
Utbygger legger stor vekt på skreddersøm for den enkelte kjøper, og det vil i stor grad være mulig å gjøre endringer og tilpasninger etter ønske, så lenge dette er teknisk gjennomførbart.
Forbehold
Illustrasjoner, tegninger og markedsføringsmateriell kan avvike fra den endelige løsningen. Det kan forekomme avvik knyttet til tomteareal, hensynssoner, plassering av bygninger og terreng ved overlevering. Mindre og ikke signifikante avvik gir ikke grunnlag for kompensasjon.
Illustrasjoner og markedsmateriell kan inneholde elementer som ikke inngår i leveransen, som for eksempel busker, hekk, møbler, lamper og lekeapparater. Disse er ment som inspirasjon og viser forslag til hvordan uteområder og interiør kan innredes.
Oppgjør
Oppgjør og dokumentbehandling utføres av;
Partners Eiendomsmegling Indre Østfold
v/Elin Westerby
Fagansvarlig / Eiendomsmegler MNEF / Partner
Mobil: 99 42 46 69
Diverse
Forventet ferdigstillelse og forbehold
Boligen planlegges ferdigstilt i løpet av 4. kvartal 2026, under forutsetning av at igangsettingstillatelse foreligger innen 1. februar 2026. Oppgitt tidspunkt er ikke bindende og gir ikke grunnlag for dagmulkt ved eventuell forsinkelse.
Ved vedtatt igangsetting vil kjøper motta skriftlig varsel om avtalt overtakelsesdato, som da regnes som frist etter bustadoppføringslova.
Selger forbeholder seg retten til å fremskynde overtakelsen med inntil fire måneder. Kjøper vil i så fall varsles minimum to måneder før det nye overtakelsestidspunktet, og eksakt dato bekreftes senest 14 dager før overtakelse. Eventuell dagmulkt beregnes først fra denne nye fristen.
Selger skal varsle kjøper innen rimelig tid dersom det oppstår forhold som medfører forsinkelse, og har rett til fristforlengelse dersom vilkårene i bustadoppføringslova § 11 er oppfylt.
Adgang til byggeplass
All ferdsel på byggeplassen før overtakelse må skje i følge med representant fra selger. Byggeplassen er å anse som et anleggsområde, og uautorisert opphold er forbudt av sikkerhetsmessige hensyn.
Lovgrunnlag og garanti
Kjøpet reguleres av Lov om avtale med forbrukar om oppføring av ny bustad m.m. (bustadoppføringslova) av 13. juni 1997 nr. 43, der selger er profesjonell og kjøper er forbruker. Dette innebærer blant annet at kjøper har krav på garantistillelse i henhold til § 12 i bustadoppføringslova.
Boligene prosjekteres og bygges etter preaksepterte løsninger, leverandørs anvisninger eller annen relevant bransjestandard.
Nyttige lenker
Nærområdet
Pro Bolig AS
Annonsene kan være mangelfulle i forhold til lovpålagt opplysningsplikt. Før bindende avtale inngås oppfordres interessenter til å innhente komplett informasjon fra meglerforetaket, selger eller utleier.














