Bildegalleri

UTSOLGT!
Drømmeboliger på Langhus – Utsikt, Luksus og Skreddersøm
Kort om prosjektet
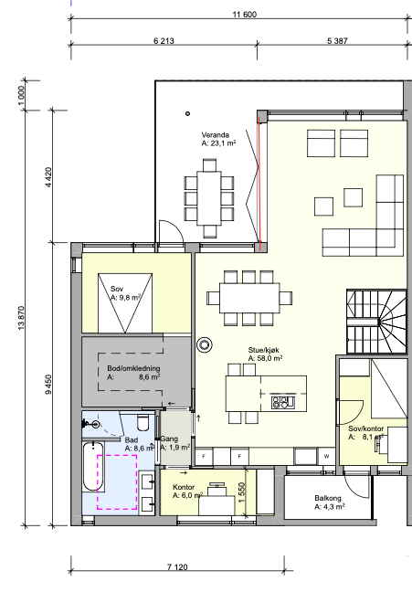
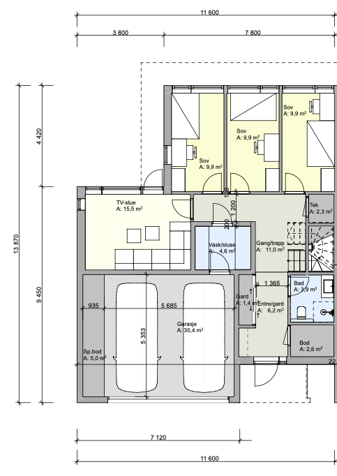
På det som kan være den råeste tomten på Langhus, vil vi nå tilby fire eksklusive boliger med et bruksareal på ca. 230 kvm, inkludert dobbel garasje. Disse moderne boligene kombinerer stil og funksjonalitet med hele 6 soverom. Med skreddersøm så tilpasses hver bolig kjøperen!
Prosjektets status
Planlegging
Q2 2023 - Q4 2024
Salgsstart
Q1/Q2 2025
Byggestart
2025/26
Overtakelse
Etter ca. 12 mnd. byggetid.
Nøkkelinfo
- Boligtype
- Tomannsbolig
- Soverom
- 6
- Bruksareal
- 230 m²
Fasiliteter
Beskrivelse
Kort om prosjektet
På det som utvilsomt er den råeste tomten på Langhus, vil vi nå tilby fire eksklusive boliger med et bruksareal på ca. 230 kvm, inkludert dobbel garasje. Disse moderne boligene kombinerer stil og funksjonalitet med hele 6 soverom, alternativt 5 soverom og et kontor.
Nyttige lenker
Nærområdet
Pro Bolig AS
Annonsene kan være mangelfulle i forhold til lovpålagt opplysningsplikt. Før bindende avtale inngås oppfordres interessenter til å innhente komplett informasjon fra meglerforetaket, selger eller utleier.











